EasyManua.ls Logo

YASKAWA GA500 series - Page 169

YASKAWA GA500 series
794 pages
To Next Page IconTo Next Page
To Next Page IconTo Next Page
To Previous Page IconTo Previous Page
To Previous Page IconTo Previous Page
Loading...
Standards Compliance
5
5.2 European Standards
YASKAWA SIEPC71061753C GA500 Technical Manual 169
Guarding Against Debris
When you install IP20/UL Open type drives, use an enclosure that does not let unwanted material enter the drive
from above or below.
Electrical Installation
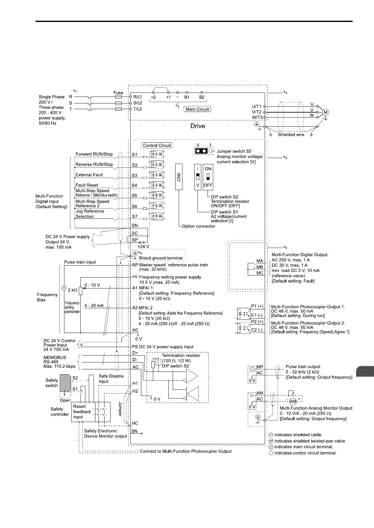
Refer to Figure 5.2 for an example of a drive that is wired to comply with the CE Low Voltage Directive.
Figure 5.2 Wiring Diagram for CE Low Voltage Directive Compliance
*1 Set L8-05 = 1 [Output Phase Loss Protect Select = Enabled] or set the wiring sequence to prevent input phase loss.

Table of Contents

Other manuals for YASKAWA GA500 series

Related product manuals