EasyManua.ls Logo

YASKAWA SGM7E - For Σ-7 S MECHATROLINK-II;-III Communications Reference or Command Option Attachable-Type Servopacks

YASKAWA SGM7E
337 pages
To Next Page IconTo Next Page
To Next Page IconTo Next Page
To Previous Page IconTo Previous Page
To Previous Page IconTo Previous Page
Loading...
10.5 I/O Signal Cables for SERVOPACKs
10.5.2 For Σ-7S MECHATROLINK-II/-III Communications Reference or Command Option Attachable-Type SERVOPACKs
10
Cables and User-Assembled Wiring Materials for SERVOPACKs
10-19
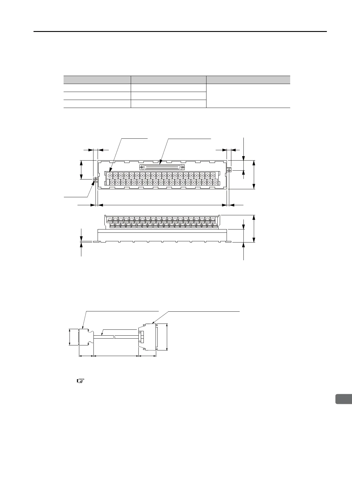
Connector-Terminal Block Converter Unit
Selection Table
Dimensional Drawing
Dimensional Drawing of Enclosed Cable
Note: The same pin numbers are used for the SERVOPACK connector and the terminal block. Pins 1 to 26 are
wired. Do not connect pins 27 and higher.
To assemble your own cables, refer to the following section for the wiring specifications.
Wiring Specifications on page 10-17
Order Number Length of Enclosed Cable (L) Inquires
JUSP-TA26P-E 0.5 m
Yaskawa Controls Co., Ltd. JUSP-TA26P-1-E 1 m
JUSP-TA26P-2-E 2 m
40
39
1
2
B20
A20
B1
A1
29.5
20.5
15.5
45
2
7
7
43
3.5
202.5
3.5
2 × 3.5 dia.
holes
FCN-364P040-AU
Unit: mm
Can be mounted to DIN rail.
Connector Plug (40P)
M3.5 screws
Terminal block (40P)
73
4739 L
37.2
AWG28, 18P
SSRFPVV-SB
Unit: mm
FCN-360C040-B (Fujitsu Ltd.)
Cover
FCN-361J040-AU (Fujitsu Ltd.)
Terminal Block Converter Unit connector (40P)
Cable (black)
10326-52A0-008 (3M Japan Limited)
Shell
10126-6000EL (3M Japan Limited)
SERVOPACK connector (26P)

Table of Contents

Other manuals for YASKAWA SGM7E

Related product manuals