EasyManua.ls Logo

YASKAWA SGM7E - Page 245

YASKAWA SGM7E
337 pages
To Next Page IconTo Next Page
To Next Page IconTo Next Page
To Previous Page IconTo Previous Page
To Previous Page IconTo Previous Page
Loading...
10.5 I/O Signal Cables for SERVOPACKs
10.5.5 For Controller Section of Σ-7C SERVOPACKs
10
Cables and User-Assembled Wiring Materials for SERVOPACKs
10-27
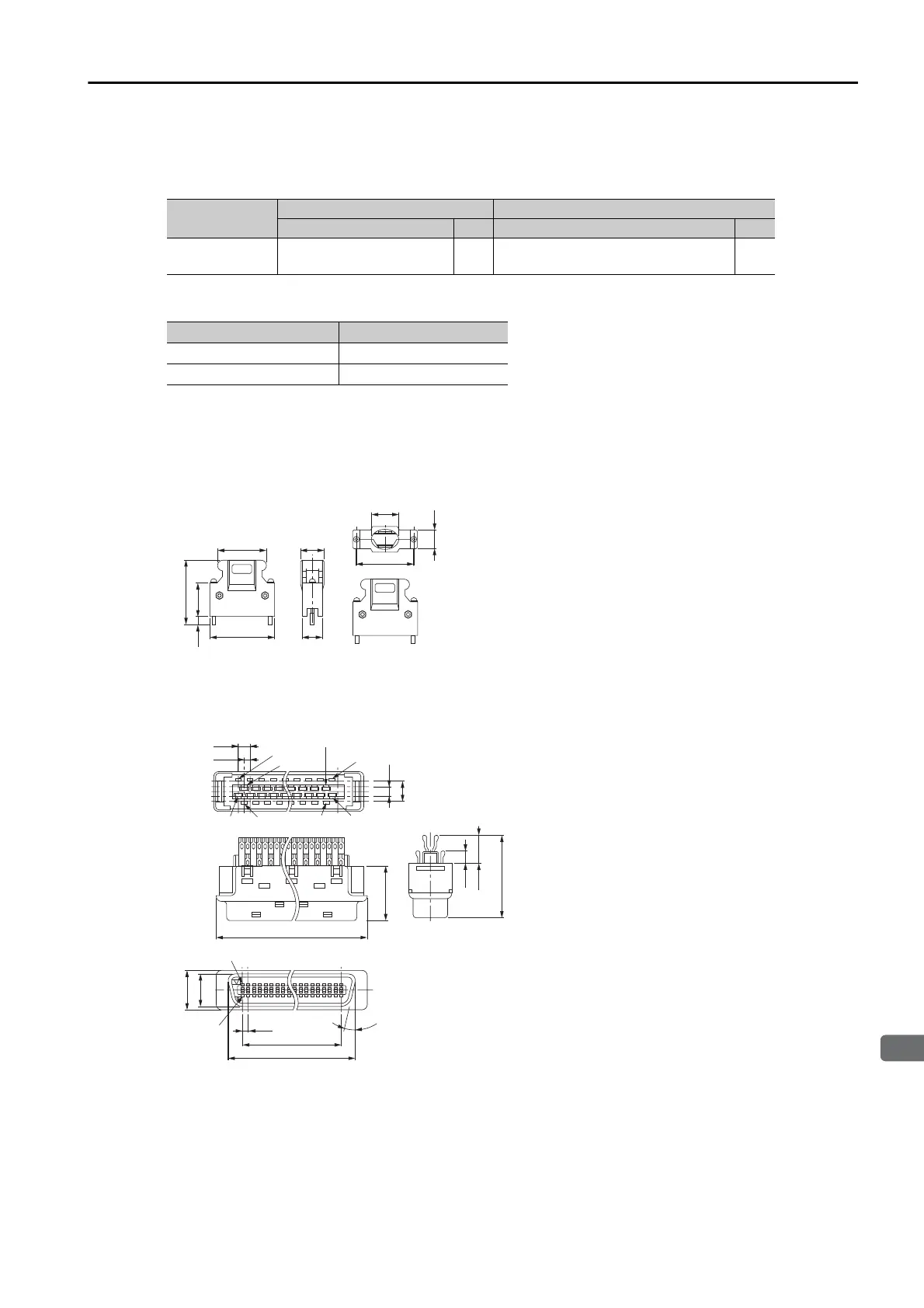
Connector Kits
Selection Table
Wire Sizes
Note: Use a twisted-pair or screened twisted-pair cable.
Dimensional Drawings
Case
Connectors
Connector Kit
Order Number
Case Connectors
Model Qty Model Qty
JZSP-CSI9-1-E
10350-52Z0-008
(3M Japan Limited)
1 set
10150-3000PE (soldered)
(3M Japan Limited)
1
Item Specification
Applicable Wires AWG24, 26, 28, 30
Cable Finished Diameter 16 mm max.
52.4
12.7
41.1
46.5
17.0
14.0
39.0
23.8
(5.2)
8.5
Unit: mm
2.54
Pin 26
1.27
Pin 26
Pin 1
36.7
30.48
15°
1.27
41.1
5.1
(6.8)
19.5
(2.9)
2.3
12.7
3M
Pin 27
Pin 1
Pin 2
Pin 24
Pin 25
Pin 50
Pin 49
9.1
7.5
Unit: mm

Table of Contents

Other manuals for YASKAWA SGM7E

Related product manuals