EasyManua.ls Logo

YASKAWA SGM7E - Page 296

YASKAWA SGM7E
337 pages
To Next Page IconTo Next Page
To Next Page IconTo Next Page
To Previous Page IconTo Previous Page
To Previous Page IconTo Previous Page
Loading...
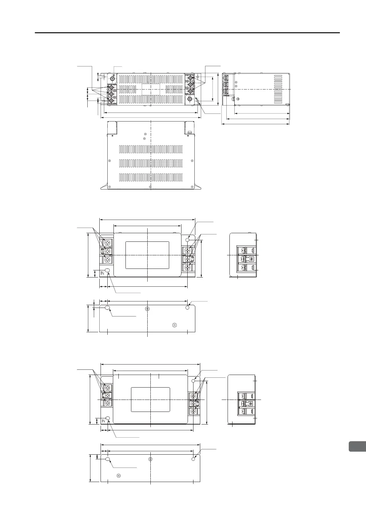
12.5 Noise Filter
12-27
12
SERVOPACK Peripheral Devices
Model: HF3100C-SZC
Model: HF2010A-UPF
Model: HF2020A-UPF, HF2020A-UPF-2BB, or HF2030A-UPF-2BB
6.5 dia.
3
×
M6
3
×
M6
M6
75
±
2
172
±
5
210
±
5
290
±
2
310
±
5
(196)
100
±
5
(20.5)
(17.5)
6.5
(20.5)
Unit: mm
57 ± 1
35 ± 1
3.5
123 ± 2
103 ± 1
103 ± 1
4.5 dia.
4.5 dia.
(87)
10
10
4.5 dia. × 6
4.5 dia. × 6
9
48 ± 1
3 × M4
3 × M4
Unit: mm
72 ± 1.5
40 ± 1
7
63 ± 1
144 ± 2
124 ± 1
144 ± 2
124 ± 1
4.5 dia. × 6
4.5 dia. × 6
4.5 dia.
4.5 dia.
(108)
10
10
9
3 × M4
3 × M4
Unit: mm

Table of Contents

Other manuals for YASKAWA SGM7E

Related product manuals