EasyManua.ls Logo

YOKOGAWA DY050

YOKOGAWA DY050
138 pages
To Next Page IconTo Next Page
To Next Page IconTo Next Page
To Previous Page IconTo Previous Page
To Previous Page IconTo Previous Page
Loading...
9-27
IM 01F06A00-01E
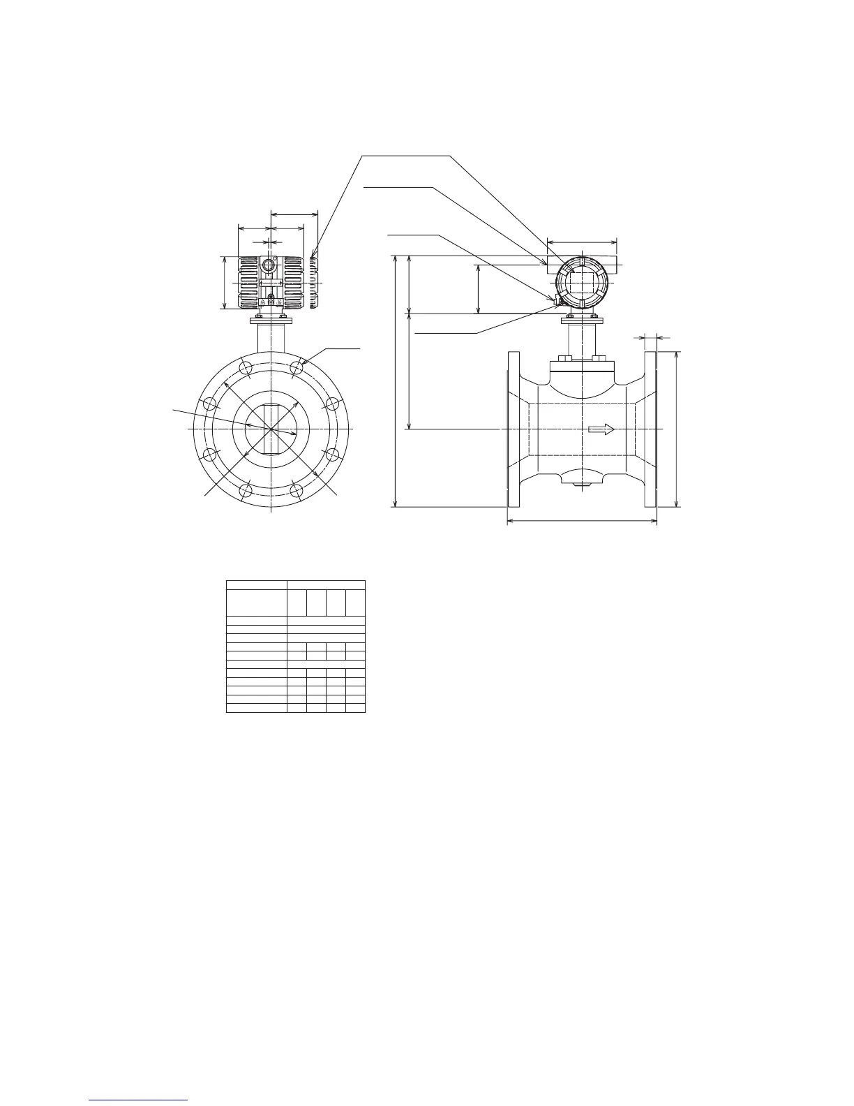
9. GENERAL DESCRIPTION
Reduced Bore Type (/R1):DY200-/R1
Flange type
N- φG
φC
φCS
φJ
ELECTRICAL
CONNECTION
EARTH TERMINAL
WITH INDICATOR
87.5
103.5
CLAMP
H
H1
125
T
L
φD
59
74
59
4.5
φ94
Model Code
Process
Connection
L
C
CS
D
H
H1
T
J
N
G
Weight kg
310
185.6
138.8
DY200 /R1
209
BA1
BS1
BP1
342.9
484
28.4
298.5
8
22.4
70.7
BA2
BS2
BP2
381
503
41.1
330.2
12
25.4
102.9
BJ1
330
477.5
22
290
12
23
58.7
BJ2
350
487.5
30
305
12
25
74.1
Only For
TIIS Explosion proof
KEMA Explosion proof

Table of Contents

Related product manuals