EasyManua.ls Logo

YOKOGAWA DY050

YOKOGAWA DY050
138 pages
To Next Page IconTo Next Page
To Next Page IconTo Next Page
To Previous Page IconTo Previous Page
To Previous Page IconTo Previous Page
Loading...
9-34
IM 01F06A00-01E
9. GENERAL DESCRIPTION
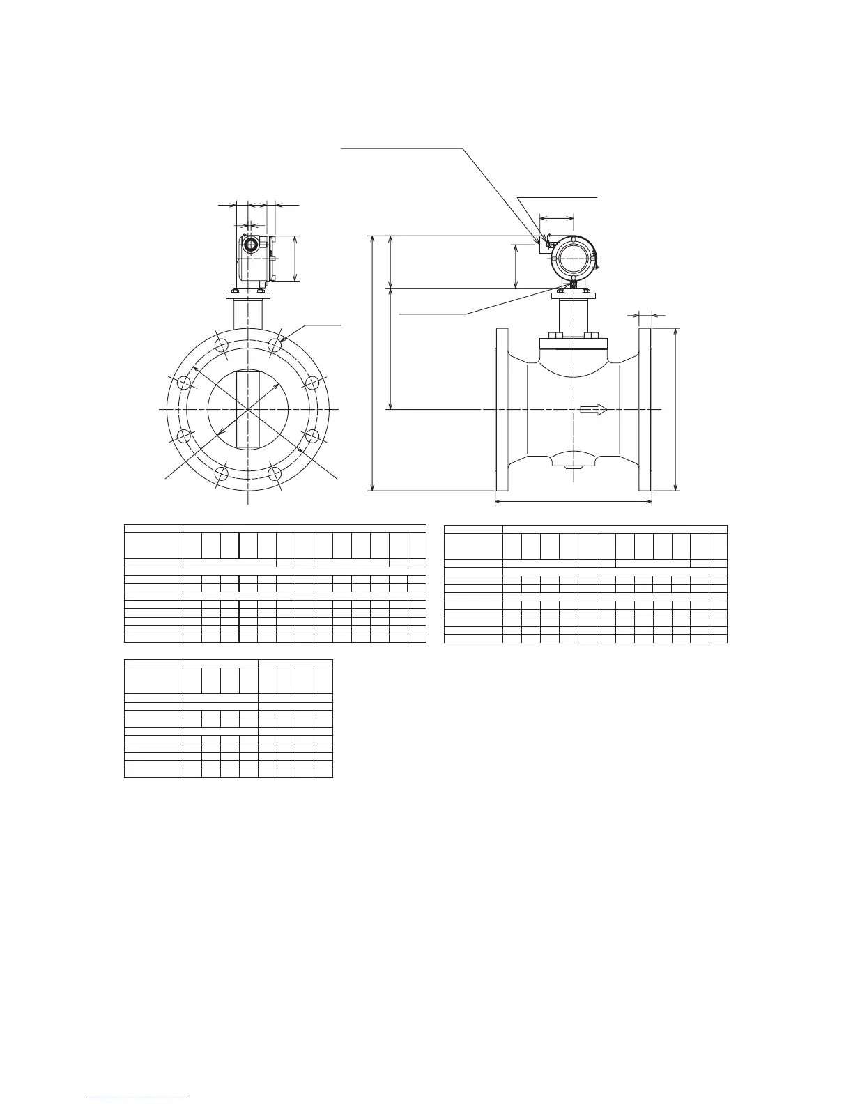
Stainless Steel Housing: DY150-/E1 up to DY300-/E1
Flange type
Unit: mm
(approx. inch)
ELECTRICAL CONNECTION
JIS G1/2 Female
ANSI 1/2NPT Female
ISO M201.5 Female
Only for
KEMA Explosionproof
CLAMP
EARTH TERMINAL
φD
L
75.5
91
H1
H
20
5
32.5
N - φG
φC
14.5
φJ
φ78
T
58
310 375 390310
185.6
241
DY200 (200A) /E1
BP1
BS1
BA1
342.9
503.5
28.4
298.5
8
22.4
55.5
BP2
BS2
BA2
381
522.5
41.1
330.2
12
25.4
80.5
BS4
BA4
370
419.1
541.5
62
349.3
12
31.8
136.1
BS5
BA5
386
469.9
567
69.9
393.7
12
38.1
182.1
BJ1
330
497
22
290
12
23
45.5
BJ2
350
507
30
305
12
25
52.5
BD4
375
519.5
34
320
12
30
56
CA4
419.1
541.5
63.6
349.3
12
31.8
139.1
CA5
469.9
567
71.4
393.7
12
38.1
183.1
BD1
340
502
24
295
8
22
46.4
BD2
340
502
24
295
12
22
46.4
BD3
360
512
30
310
12
26
53.7
Model Code
Process
Connection
L
C
D
H
H1
T
J
N
G
Weight kg
370
230.8
277
DY250 (250A) /E1 DY300 (300A) /E1
BP1
BS1
BA1
406.4
571.2
30.2
362
12
25.4
90.1
BP2
BS2
BA2
444.5
590.5
47.8
387.4
16
28.5
125.1
BJ1
400
568
24
355
12
25
78.1
BJ2
430
583
34
380
12
27
100.1
400
276.2
307
BP1
BS1
BA1
482.6
639.3
31.8
431.8
12
25.4
140.1
BP2
BS2
BA2
520.7
658.5
50.8
450.9
16
31.8
178.1
BJ1
445
620.5
24
400
16
25
100.1
BJ2
480
638
36
430
16
27
128.1
Model Code
Process
Connection
L
C
D
H
H1
T
J
N
G
Weight kg
270 336 325 340270
138.8
209
DY150 (150A) /E1
BJ4
355
477.5
44
295
12
33
76.5
BP1
BS1
BA1
279.4
439.7
25.4
241.3
8
22.4
36.5
BP2
BS2
BA2
317.5
458.5
36.6
269.7
12
22.4
54.5
BP4
BS4
BA4
310
356
478
54.4
292
12
28.4
84.5
BS5
BA5
381
490.5
62
317.5
12
31.8
106.1
BJ1
280
440
22
240
8
23
33.5
BJ2
305
452.4
28
260
12
25
43.5
BD6
355
477.5
44
290
12
33
76.5
CA4
356
478
55.7
292
12
28.4
90.1
CA5
381
490.5
63.6
317.5
12
31.8
107.1
BD1
to
BD2
285
442.5
22
240
8
22
33.5
BD3
to
BD4
300
450
28
250
8
26
43
BD5
345
472.5
36
280
8
33
58.2
Model Code
Process
Connection
L
C
D
H
H1
T
J
N
G
Weight kg

Table of Contents

Related product manuals