EasyManua.ls Logo

YOKOGAWA DY050

YOKOGAWA DY050
138 pages
To Next Page IconTo Next Page
To Next Page IconTo Next Page
To Previous Page IconTo Previous Page
To Previous Page IconTo Previous Page
Loading...
9-36
IM 01F06A00-01E
9. GENERAL DESCRIPTION
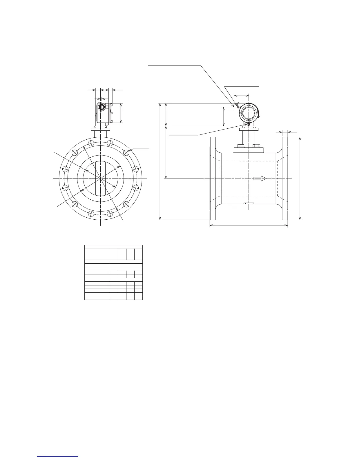
Stainless Steel Housing Reduced Bore Type (/E1/R1): DY200-/E1/R1
Flange type
Unit: mm
(approx. inch)
ELECTRICAL CONNECTION
JIS G1/2 Female
ANSI 1/2NPT Female
ISO M201.5 Female
Only for
KEMA Explosionproof
CLAMP
EARTH TERMINAL
φD
L
75.5
91
H1
H
20
5
32.5
N - φG
φC
14.5
φJ
φ78
T
58
φCS
310
185.6
138.8
209
DY200 /E1 /R1
BJ1
330
465
22
290
12
23
58.8
BJ2
350
475
30
305
12
25
74.2
BA1
BS1
BP1
342.9
471.5
28.4
298.5
8
22.4
70.8
BA2
BS2
BP2
381
490.5
41.1
330.2
12
25.4
103
Model Code
Process
Connection
L
C
CS
D
H
H1
T
J
N
G
Weight kg

Table of Contents

Related product manuals