EasyManua.ls Logo

YOKOGAWA DY050

YOKOGAWA DY050
138 pages
To Next Page IconTo Next Page
To Next Page IconTo Next Page
To Previous Page IconTo Previous Page
To Previous Page IconTo Previous Page
Loading...
9-38
IM 01F06A00-01E
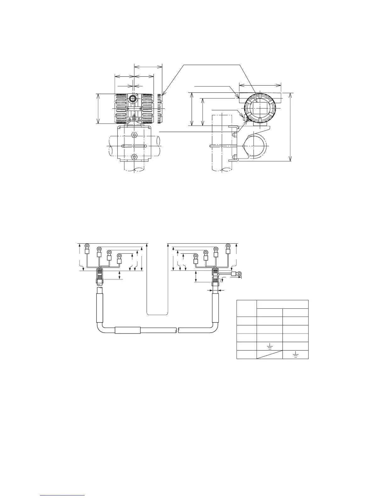
9. GENERAL DESCRIPTION
Remote Type Converter (DYA)
Unit: mm
(approx. inch)
Weight: 1.9 kg (4.19lb), 4.1 kg (9.04lb) for /E1.
Note: For flowmeters with indicator, add 0.2 kg.(0.44lb), 0.3 kg (0.66lb) for /E1.
4.5(0.18)
59(2.32) 59(2.32)
125(4.92)
103.5(4.07)
74(2.91)
φ94(3.70)
208.5(8.21)
87.5(3.44)
WITH INDICATOR
CLAMP
Only for
TIIS Explosion proof
KEMA Explosion proof
SAA Explosion proof
ELECTRICAL
CONNECTION
(both sides)
EARTH
TERMINAL
Signal Cable for Remote Type (DYC)
Unit: mm
(approx. inch)
(Black)
(White) (Red)
(Red) (White)
(Black)
80
(3.15)
70
(2.76)
70
(2.76)
80
(3.15)
φ9.2
(0.36)
(Blue)
60
(2.36)
25
(0.98)
95
(3.74)
60
(2.36)
50
(1.97)
20
(0.79)
Sepcified
Length (L)
30m (max.)
DYC
Flowmeter
Converter
Color
Cable Color and Terminal
Terminal
Yellow
(*1)
Red
White
Black
Blue
Flow meter
T
A
B
Converter
T
A
B
C
(Yellow)
(Yellow)
(*1) Only for /MV
50
(1.97)

Table of Contents

Related product manuals