EasyManua.ls Logo

ABB ACS800-U4 - Page 84

ABB ACS800-U4
144 pages
Print Icon
To Next Page IconTo Next Page
To Next Page IconTo Next Page
To Previous Page IconTo Previous Page
To Previous Page IconTo Previous Page
Loading...
Electrical installation
76
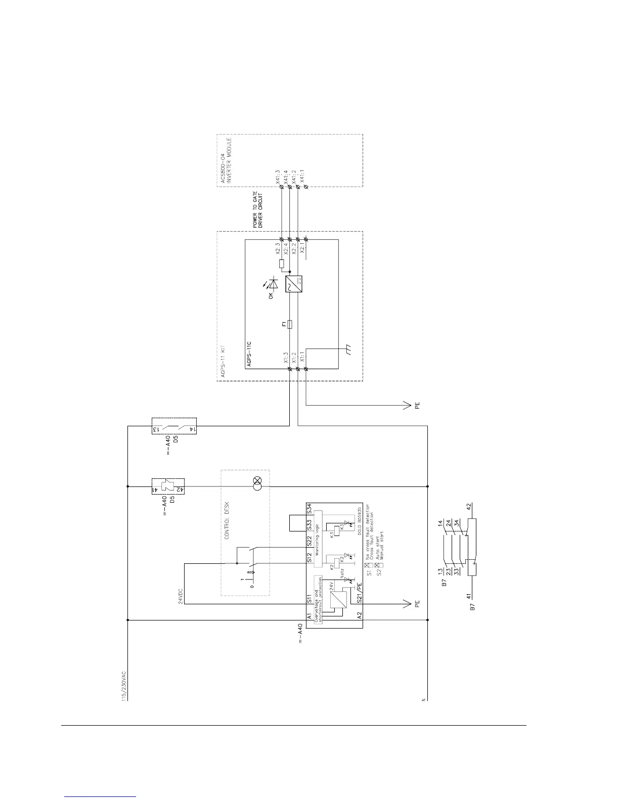
The following figure presents the circuit diagram of the Prevention of Unexpected
Start.
3AFE00374994
/U4
Phone: 800.894.0412 - Fax: 888.723.4773 - Web: www.clrwtr.com - Email: info@clrwtr.com

Table of Contents

Related product manuals