EasyManua.ls Logo

ActronAir EVV140S - Zone Barrel Installation Instructions

ActronAir EVV140S
40 pages
Print Icon
To Next Page IconTo Next Page
To Next Page IconTo Next Page
To Previous Page IconTo Previous Page
To Previous Page IconTo Previous Page
Loading...
Installation and Commissioning Guide
Split Ducted Units
PRELIMINARY DATA ONLY Ver. 3.03 220620
THIS LABEL TO BE REMOVED ON SIGN-OFF
22
Installation and Commissioning Guide - Split Ducted Indoor Unit
Doc. No.0525-084 Ver. 3 22xxxx
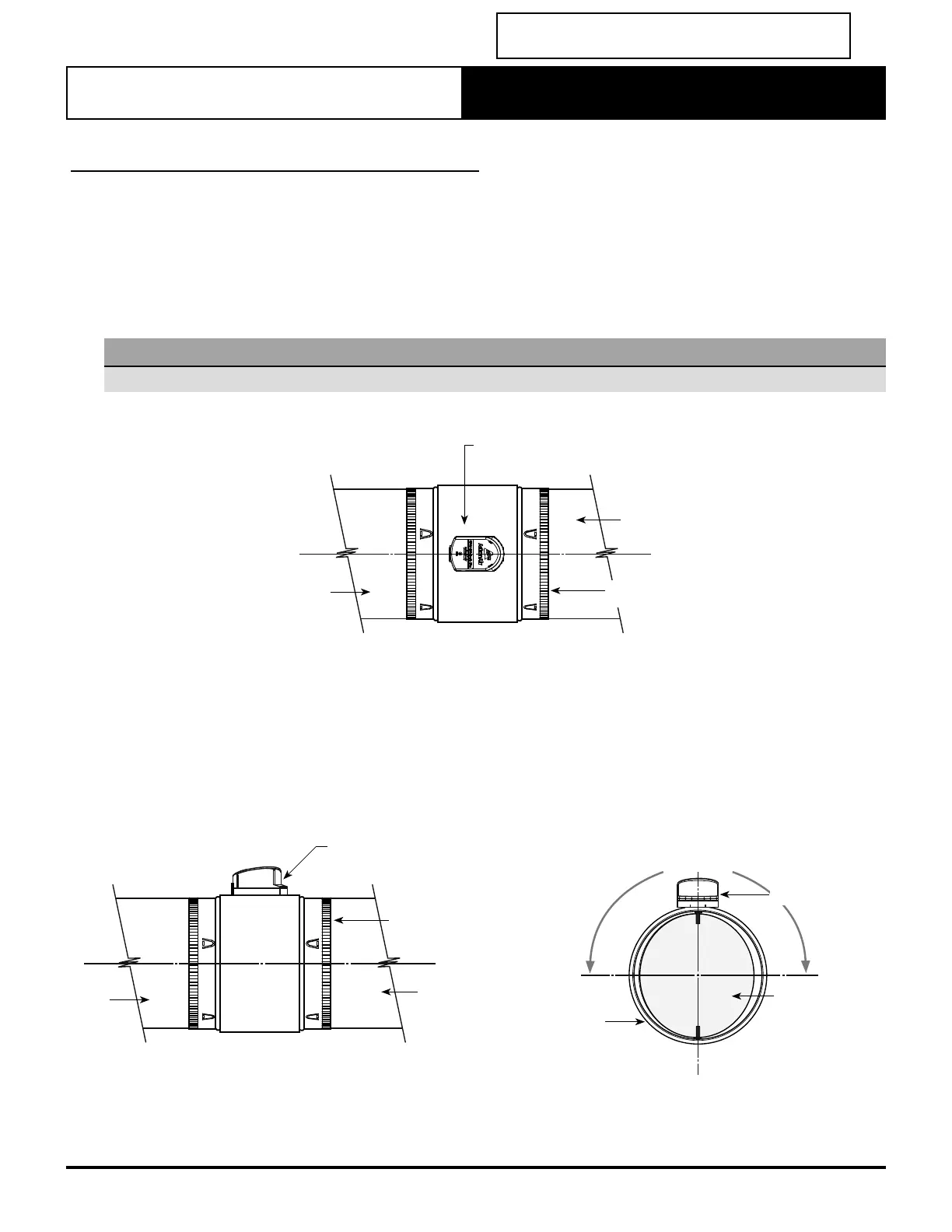
Zone Barrel Installation Instructions
In the installation of zone barrels, extra caution must be taken as damper motors are IP20 Rated and MUST NOT BE
INSTALLED IN AN AREA WHERE CONDENSATION WILL BE AN ISSUE.
It is highly recommended that indoor units and accessories, particularly zone barrels, be mounted in the roof cavity.
Mounting of zone barrels should be horizontally positioned ensuring that the damper motor is located on the upper half
of the barrel’s centerline (positions that range from 9 o’clock to 3 o’clock), as shown below:
It is also recommended that only ActronAir 24V zones be connected to this system using RJ45 cable connections.
Warranty may be void if third party zones cause damage to the system.
NOTE
All drawings are for illustration purposes only. Actual unit may vary depending on the model.
TOP VIEW
T
Y
P
E
1
0
"
(
2
5
0
m
m
)
P
A
R
T
N
U
M
B
E
R
Z
B
-
1
0
-
2
5
0
I
N
T
E
G
R
A
T
E
D
Z
O
N
E
B
A
R
R
E
L
P
A
R
T
N
U
M
B
E
R
S
1
2
"
(
3
0
0
m
m
)
Z
B
-
1
2
-
3
0
0
P
le
a
s
e
c
h
e
c
k
p
r
io
r
to
p
u
r
c
h
a
s
e
.
A
c
tr
o
n
A
ir
is
c
o
n
s
ta
n
tly
s
e
e
k
in
g
w
a
y
s
to
im
p
r
o
v
e
th
e
d
e
s
ig
n
o
f
it's
p
r
o
d
u
c
ts
,
th
e
r
e
fo
r
e
s
p
e
c
ific
a
tio
n
s
a
r
e
s
u
b
je
c
t to
c
h
a
n
g
e
w
ith
o
u
t n
o
tic
e
.
Z
B
-
0
8
0
1
2
9
IN
T
E
G
R
A
T
E
D
Z
O
N
E
B
A
R
R
E
L
S
1
2
"
(
3
0
0
m
m
)
1
0
"
(
2
5
0
m
m
)
1
6
"
(
4
0
0
m
m
)
1
4
"
(
3
5
0
m
m
)
1
4
"
(
3
5
0
m
m
)
1
6
"
(
4
0
0
m
m
)
Z
B
-
1
4
-
3
5
0
Z
B
-
1
6
-
4
0
0
IT
E
M
P
A
R
T
N
U
M
B
E
R
2
4
V
O
L
T
4
Z
O
N
E
K
IT
4
Z
-
2
4
V
I
N
C
L
U
S
I
O
N
S
5
Y
E
A
R
R
E
S
I
D
E
N
T
I
A
L
/
2
Y
E
A
R
C
O
M
M
E
R
C
I
A
L
P
A
R
T
S
O
N
L
Y
W
A
R
R
A
N
T
Y
R
O
B
U
S
T
M
E
T
A
L
B
A
R
R
E
L
C
O
N
S
T
R
U
C
T
I
O
N
1
0
m
m
F
I
R
E
R
A
T
E
D
P
O
L
Y
E
T
H
E
L
Y
N
E
I
N
S
U
L
A
T
I
O
N
7
m
C
A
B
L
E
S
U
P
P
L
I
E
D
(
J
O
I
N
E
R
S
A
N
D
E
X
T
R
A
C
A
B
L
E
A
V
A
I
L
A
B
L
E
)
E
A
S
Y
S
N
A
P
-
I
N
W
I
R
I
N
G
C
O
N
N
E
C
T
I
O
N
F
A
S
T
R
E
A
C
T
I
O
N
T
I
M
E
S
A
F
E
L
O
W
V
O
L
T
A
G
E
(
2
4
V
A
C
)
H
I
G
H
T
O
R
Q
U
E
M
O
T
O
R
(
3
N
m
)
D
A
M
P
E
R
P
O
S
I
T
I
O
N
I
N
D
I
C
A
T
O
R
B
L
A
D
E
S
E
A
L
I
N
S
U
L
A
T
I
O
N
F
E
A
T
U
R
E
S
:
2
4
V
O
L
T
,
3
N
m
M
O
T
O
R
D
R
IV
E
O
P
E
N
/
D
R
I
V
E
C
L
O
S
E
I
N
S
U
L
A
T
E
D
M
E
T
A
L
Z
O
N
E
B
A
R
R
E
L
7
M
E
T
E
R
S
N
A
P
-
IN
C
A
B
L
E
2
4
V
O
L
T
Z
O
N
E
K
IT
N
O
T
E
:
T
H
E
T
O
T
A
L
L
E
N
G
T
H
O
F
A
L
L
G
R
E
Y
C
A
B
L
E
S
C
O
N
N
E
C
T
E
D
T
O
T
H
E
Z
O
N
E
M
O
T
O
R
S
M
U
S
T
N
O
T
E
X
C
E
E
D
1
0
0
M
E
T
E
R
S
I
N
C
L
U
S
I
O
N
S
:
4
Z
-
2
4
V
(
4
Z
O
N
E
K
I
T
)
N
O
T
E
:
W
H
E
N
U
S
I
N
G
I
N
T
E
G
R
A
T
E
D
Z
O
N
E
B
A
R
R
E
L
S
Y
O
U
W
I
L
L
R
E
Q
U
I
R
E
T
H
E
A
P
P
L
I
C
A
B
L
E
Z
O
N
E
K
I
T
.
(
I
N
C
L
U
S
I
O
N
S
&
I
N
S
T
A
L
L
A
T
I
O
N
I
N
S
T
R
U
C
T
I
O
N
S
A
S
P
E
R
D
E
T
A
I
L
E
D
L
I
S
T
)
O
P
T
IO
N
A
L
E
X
T
R
A
S
&
S
P
A
R
E
P
A
R
T
S
I
N
T
E
G
R
A
T
E
D
Z
O
N
E
B
A
R
R
E
L
S
O
P
E
R
A
T
E
W
I
T
H
M
-
S
E
R
I
E
S
C
O
N
T
R
O
L
S
O
N
L
Y
2
4
V
O
L
T
8
Z
O
N
E
K
IT
8
Z
-
2
4
V
A
M
Z
-
2
4
V
Z
O
N
E
C
A
R
D
2
0
V
A
,
2
4
0
T
O
2
4
V
O
L
T
T
R
A
N
S
F
O
R
M
E
R
I
N
S
T
A
L
L
A
T
IO
N
I
N
S
T
R
U
C
T
I
O
N
S
M
O
U
N
T
IN
G
S
C
R
E
W
S
L
E
N
G
T
H
O
F
A
L
L
B
A
R
R
E
L
S
M
E
A
S
U
R
E
2
9
0
m
m
.
D
IM
E
N
S
I
O
N
S
A
L
L
I
N
T
E
G
R
A
T
E
D
Z
O
N
E
B
A
R
R
E
L
S
C
O
M
E
I
N
D
I
V
I
D
U
A
L
L
Y
B
O
X
E
D
F
O
R
S
A
F
E
T
R
A
N
S
P
O
R
T
.
I
N
C
L
U
S
I
O
N
S
:
8
Z
-
2
4
V
(
8
Z
O
N
E
K
I
T
)
8
Z
-
2
4
V
Z
O
N
E
M
O
D
U
L
E
I
N
S
T
A
L
L
A
T
IO
N
I
N
S
T
R
U
C
T
I
O
N
S
M
O
U
N
T
I
N
G
S
C
R
E
W
S
IT
E
M
P
A
R
T
N
U
M
B
E
R
7
M
E
T
E
R
C
A
B
L
E
4
0
7
0
-
0
0
4
Z
O
N
E
M
O
T
O
R
O
N
L
Y
T
R
A
N
S
F
O
R
M
E
R
O
N
L
Y
Z
M
-
2
4
V
2
0
4
5
-
0
4
6
2
0
M
E
T
E
R
C
A
B
L
E
4
0
7
0
-
0
0
7
2
-
W
A
Y
R
J
4
5
J
O
IN
E
R
2
0
4
5
-
1
2
1
3
-
W
A
Y
R
J
4
5
J
O
IN
E
R
4
0
7
0
-
0
0
8
DUCT
DUCT
ZONE BARREL
DAMPER MOTOR ON TOP
OF THE ZONE BARREL
T
Y
P
E
1
0
"
(
2
5
0
m
m
)
P
A
R
T
N
U
M
B
E
R
Z
B
-
1
0
-
2
5
0
I
N
T
E
G
R
A
T
E
D
Z
O
N
E
B
A
R
R
E
L
P
A
R
T
N
U
M
B
E
R
S
1
2
"
(
3
0
0
m
m
)
Z
B
-
1
2
-
3
0
0
P
le
a
s
e
c
h
e
c
k
p
r
io
r
to
p
u
r
c
h
a
s
e
.
A
c
tr
o
n
A
ir
is
c
o
n
s
ta
n
tly
s
e
e
k
in
g
w
a
y
s
to
im
p
r
o
v
e
th
e
d
e
s
ig
n
o
f
it's
p
r
o
d
u
c
ts
,
th
e
r
e
fo
r
e
s
p
e
c
ific
a
tio
n
s
a
r
e
s
u
b
je
c
t to
c
h
a
n
g
e
w
ith
o
u
t n
o
tic
e
.
Z
B
-
0
8
0
1
2
9
IN
T
E
G
R
A
T
E
D
Z
O
N
E
B
A
R
R
E
L
S
1
2
"
(
3
0
0
m
m
)
1
0
"
(
2
5
0
m
m
)
1
6
"
(
4
0
0
m
m
)
1
4
"
(
3
5
0
m
m
)
1
4
"
(
3
5
0
m
m
)
1
6
"
(
4
0
0
m
m
)
Z
B
-
1
4
-
3
5
0
Z
B
-
1
6
-
4
0
0
IT
E
M
P
A
R
T
N
U
M
B
E
R
2
4
V
O
L
T
4
Z
O
N
E
K
IT
4
Z
-
2
4
V
I
N
C
L
U
S
I
O
N
S
5
Y
E
A
R
R
E
S
I
D
E
N
T
I
A
L
/
2
Y
E
A
R
C
O
M
M
E
R
C
I
A
L
P
A
R
T
S
O
N
L
Y
W
A
R
R
A
N
T
Y
R
O
B
U
S
T
M
E
T
A
L
B
A
R
R
E
L
C
O
N
S
T
R
U
C
T
I
O
N
1
0
m
m
F
I
R
E
R
A
T
E
D
P
O
L
Y
E
T
H
E
L
Y
N
E
I
N
S
U
L
A
T
I
O
N
7
m
C
A
B
L
E
S
U
P
P
L
I
E
D
(
J
O
I
N
E
R
S
A
N
D
E
X
T
R
A
C
A
B
L
E
A
V
A
I
L
A
B
L
E
)
E
A
S
Y
S
N
A
P
-
I
N
W
I
R
I
N
G
C
O
N
N
E
C
T
I
O
N
F
A
S
T
R
E
A
C
T
I
O
N
T
I
M
E
S
A
F
E
L
O
W
V
O
L
T
A
G
E
(
2
4
V
A
C
)
H
I
G
H
T
O
R
Q
U
E
M
O
T
O
R
(
3
N
m
)
D
A
M
P
E
R
P
O
S
I
T
I
O
N
I
N
D
I
C
A
T
O
R
B
L
A
D
E
S
E
A
L
I
N
S
U
L
A
T
I
O
N
F
E
A
T
U
R
E
S
:
2
4
V
O
L
T
,
3
N
m
M
O
T
O
R
D
R
IV
E
O
P
E
N
/
D
R
I
V
E
C
L
O
S
E
I
N
S
U
L
A
T
E
D
M
E
T
A
L
Z
O
N
E
B
A
R
R
E
L
7
M
E
T
E
R
S
N
A
P
-
IN
C
A
B
L
E
2
4
V
O
L
T
Z
O
N
E
K
IT
N
O
T
E
:
T
H
E
T
O
T
A
L
L
E
N
G
T
H
O
F
A
L
L
G
R
E
Y
C
A
B
L
E
S
C
O
N
N
E
C
T
E
D
T
O
T
H
E
Z
O
N
E
M
O
T
O
R
S
M
U
S
T
N
O
T
E
X
C
E
E
D
1
0
0
M
E
T
E
R
S
I
N
C
L
U
S
I
O
N
S
:
4
Z
-
2
4
V
(
4
Z
O
N
E
K
I
T
)
N
O
T
E
:
W
H
E
N
U
S
I
N
G
I
N
T
E
G
R
A
T
E
D
Z
O
N
E
B
A
R
R
E
L
S
Y
O
U
W
I
L
L
R
E
Q
U
I
R
E
T
H
E
A
P
P
L
I
C
A
B
L
E
Z
O
N
E
K
I
T
.
(
I
N
C
L
U
S
I
O
N
S
&
I
N
S
T
A
L
L
A
T
I
O
N
I
N
S
T
R
U
C
T
I
O
N
S
A
S
P
E
R
D
E
T
A
I
L
E
D
L
I
S
T
)
O
P
T
IO
N
A
L
E
X
T
R
A
S
&
S
P
A
R
E
P
A
R
T
S
I
N
T
E
G
R
A
T
E
D
Z
O
N
E
B
A
R
R
E
L
S
O
P
E
R
A
T
E
W
I
T
H
M
-
S
E
R
I
E
S
C
O
N
T
R
O
L
S
O
N
L
Y
2
4
V
O
L
T
8
Z
O
N
E
K
IT
8
Z
-
2
4
V
A
M
Z
-
2
4
V
Z
O
N
E
C
A
R
D
2
0
V
A
,
2
4
0
T
O
2
4
V
O
L
T
T
R
A
N
S
F
O
R
M
E
R
IN
S
T
A
L
L
A
T
IO
N
I
N
S
T
R
U
C
T
I
O
N
S
M
O
U
N
T
I
N
G
S
C
R
E
W
S
L
E
N
G
T
H
O
F
A
L
L
B
A
R
R
E
L
S
M
E
A
S
U
R
E
2
9
0
m
m
.
D
IM
E
N
S
I
O
N
S
A
L
L
I
N
T
E
G
R
A
T
E
D
Z
O
N
E
B
A
R
R
E
L
S
C
O
M
E
I
N
D
I
V
I
D
U
A
L
L
Y
B
O
X
E
D
F
O
R
S
A
F
E
T
R
A
N
S
P
O
R
T
.
I
N
C
L
U
S
I
O
N
S
:
8
Z
-
2
4
V
(
8
Z
O
N
E
K
I
T
)
8
Z
-
2
4
V
Z
O
N
E
M
O
D
U
L
E
I
N
S
T
A
L
L
A
T
IO
N
I
N
S
T
R
U
C
T
I
O
N
S
M
O
U
N
T
I
N
G
S
C
R
E
W
S
IT
E
M
P
A
R
T
N
U
M
B
E
R
7
M
E
T
E
R
C
A
B
L
E
4
0
7
0
-
0
0
4
Z
O
N
E
M
O
T
O
R
O
N
L
Y
T
R
A
N
S
F
O
R
M
E
R
O
N
L
Y
Z
M
-
2
4
V
2
0
4
5
-
0
4
6
2
0
M
E
T
E
R
C
A
B
L
E
4
0
7
0
-
0
0
7
2
-
W
A
Y
R
J
4
5
J
O
IN
E
R
2
0
4
5
-
1
2
1
3
-
W
A
Y
R
J
4
5
J
O
IN
E
R
4
0
7
0
-
0
0
8
SIDE VIEW
DUCT
DUCT
ZONE BARREL
DAMPER MOTOR ON
TOP
OF THE ZONE BARREL
PREFERRED LOCATION
FRONT VIEW
UPPER HALF OF ZONE
BARREL’S CENTRE LINE
ZONE BARREL
DAMPER BLADE
DAMPER MOTOR
RECOMMENDED LOCATION

Related product manuals