EasyManua.ls Logo

ActronAir EVV140S - Fan Section

ActronAir EVV140S
40 pages
Print Icon
To Next Page IconTo Next Page
To Next Page IconTo Next Page
To Previous Page IconTo Previous Page
To Previous Page IconTo Previous Page
Loading...
Installation and Commissioning Guide
Split Ducted Units
PRELIMINARY DATA ONLY Ver. 3.03 220620
THIS LABEL TO BE REMOVED ON SIGN-OFF
12
Installation and Commissioning Guide - Split Ducted Indoor Unit
Doc. No.0525-084 Ver. 3 22xxxx
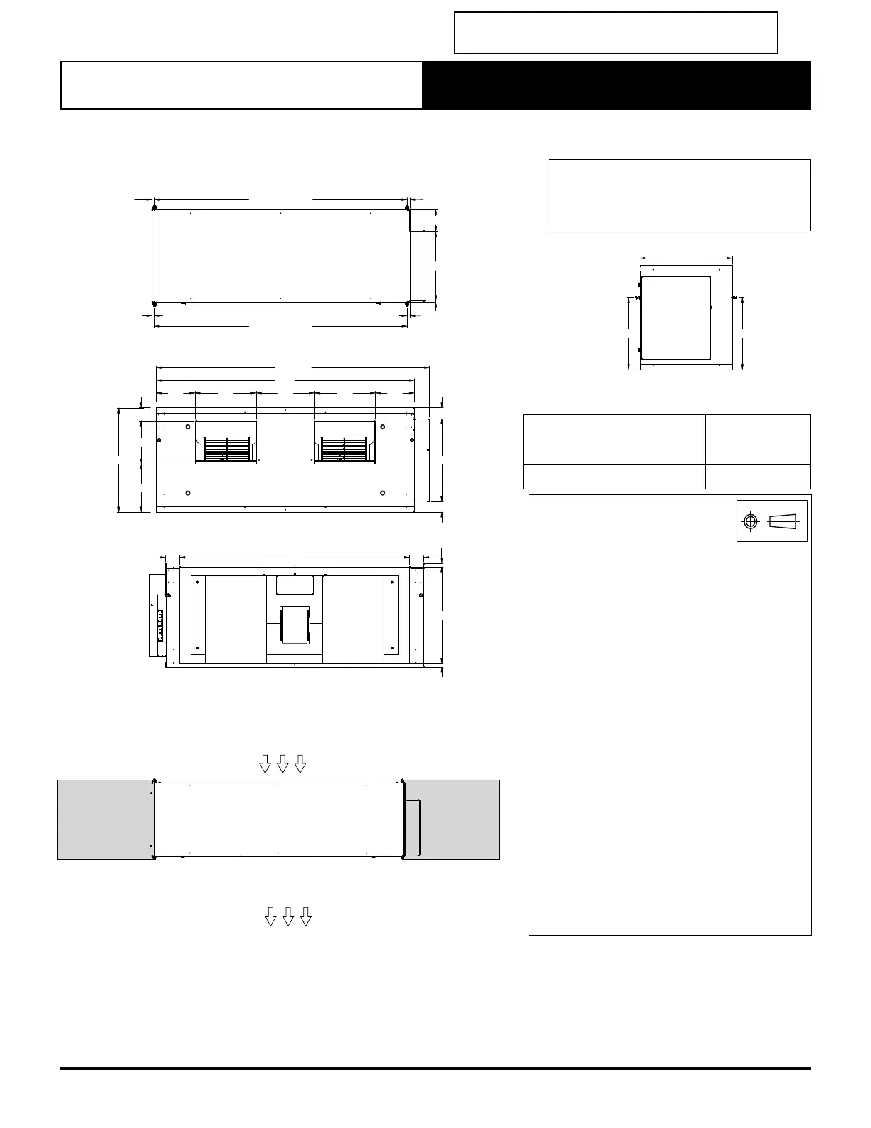
Fan Section
189
168
51
408 O/A
152 240 228 240 152
1012
1072 O/A
43
322
43
11
990
(MTG C-C DIST)
11
87
270
5
11
990
(MTG C-C DIST)
11
282
362 O/A
282
56 900 56
15
378
15
EFV140S  EFV160S  EFV180S
OVERALL NOMINAL DIMENSION H X W X D
= 408 X 1072 X 362
SUPPLY DUCT H X W = 168 X 707
RETURN DUCT = 378 X 900
UNIT MODEL NUMBER
UNIT WEIGHT
(kg)
EFV140S / EFV160S / EFV180S 31
TOP VIEW
FRONT VIEW - SUPPLY AIR
REAR VIEW - RETURN AIR
SIDE VIEW
189
168
51
408 O/A
152 240 228 240 152
1012
1072 O/A
43
322
43
11
990
(MTG C-C DIST)
11
87
270
5
11
990
(MTG C-C DIST)
11
282
362 O/A
282
56 900 56
15
378
15
MINIMUM SERVICE ACCESS AREAS AND AIRFLOW CLEARANCES
* Electrical box and/or
pipe connections are
located on the Right
side of the indoor unit.
LEFT
SERVICE
CLEARANCE
800 MM
TOP VIEW
FAN SECTION
DUCT WORK
DUCT WORK
FROM COIL SECTION
0M MIN  6M MAX
*RIGHT
SERVICE
CLEARANCE
800 MM
HEIGHT CLEARANCE = 340mm
NOTES:
1. Do not scale drawing.
All dimensions are in mm unless
specified.
2. Service Clearances given are suggested
minimum based on the condition that
the spaces around the units are free
from any obstructions and a walkway
passage of 1000mm between the units
or between the unit and the outside
perimeter is available.
3. Minimum service access clearances are
responsibilities of the installer, ActronAir
will not be held liable for any extra
charges incurred due to lack of access.
Left Service Clearance can be 100mm
minimum if Right Service Clearance is
applicable.
Right Service Clearance can be
600mm minimum if Left Service
Clearance is applicable.
Height Service Clearance can be
100mm minimum if Right Service
Clearance is applicable.
THIRD ANGLE
PROJECTION

Related product manuals