EasyManua.ls Logo

ActronAir EVV140S - Wiring Configuration: Alternate

ActronAir EVV140S
40 pages
Print Icon
To Next Page IconTo Next Page
To Next Page IconTo Next Page
To Previous Page IconTo Previous Page
To Previous Page IconTo Previous Page
Loading...
Installation and Commissioning Guide
Split Ducted Units
PRELIMINARY DATA ONLY Ver. 3.03 220620
THIS LABEL TO BE REMOVED ON SIGN-OFF
30
Installation and Commissioning Guide - Split Ducted Indoor Unit
Doc. No.0525-084 Ver. 3 22xxxx
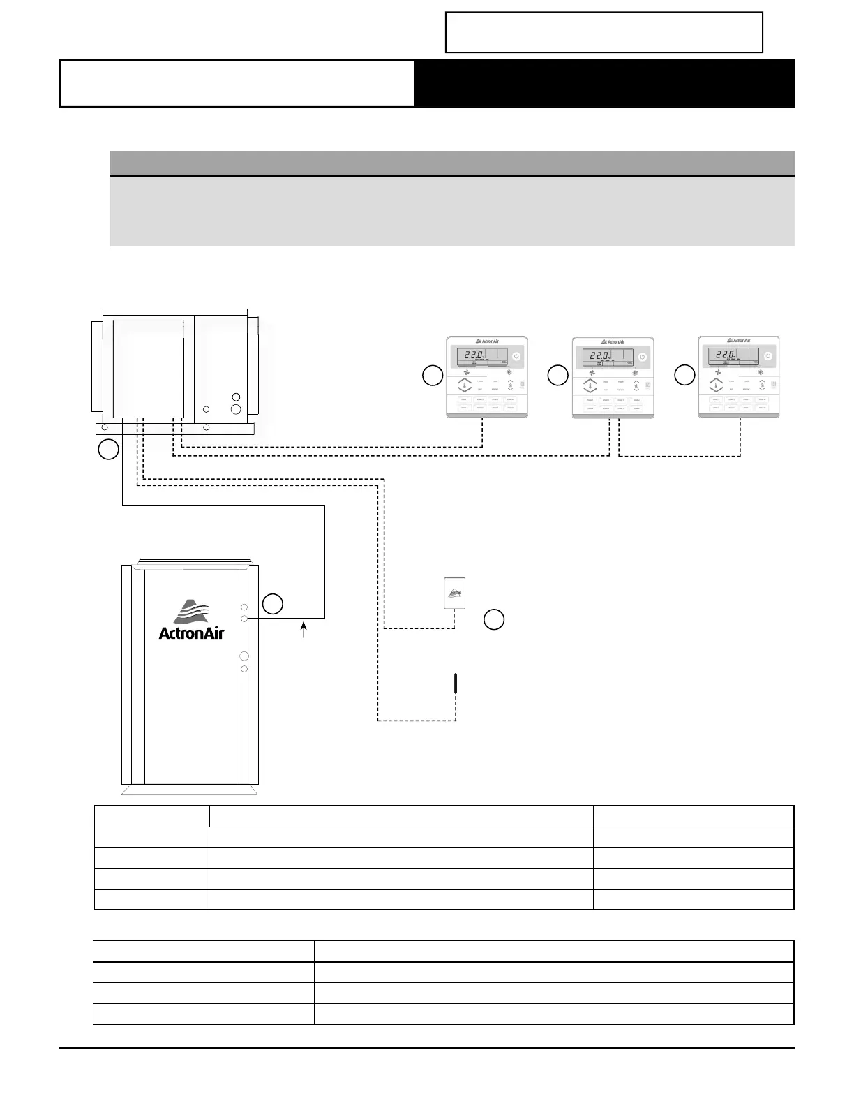
Wiring Confi guration : Alternate
NOTES
Diagram shown below is a general representation only. Refer to individual unit wiring diagram for complete wiring
connection details.
Long runs beside Mains cables or TV antenna cables should be avoided where possible.
Wiring confi guration for LR7-1 and LC7-2 wall controller is the same.
INDOOR UNIT
OUTDOOR UNIT
1
DATA CONTROL
CABLE
3
4
AERSS
OPTIONAL
2a
LR71
WALL CONTROLLER 1
OPTIONAL
LR71
WALL CONTROLLER 2
OPTIONAL
LR71
WALL CONTROLLER 3
OPTIONAL
2b
2c
LMRS2
OPTIONAL
Item Description Maximum Cable Length
1 to 4 Outdoor PCB to Indoor PCB 100m
4 to 2a Indoor PCB to Wall Controller 1 100m
4 to 2c Indoor PCB to Wall Controller 3 (last controller) 75m total (Daisy Chain)**
4 to 3 Indoor PCB to Remote Sensor 100m
** Maximum Daisy Chain connection is up to 2 wall Controllers.
Description Cable Type
Indoor to Wall Controller Cat5e UTP (AWG 24) Data Cable
Indoor to Remote Sensor Cat5e UTP (AWG 24) Data Cable
Indoor to Outdoor Data Cable 2 Core (1 Pair) Twisted Pair, 7/0.30 (0.5mm2) Shielded Data Cable

Related product manuals