EasyManua.ls Logo

Aerco BENCHMARK 6000 - Appendix F - Clearance Drawings

Aerco BENCHMARK 6000
210 pages
Print Icon
To Next Page IconTo Next Page
To Next Page IconTo Next Page
To Previous Page IconTo Previous Page
To Previous Page IconTo Previous Page
Loading...
Benchmark 6000 Boiler Installation, Operation & Maintenance Manual
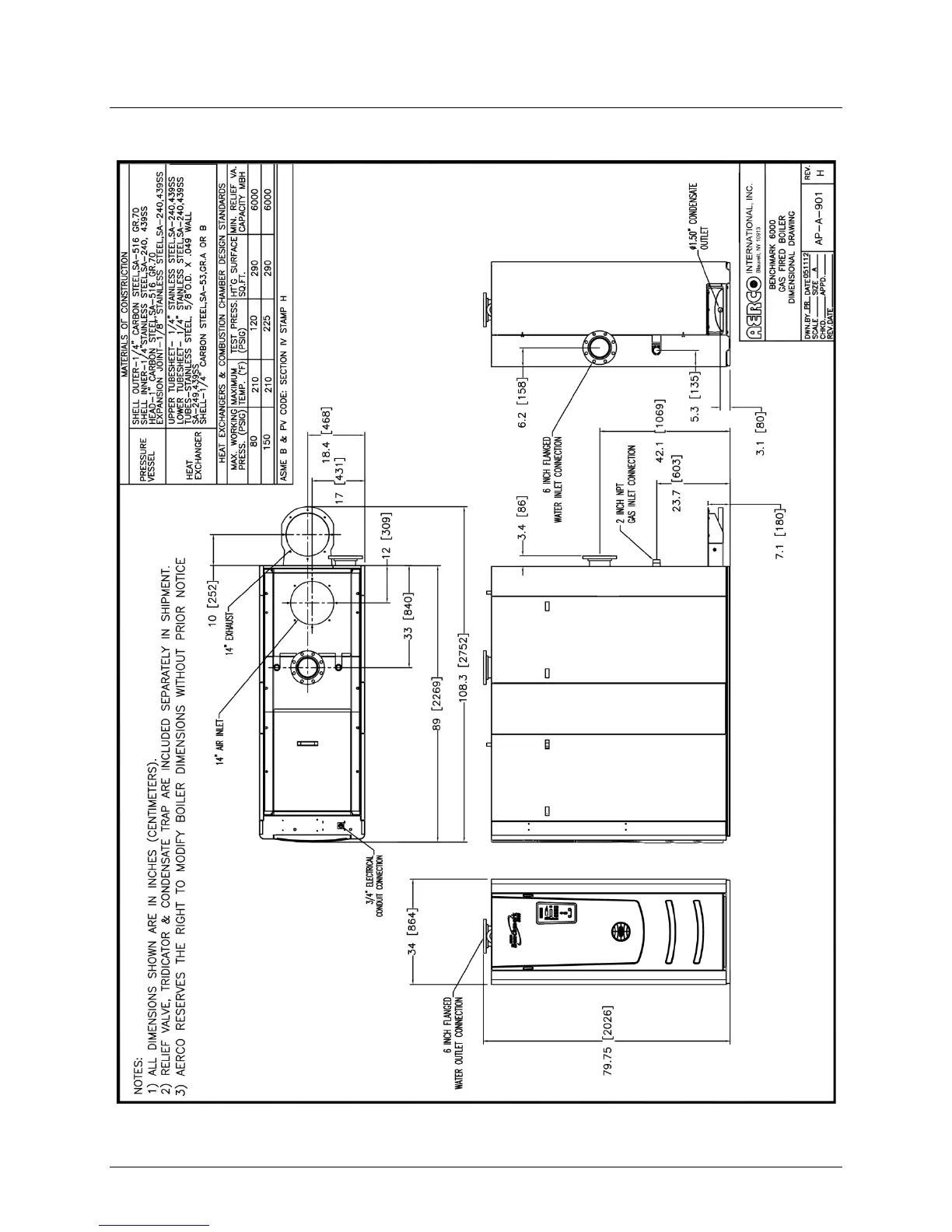
APPENDIX F CLEARANCE DRAWINGS
OMM-0086_0D AERCO International, Inc. 100 Oritani Dr. Blauvelt, NY 10913 Page 169 of 210
GF-133 Ph.: 800-526-0288 03/20/14
APPENDIX F CLEARANCE DRAWINGS
Drawing Number: AP-A-901 rev H

Table of Contents

Related product manuals