EasyManua.ls Logo

AERMEC WRL-H - Sound Data; Expansion Vessel Calibration

AERMEC WRL-H
52 pages
Print Icon
To Next Page IconTo Next Page
To Next Page IconTo Next Page
To Previous Page IconTo Previous Page
To Previous Page IconTo Previous Page
Loading...
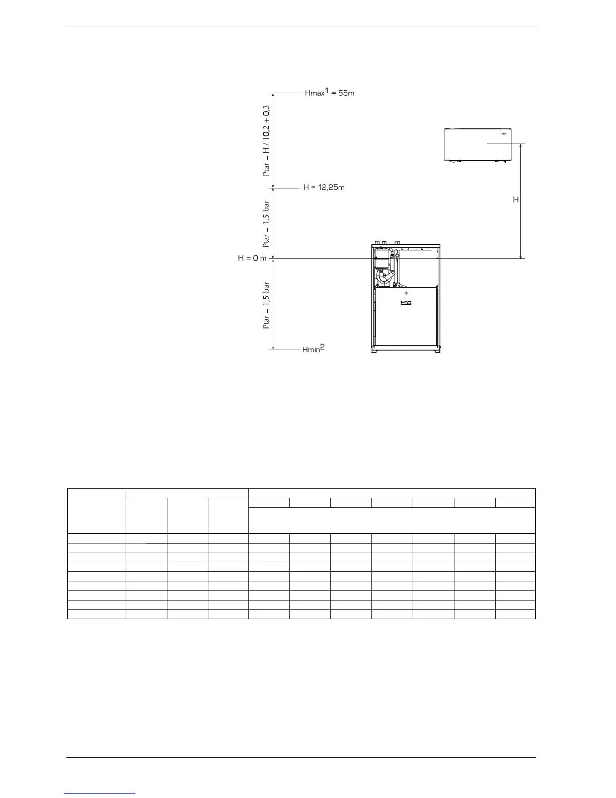
13. EXPANSION VESSEL
CALIBRATION
The standard pressure pre-load value of
the expansion vessel is 1.5 bar, maximum
value is 6 bar.
The calibration of the vessel must be
regulated in accordance with the
maximum level difference (H) of the
user (see diagram) using the following
formula:
p (calibration) [bar] = H [m] / 10.2 + 0.3.
For example: if level difference H is
equal to 20 m, the calibration value of
the vessel will be 2.3 bar.
If the calibration value obtained from
the formula is less than 1.5 bar (i.e. for
H < 12.25), use the standard calibration.
Reference operational conditions:
(1) Cooling: Max water temp. = 40 °C, min water temp. = 4 °C.
(2) Heating (heat pump): Max water temp. = 60 °C, Min water temp. = 4 °C.
KEY
(1)
Check that highest installation is not
higher than 55 metres.
(2) Ensure that lowest installation can
withstand global pressure in that
position.
14. SOUND DATA
The sound data is calculated in the nominal heating conditions.
CONDENSER
Water inlet temperature .............. 40 °C
Water outlet temperature ..........45 °C
WRL-H
Total sound levels Octave band [Hz]
Power
dB(A)
[2]
LW
Pressure
1m
dB(A)
[3]
LP
Pressure
10m
dB(A)
[4]
LP
125 250 500 1000 2000 4000 8000
Sound power for centre of band [dB] frequency
025H
55,5 41,1 24,3 66,5 58,1 51,5 46,3 44,9 36,7 33,2
030H 57,0 42,6 25,8 67,9 59,7 53,1 47,6 46,1 38,1 34,5
040H 57,5 43,1 26,3 68,2 60,2 53,7 48,2 46,6 38,9 35,1
050H 59,0 44,2 27,7 69,6 61,6 55,3 49,9 48,8 41,3 37,3
070H 60,0 45,2 28,7 70,6 62,8 56,2 50,9 49,8 42,7 38,6
080H 60,5 45,7 29,2 70,9 63,0 56,3 51,1 50,0 42,9 38,9
100H 62,0 46,7 30,6 72,8 65,0 58,2 52,6 51,6 44,3 39,5
140H 63,0 47,7 31,6 73,6 65,8 59,2 53,9 52,8 45,7 41,6
160H 63,5 48,2 32,1 73,9 66,0 59,3 54,1 53,0 45,9 41,9
[2]
Sound power; Aermec determines the sound power value on the basis of measurements taken in accordance with standard 9614-2, in com-
pliance with the Eurovent certification.
[3]
Sound pressure in an unrestricted range on a reflective plane (directional fact. Q=2), 1m away from the unit external surface,
complying with ISO 3744.
[4]
Sound pressure in an unrestricted range on a reflective plane (directional fact. Q=2), 10m away from the unit external surface,
complying with ISO 3744.
46
IWRLTY. 1201. 5890974_06

Related product manuals