EasyManua.ls Logo

Allen-Bradley 1746-NT8 - Page 70

Allen-Bradley 1746-NT8
110 pages
Print Icon
To Next Page IconTo Next Page
To Next Page IconTo Next Page
To Previous Page IconTo Previous Page
To Previous Page IconTo Previous Page
Loading...
Publication 1746-UM022B-EN-P - January 2005
5-14 Programming Examples
S:1
15
step
U
B3:0
4
NT8_CONFIGURED
B3:0
4
NT8_CONFIGURED
MVM
Masked Move
Source N30:2
256<
Mask 0FH
15<
Dest N11:3
0<
MVM
RIO_RACK1_FLT
NEQ
Not Equal
Source A N11:3
0<
Source B 0
0<
NEQ
RIO_RACK1_FLT
U
B3:0
4
NT8_CONFIGURED
B3:0
4
NT8_CONFIGURED
BT20:1
EN
NT8_BTW/EN
EN
DN
ER
BTW
Block Transfer Write
Module Type
Generic Block Transfer
Rack 001
Group 0
Module 0
Control Block BT20:1
Data File N12:10
Length 8
Continuous No
BTW
NT8_BTW
BT20:1
DN
BTW_DONE
L
B3:0
4
NT8_CONFIGURED
B3:0
4
NT8_CONFIGURED
BT20:0
EN
BTR_TRIGGER
EN
DN
ER
BTR
Block Transfer Read
Module Type
Generic Block Transfer
Rack 001
Group 0
Module 0
Control Block BT20:0
Data File N12:0
Length 8
Continuous No
BTR
END
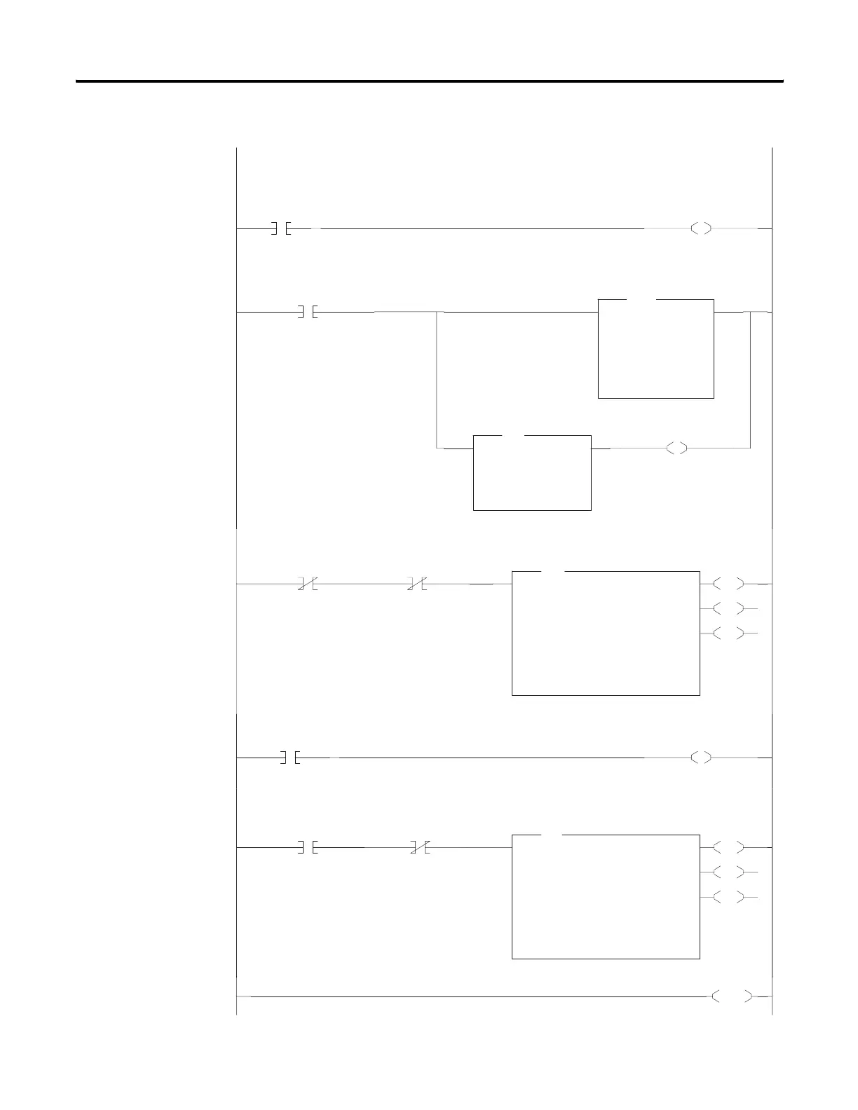
During the first scan, clear the NT8 Configurated bit (B3/4) to initiate the NT8 configuration process.
First scan or SFC
If the NT8 is configured and a rack fault occurs, clear the NT8 Configured bit (B3/4) to initiate the NT8 configuration process.
Until the NT8 is configured, send the 8 configuration words (N12:10 - 17) to the NT8 using repeating BTW’s.
If the NT8 is configured, read the 8 input words into N12:0 - N12:7 using repeating BTR’s.
When the NT8 is configured latch the NT8 Configured bit (B3/4).

Table of Contents

Related product manuals