EasyManua.ls Logo

Allen-Bradley 1756-IA32 - 1756-Ov32 E

Allen-Bradley 1756-IA32
258 pages
Print Icon
To Next Page IconTo Next Page
To Next Page IconTo Next Page
To Previous Page IconTo Previous Page
To Previous Page IconTo Previous Page
Loading...
Rockwell Automation Publication 1756-UM058G-EN-P - November 2012 173
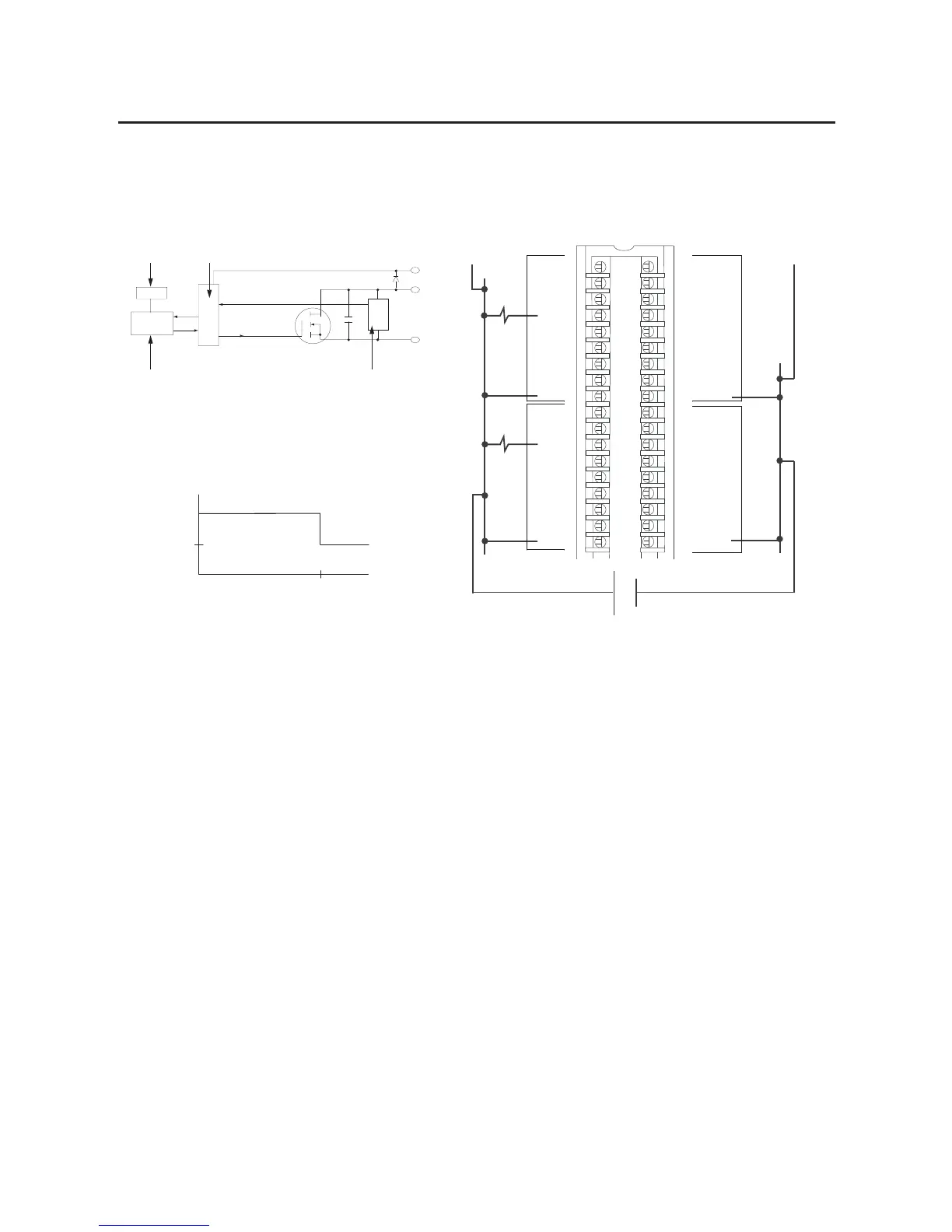
Wiring Diagrams Chapter 8
1756-OV32E
ControlLogix DC (10...30V) electronically-fused, sinking output module
12
34
56
78
910
1112
1314
1516
1718
1920
2122
2324
2526
2728
2930
3132
3334
3536
+
_
Daisy Chain to
Other RTBs
Daisy Chain to
Other RTBs
Group 0
Group 1
Group 0
Group 1
DC COM
OUT-1
OUT-3
OUT-5
OUT-7
OUT-9
OUT-11
OUT-13
OUT-15
DC-0(+)
DC-1(+)
OUT-0
OUT-2
OUT-4
OUT-6
OUT-8
OUT-10
OUT-12
OUT-14
RTN OUT-0
RTN OUT-1
OUT-17
OUT-19
OUT-21
OUT-23
OUT-25
OUT-27
OUT-29
OUT-31
OUT-16
OUT-18
OUT-20
OUT-22
OUT-24
OUT-26
OUT-28
OUT-30
1756-OV32E
ControlLogix
Backplane
Interface
Electronic Fuse
Circuitry
Continuous @ 60 °C (140 °F)
Display Optoisolation
RTN OUT-0
OUT-0
DC-0(+)
Surge Current Chart
Simplified Schematic
Surge
Current
Time
0
10 ms
1 A
2 A

Table of Contents

Related product manuals