EasyManua.ls Logo

Alto-Shaam AR-7T

Alto-Shaam AR-7T
88 pages
To Next Page IconTo Next Page
To Next Page IconTo Next Page
To Previous Page IconTo Previous Page
To Previous Page IconTo Previous Page
Loading...
INSTALLATION
Rot iss erie O p era tor s Ma n u al M N- 3940 4 Re v 1 1 /1 9
19
INSTALLATION
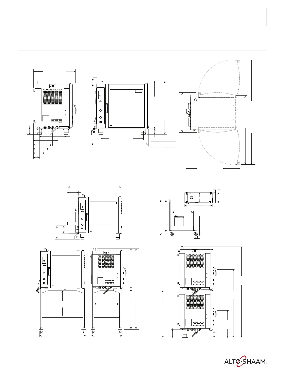
Dimension Drawings
39-5/16" (998mm)
41-3/16" (1046mm)
25-11/16"
(652mm)
Shown with fully extended feet 5017128
22-9/16"
(573mm)
27-1/2" (699mm)
36" (914mm)
22-1/2"
(572mm)
72-5/8" (1844mm)
36-5/8" (930mm)
7-3/4" (197mm)
11-3/4" (298mm) min.
13-3/4" (349mm) max.*
50-1/2" (1282mm)
10-5/8" (270mm)
41-5/16"
(1049mm)
7-1/8"
(181mm)
57-1/4"
(1450mm)
23-1/2"
(597mm)
6"
(152mm)
76-3/4"
(1950mm)
22-3/16" (563mm)
3-3/8" (86mm)
20-1/4"
(514mm)
37" (940mm)
33-1/4" (845mm)
28-1/2" (724mm)
10-1/2" (267mm) 11-3/16" (284mm)
Curved glass door
46-1/2" (1182mm)
Flat glass door
46-7/8" (1189mm)
A
B
E
Curved glass door,
pass-through
35-3/8" (897mm)
Flat glass door,
pass-through
35-7/8" (911mm)
Shown with legs 5016115
*6
"
(152mm) leg height may be
required for countertop installation
Leg package
5016115
5-1/8" (131mm) min., 7-1/8" (181mm) max.*
43-3/4" (1113mm)
with grease collection valve
set at 45° angle
36-5/8"
(930mm)
2-1/2" (63mm)
40-5/8"
(1032mm) min.
42-5/8"
(1083mm) max.*
32-5/8" (830mm)
Pass-through, all doors
90-7/8" (2309mm)
Reach-in, all doors
60" (1524mm)
C
D
20-5/16"
(516mm)
14-1/2" (367mm) [B]
17-3/4" (451mm) [A]
11-7/8" (300mm) [C]
8-5/8" (220mm) [D]
4-3/8" (111mm) [E]
Curved glass door, pass-through: +2-7/8" (73mm)
Flat glass door, pass-through: +3" (76mm)
[A] = Grease drain [D] = Water inlet
[B] = Electrical connection [E] = Liquid cleaner hose
[C] = Water drain
Flat glass door,
reach-in
32-1/2" (825mm)
Curved glass door,
reach-in
32-1/4" (818mm)
4"- 6"
(102mm - 152mm)
4"- 6"
(102mm - 152mm)
5017128
5-1/8" (1130mm)
5024950
2" (51mm)
5001614
Height
AR-DIM-005551

Other manuals for Alto-Shaam AR-7T

Related product manuals