EasyManua.ls Logo

Anritsu MA25400A - 3743 A;3743 E Module Outline

Anritsu MA25400A
46 pages
Print Icon
To Next Page IconTo Next Page
To Next Page IconTo Next Page
To Previous Page IconTo Previous Page
To Previous Page IconTo Previous Page
Loading...
8-5 3743A/3743E Module Outline Mounting in User-Supplied Bracket
8-4 PN: 10410-00311 Rev. F VectorStar ME7838x/x4 Modules RM
8-5 3743A/3743E Module Outline
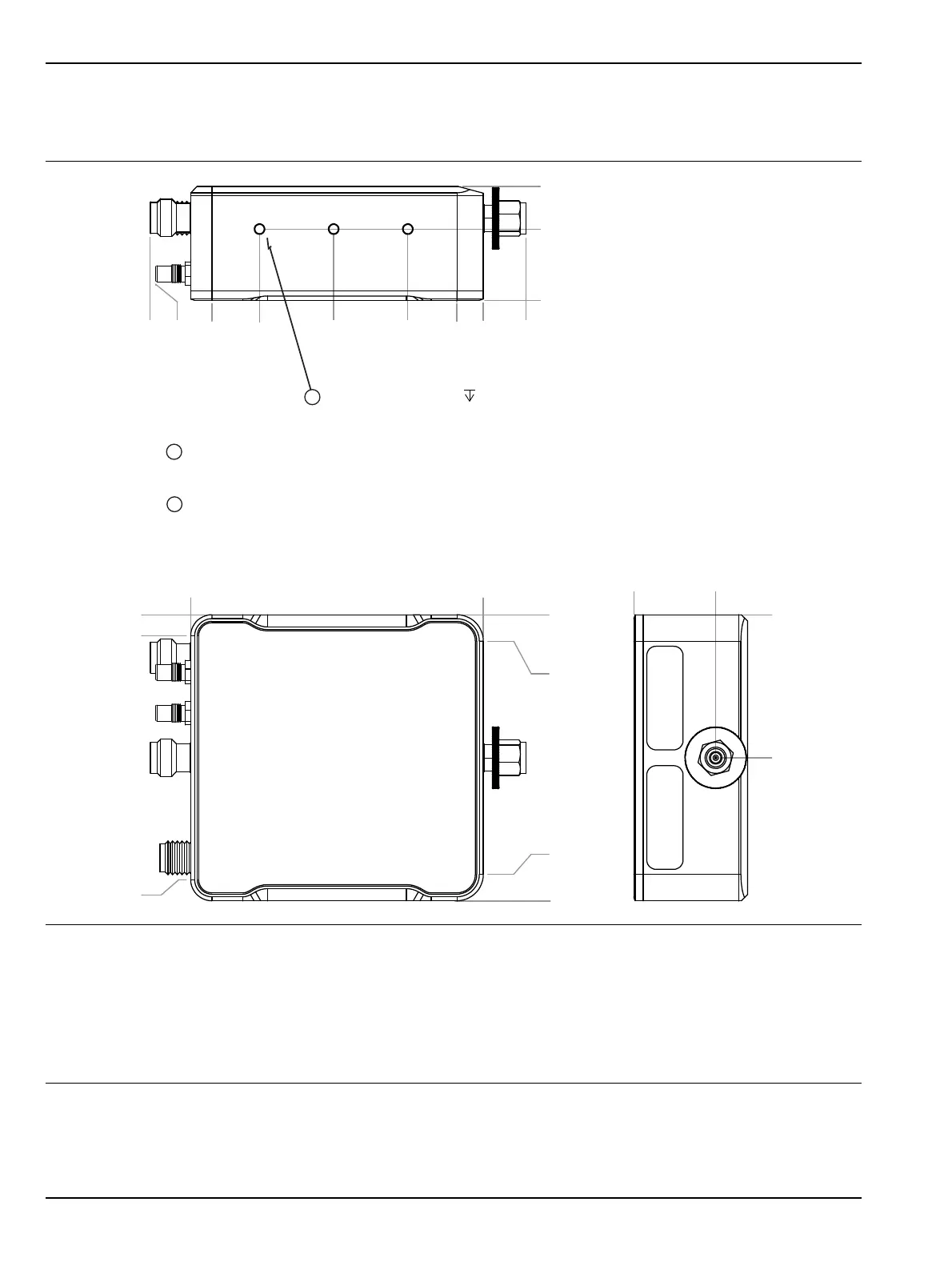
Figure 8-3 shows the outline mechanical requirements for the 3743A/3743E Millimeter-Wave Modules.
All dimensions in millimeters.
1 – For mounting, use M2 screws sufficient length that use the maximum number of module housing threads.
A thread engagement of 5 to 6 mm is recommended.
Do not bottom out fasteners.
2 – The module housing is copper. Do not over-torque screws.
3 – The threaded module mounting holes are M2 tapped x 8.6 mm deep, three each side, six total.
Figure 8-3. 3743A/3743E Millimeter-Wave Module Outline Drawing
0
5.0
49.0
54.00
0
4.0
50.0
0
55.3
0
27.0
0
15.5
0
13.47
21.51
0
8.0
5.0
14.26
28.26
42.26
51.3
61.9
62.9
Use M2 screws of sucient length for mounting that use the recommended
number of threads in the module housing. The recommended thread engagement
is 5 to 6 mm. Do not bottom out fastners.
The module housing material is copper. Do not over torque fasteners.
1
2
M2 TAPPED HOLES
8.6
3 EACH SIDE
3

Table of Contents