EasyManua.ls Logo

Aquatec orca - Installazione del Sollevatore Per Vasca da Bagno

Aquatec orca
256 pages
Print Icon
To Next Page IconTo Next Page
To Next Page IconTo Next Page
To Previous Page IconTo Previous Page
To Previous Page IconTo Previous Page
Loading...
Aquatec®ORCA/ORCAF/ORCAXL
3.3Installazionedelsollevatorepervascada
bagno
ATTENZIONE!
Rischiodiscivolamento
Ilsollevatoredavascapuòscivolareseleventosenon
hannounabuonatenuta.
Pulirelavascaeleventoseconunpannoumidoprima
diinstallareilsollevatoredavasca.
Nonmodificarelaposizionedelsollevatoredavasca
nellavascaunavoltacheessoèinstallato.
ATTENZIONE!
Rischiodilesioniedanni
Installareilsollevatoredavascasoltantoinvasche
conformiallespecifichedellaseguentetabella.
Selavascadabagnoèdotataditroppopienolaterale,
usarelealettelateralispeciali(disponibilicome
accessorio).
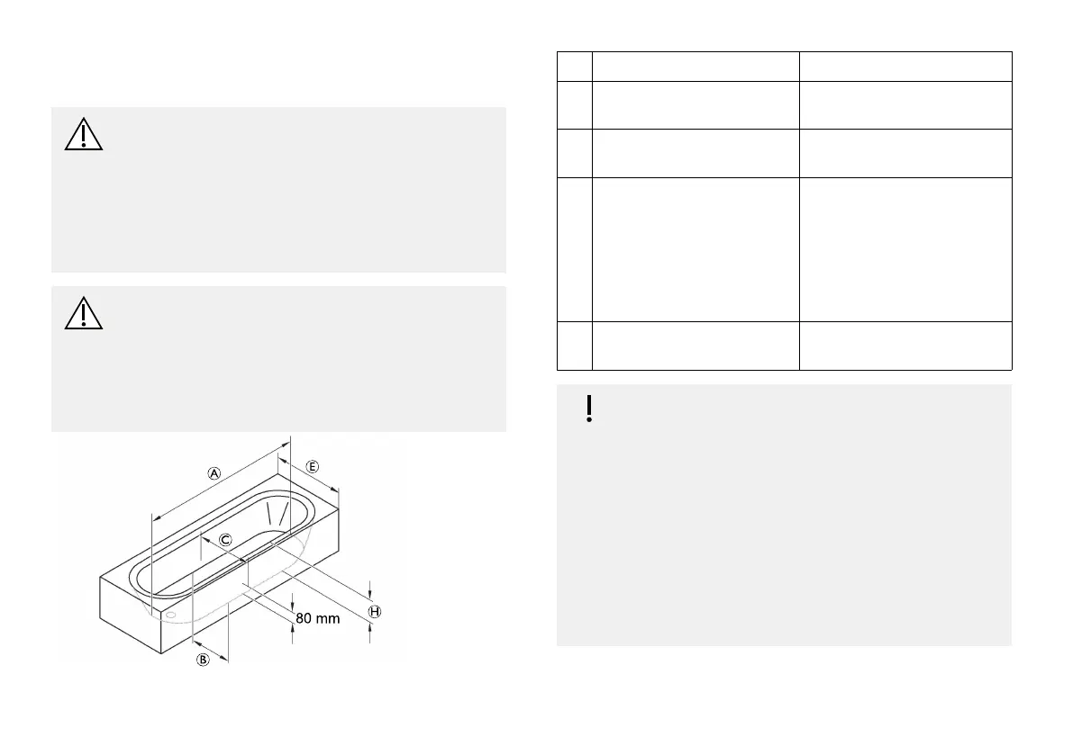
A
B
C
H
E
80 mm
A
ALunghezzavasca,fondo800mm
B
Larghezzavasca,fondo
(interno)
280-600mm
C
Larghezzavasca,aun'altezza
di80mm(interno)
430mm
E
ELarghezzavasca(esterna)580-690mm(conribalte
lateralispeciali)
700-740mm(conribalte
lateralistandard)
750-1000mm(conribalte
lateralispeciali)
H
Larghezzavasca(interno)420mm(conadattatoredi
altezza,massimo+60mm)
IMPORTANTE!
Controllarecheleventosesianomontate.
Verificarechelabatterianellapulsantierasiacarica.
Assicurarsichelabasedelmandrinosiacompletamente
inserita.
Quandosisollevanoicomponentidelsollevatore,
ricordarsidivalutarecorrettamenteilrelativopeso,
sederesezione9.1Dimensioniepeso,pagina118
.
Selavascadabagnohauncorrimano,utilizzare
ideviatoridelleribaltelaterali(disponibilicome
accessorio).
Piegareleribaltelateraliversol'esternoprimadi
sollevareloschienale.
1041574469-A

Table of Contents

Other manuals for Aquatec orca