EasyManua.ls Logo

Aquatec orca - Page 198

Aquatec orca
256 pages
Print Icon
To Next Page IconTo Next Page
To Next Page IconTo Next Page
To Previous Page IconTo Previous Page
To Previous Page IconTo Previous Page
Loading...
Aquatec®ORCA/ORCAF/ORCAXL
ADVARSEL!
Fareforpersonskadeogskademateriell
Badekarløfterenskalkunmonteresibadekarmedde
sammespesifikasjonenesomitabellennedenfor.
Hvisbadekareterutstyrtmedenoverløpsventil
siden,brukesspesialsideklaffene(tilgjengeligesom
ekstrautstyr).
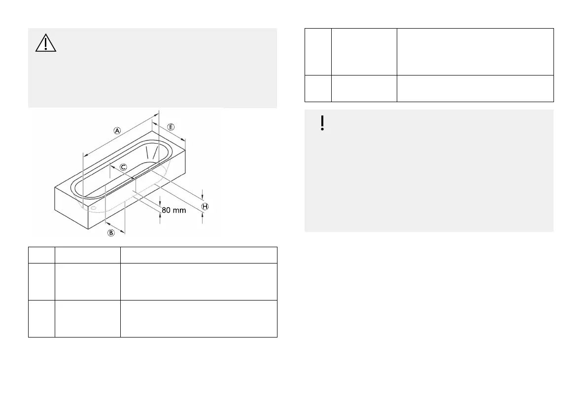
A
B
C
H
E
80 mm
A
Karlengdenede
800mm
B
Karbredde
nede
(innvendig)
280-600mm
C
Karbreddei
80mmhøyde
(innvendig)
430mm
E
Karbredde
(utvendig)
580-690mm(medspesialsideklaffer)
700-740mm(medstandardsideklaffer)
750-1000mm(medspesialsideklaffer)
H
Karhøyde
(innvendig)
420mm
(medhøydejusterermaks.+60mm)
VIKTIG!
Kontrolleratsugekoppeneermontert.
Kontrolleratbatterietidenmanuelle
betjeningsenhetenerladet.
Kontrolleratspindelfotenersattordentligplass.
Nårkomponenteneibadekarheisenløftes,du
huskeåvurderevektenkorrekt.Seavsnitt9.1
Dimensjonerogvekt,side210
.
Hvisbadekaretharrekkverk,sideklaffavlederne
benyttes(tilgjengeligesomekstrautstyr).
Slåutsideklaffeneførryggstøttenheves.
1981574469-A

Table of Contents

Other manuals for Aquatec orca