EasyManua.ls Logo

Aquatec orca - Page 33

Aquatec orca
256 pages
Print Icon
To Next Page IconTo Next Page
To Next Page IconTo Next Page
To Previous Page IconTo Previous Page
To Previous Page IconTo Previous Page
Loading...
Inbetriebnahme
WARNUNG!
Verletzungs-undBeschädigungsgefahr!
DenBadewannenlifternurinBadewannenaufbauen,
diedenAngabendernachfolgendenTabelle
entsprechen.
BeiseitlichenÜberläufengegebenenfalls
Sonder-Seitenklappenverwenden(alsZubehör
erhältlich).
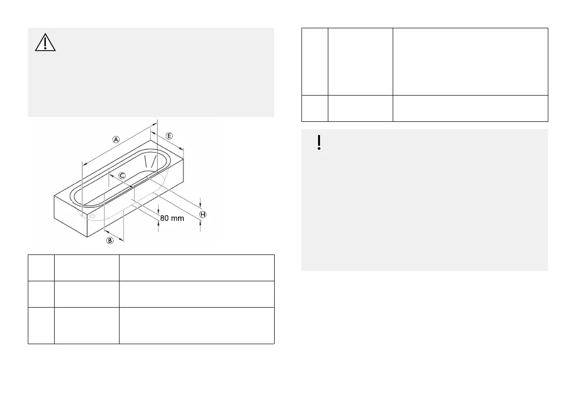
A
B
C
H
E
80 mm
A
Wannenlänge,
unten(innen)
800mm
B
Wannenbreite
unten(innen)
min.280mm
C
Wannenbreite
in80mmHöhe
(innen)
430mm
E
Wannenbreite
(außen)
580-690mm(mitSonder-Seitenklappen)
700-740mm(mit
Standard-Seitenklappen)
750-1000mm(mit
Sonder-Seitenklappen)
H
Wannenhöhe
(innen)
420mm
(mitHöhenadaptermax.+60mm)
WICHTIG!
Sicherstellen,dassdieSaugermontiertsind.
Sicherstellen,dassderAkkuimHandbedienteil
geladenist.
Sicherstellen,dassderSpindelfußganzeingefahrenist.
BeimHebenderKomponentendesBadewannenlifters
dieGewichterichtigeinschätzen,sieheAbschnitt9.1
AbmessungenundGewicht,Seite47
.
WenninderBadewanneeinHaltegriffmontiertist,
denSeitenklappenabweiserbenutzen(erhältlichals
Zubehör).
SeitenklappenvordemAufsetzenderRückenlehne
nachaußenklappen.
1574469-A33

Table of Contents

Other manuals for Aquatec orca