EasyManua.ls Logo

Armstrong 3750 - 7 Typical Chilled Water Sealed System; 8 Typical Lthw Sealed System- Max. 100°C

Armstrong 3750
28 pages
Print Icon
To Next Page IconTo Next Page
To Next Page IconTo Next Page
To Previous Page IconTo Previous Page
To Previous Page IconTo Previous Page
Loading...
installation &
operating instructions
3750 Pulpress
Pressurisation unit
5
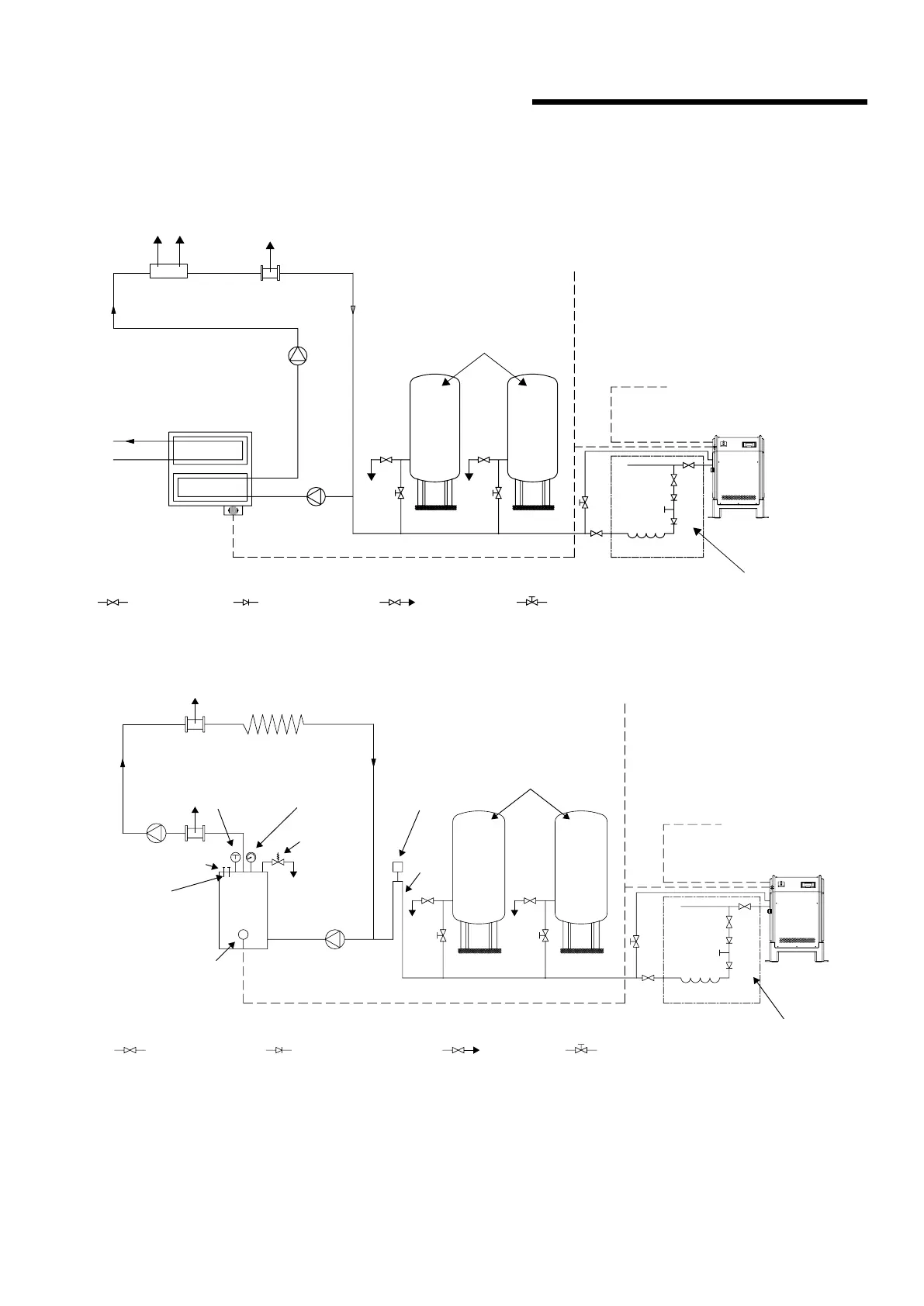
7.0 typical chilled water sealed system
expansion vessels
electrical safety interlock
isolating valve drain cock
lock shield valve
non-return valve
return
condenser
evaporator
pump
pump
chillier unit
flow
elecrical supply
3750 pulpress
signals to bms
cooling load
air eliminator
see leaflet on air eliminators
alternative
position
to cooling
tower
chillier
controls
mains
supply
test
point
system fill
connection
equipment within
this area is
supplied by others
8.0 typical lthw sealed system- max. 100°c
air eliminator
see leaflet on air eliminators
elecrical supply
expansion vessels
return
flow
heating load
temperature
gauge
pressure
gauge
alternative
position
boiler
controls
over temperature
energy cutout
boiler
thermos
tat
auto-air
vent with
on-o clock
anti-
gravity
loop
safety
valve
signals to bms
3750 pulpress
electrical safety interlock
isolating valve drain cock
lock shield valve
non-return valve
equipment within
this area is
supplied by others
mains
supply
test
point
system fill
connection
pump
pump

Table of Contents

Related product manuals