EasyManua.ls Logo

Astoria 2GR - Page 69

Astoria 2GR
106 pages
Print Icon
To Next Page IconTo Next Page
To Next Page IconTo Next Page
To Previous Page IconTo Previous Page
To Previous Page IconTo Previous Page
Loading...
TECHNICIANS' manual
71 of 108
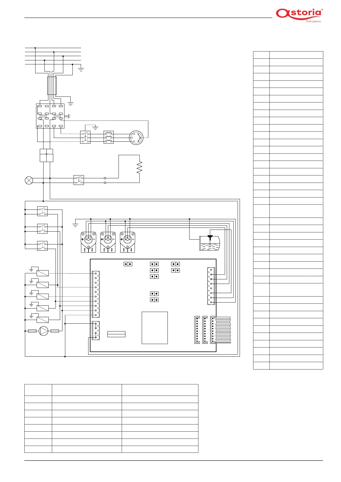
13.5.8 Wiring diagram code 18090030 - 18090031 *GICAR*
CN7
CN6
SL
NE
BL
NE
MA
MA
MA
GV
RO
BL
VE
VE
VE
VE
VE
CAL
CV3CV2CV1
RO
RO
RO
RO
RO
RO
BL
VE
BL
VE
BL
VE
CN5
CN4
CN3
JP8
CN2
F1
RO
BI
MB
JP7
JP5
JP2
JP1
JP3
JP4
JP6
CT
SCT
LA
PR
SA
CO
RE
IST
R
S
T
N
MA
BL NE GR GV
CAB
MA
BL
IM1
IM2
IM3
EVT
EV1
EVC
EV3
EV2
MP
TR
13 9 5
1
3
71115
16 12 8
4
2
610
14
FP1
FP2
OOO
(
*
) Fuses for UL versions where
a plug with a capacity greater
than 30 A is installed
JUMPER INSERTED NOT INSERTED
JP1 Not managed Not managed
JP2 Pre-infusion enabled Pre-infusion disabled
JP3 Programming enabled Programming disabled
JP4 Filling the heating unit with the pump Filling the heating unit without the pump
JP5 Tea function button enabled Tea function button disabled
JP6 Dispensing tea with the pump Dispensing tea without the pump
JP7
STOP continuous button disabled
STOP continuous button enabled
JP8 Not managed Not managed
BI White
BL Blue
CAB Power cable
CAL Heating unit
CN2 Power supply connector
CN3 PB panel connector GR1
CN4 PB panel connector GR2
CN5 PB panel connector GR3
CN6 Steam outlet connector
CN7 Low voltage connector
CO Power switch
CT Power supply connector
CV1 Flow meter GR1
CV2 Flow meter GR2
CV3 Flow meter GR3
EV1 GR1 solenoid valve
EV2 GR2 solenoid valve
EV3 GR3 solenoid valve
EVC Filling solenoid valve
EVT Tea solenoid valve
F1
Inlet fuse (10 A)
FP1(*)
Motor pump fuse UL
(OPD) fuse
FP2(*)
230 V UL (OPD) fuse
GR Grey
GV Yellow-green
IM1 Manual switch GR1
IM2 Manual switch GR2
IM3 Manual switch GR3
IST Cup warmer switch
LA Indicator light
MA Brown
MB
Pushbutton panel
membrane
MP Motor pump
NE Black
PR Pressure switch
RE Heating element
RO Red
SA Safety heating element
SCT Cup warmer
SL Heating unit level probe
TR Transformer
VE Green

Table of Contents

Other manuals for Astoria 2GR

Related product manuals