EasyManua.ls Logo

Astoria 2GR - Page 70

Astoria 2GR
106 pages
Print Icon
To Next Page IconTo Next Page
To Next Page IconTo Next Page
To Previous Page IconTo Previous Page
To Previous Page IconTo Previous Page
Loading...
TECHNICIANS' manual
72 of 108
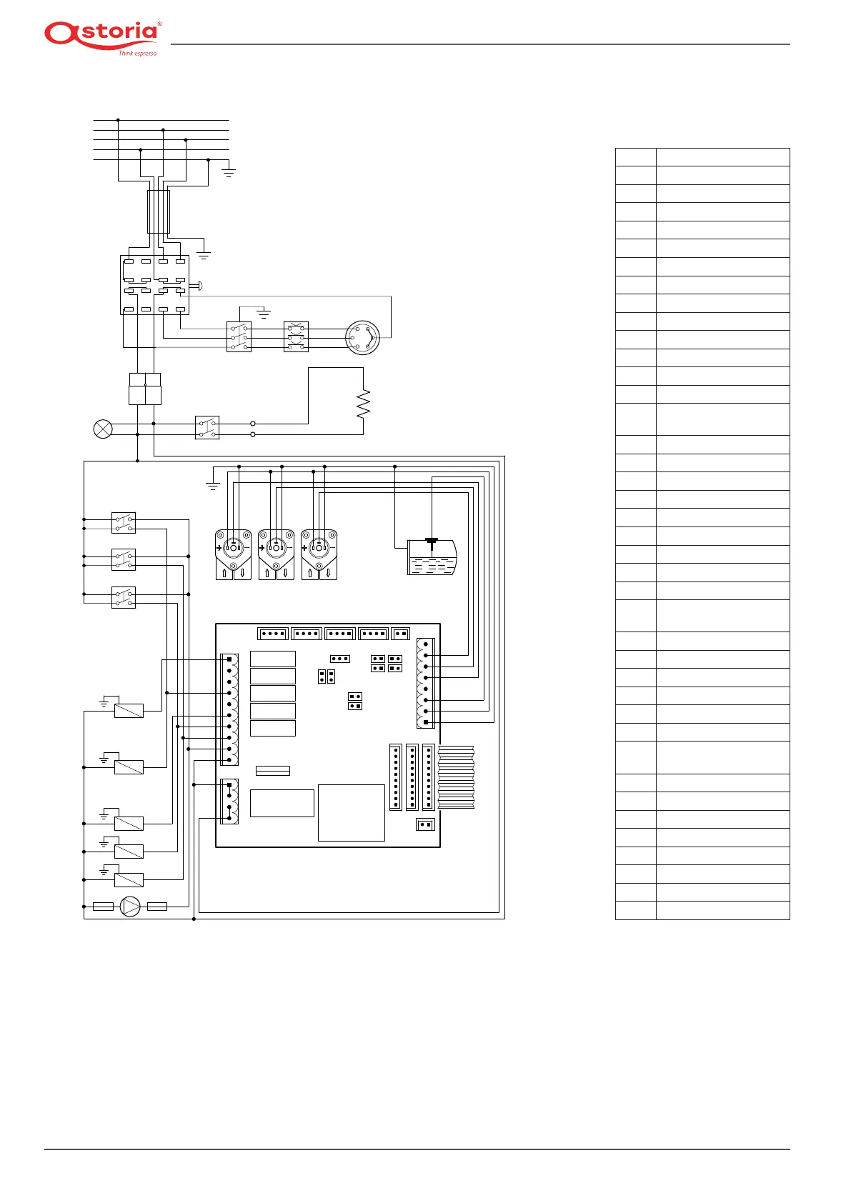
13.5.9 Wiring diagram code 18090031A *GIEMME*
BI White
BL Blue
CAL Heating unit
CO Power switch
CT Power supply connector
CV1 Flow meter GR1
CV2 Flow meter GR2
CV3 Flow meter GR3
EV1 GR1 solenoid valve
EV2 GR2 solenoid valve
EV3 GR3 solenoid valve
EVC Filling solenoid valve
EVT Tea solenoid valve
F1
Inlet fuse (10 A)
FP1(*)
Motor pump fuse UL
(OPD) fuse
FP2(*)
230 V UL (OPD) fuse
GR Grey
GV Yellow-green
IM1 Manual switch GR1
IM2 Manual switch GR2
IM3 Manual switch GR3
IST Cup warmer switch
LA Indicator light
MA Brown
MB
Pushbutton panel
membrane
MP Motor pump
NE Black
PR Pressure switch
RE Heating element
RL1 Tea solenoid valve relay
RL2 GR1 solenoid valve relay
RL3
Heating unit solenoid
valve relay
RL4 GR3 solenoid valve relay
RL5 GR2 solenoid valve relay
RL6 Pump relay
RO Red
SA Safety heating element
SL Heating unit level probe
TRF Transformer
VE Green
GV
SL
CV3CV2CV1
CT
PR
SA RE
CO
CAB
SCT
IST
LA
R
S
T
N
CAL
EVT
EV1
EVC
EV3
EV2
MP
IM1
IM2
IM3
RO
RO
RO
RO
RO
RO
BL
MA BL
MA NE GR GVBL
VE
BL
VE
BL
VE
FP1
FP2
BI
RO
RO
BL
VE
VE
VE
VE
VE
MA
MA
MA
NE
BL
NE
O
O
O
CN6
MB
CN2
CN3
CN7
CN10 CN8
JP10 JP9
JP4
JP6
JP2JP4
JP1
JP8
JP7
CN9 JP5 JP3
CN1
CN4CN5
RL1
RL6
RL5
RL4
RL3
RL2
TRF1
F1
13 9 5
1
3
71115
16 12 8
4
2
610
14
18090031A - 1
OUTLET connector
Solenoid valve
GR1 solenoid valve
Heating unit lling solenoid valve
GR3 solenoid valve
GR2 solenoid valve
CN6
Motor pump
Common
PUSHBUTTON PANEL connectors
CN3
GR1 pushbutton panel
CN4
GR2 pushbutton panel
CN5
GR3 pushbutton panel
RS485 connector
GND
RS485A
RS485B
+5 V
CN10
Neutral
POWER SUPPLY connector
-
INLET connector
18090031A - 2
TILL RS232 SERIAL connector
GND
+5 V/+VA
TX_OUT
RX_OUT
GND
+VA
1
4
3
2
7
6
5
3
2
1
8
9
10
7
6
4
1
LEVEL LED connector
CL5
R3
CN1
2
1
4
3
2
1
4
3
2
1
BUTTON connector
Button
TEA button LED
JP5
4
3
2
1
Heating unit level probe
GR1 ow meter
GR2 ow meter
GR3 ow meter
Phase
CN2
CN7
CN8
+5 V/+VA
TX_MODBUS
RX_MODBUS
GND
4
3
2
1
RS232 TELEMETRY connector
CN9

Table of Contents

Other manuals for Astoria 2GR

Related product manuals