EasyManua.ls Logo

Astoria 2GR - Page 74

Astoria 2GR
106 pages
Print Icon
To Next Page IconTo Next Page
To Next Page IconTo Next Page
To Previous Page IconTo Previous Page
To Previous Page IconTo Previous Page
Loading...
TECHNICIANS' manual
76 of 108
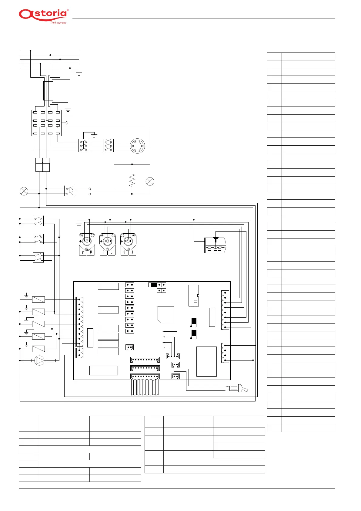
13.5.11 Wiring diagram code 18090047 - 18090048 *GIEMME*
(
*
) Fuses for UL versions where
a plug with a capacity greater
than 30 A is installed
JUMPER
INSERTED NOT INSERTED
JP1
Serial transmission enabled Serial transmission disabled
JP2 Pre-infusion enabled Pre-infusion disabled
JP3 Programming switch connection
JP4
Filling the heating unit with the pump
Filling the heating unit without the pump
JP5 Tea switch connection
JP6
Dispensing tea with the pump
Dispensing tea without the pump
JP7
Continuous function disabled Continuous function enabled
JUMPER
INSERTED NOT INSERTED
JP8 Dose count enabled Dose count disabled
JP9 Credit/Debit enabled Credit/Debit disabled
JP15
Display function buttons enabled Display function buttons disabled
JP16
6-button pushbutton panel enabled
4-button pushbutton panel enabled
JP17
Heating unit temp. check with external pressure switch (always on)
JP18
Heat.temp./press. management always ON (always inserted)
CN2
CN1
CN14
SL
NE
BL
NE
MA
MA
MA
GV
RO
BL
VE
VE
VE
VE
VE
VE
CV3CV2CV1
CT
SCT
MB
IST
LA
CN10
CN11
CN12
CN6
LST
RL9
TRF1
JP5
JP3
CN5
JP6
JP4
F2
JP7
JP15
JP18
JP2
JP9
JP17
JP1
JP8
JP16
TXD
RXD
GND
JP12
JP14
CN4
+5V
CN18
RL6
RL4
RL3
RL2
RL10
F1
RL1
IC9
IP
RO
RO
RO
RO
RO
RO
BI
RO
BL
VE
BL
VE
BL
VE
PR
SA
CO
RE
R
S
T
N
MA
BL NE GR GV
CAB
MA
BL
IM1
IM2
IM3
CAL
EVT
EV1
EVC
EV3
EV2
MP
13 9 5
1
3
71115
16 12 8
4
2
610
14
FP1
FP2
OOO
BI White
BL Blue
CAL Heating unit
CN1 Power supply connector
CN2 Low voltage connector
CN4
Serial transmission connector
CN10
PB panel connector GR1
CN11
PB panel connector GR2
CN12
PB panel connector GR3
CO Power switch
CT Power supply connector
CV1 Flow meter GR1
CV2 Flow meter GR2
CV3 Flow meter GR3
EV1 GR1 solenoid valve
EV2 GR2 solenoid valve
EV3 GR3 solenoid valve
EVC Filling solenoid valve
EVT Tea solenoid valve
F1 Inlet fuse (6.3 A)
F2
Motor pump fuse (500 mA)
FP1(*)
Motor pump fuse UL (OPD) fuse
FP2(*)
230 V UL (OPD) fuse
GR Grey
GV Yellow-green
IC2 Microprocessor
IM1 Manual switch GR1
IM2 Manual switch GR2
IM3 Manual switch GR3
IP Programm. switch
IST Cup warmer switch
LA Indicator light
MA Brown
MB
Pushbutton panel membrane
MP Motor pump
NE Black
P5 Tea dose
P6 Not managed
P7 Serial connection
P9 Steam outlet connector
P10 Low voltage connector
P11 Power supply
PR Pressure switch
RE Heating element
RO Red
SA Safety heating element
SL Heating unit level probe
TR Transformer
VE Green

Table of Contents

Other manuals for Astoria 2GR

Related product manuals