EasyManua.ls Logo

Astoria 2GR - Page 75

Astoria 2GR
106 pages
Print Icon
To Next Page IconTo Next Page
To Next Page IconTo Next Page
To Previous Page IconTo Previous Page
To Previous Page IconTo Previous Page
Loading...
TECHNICIANS' manual
77 of 108
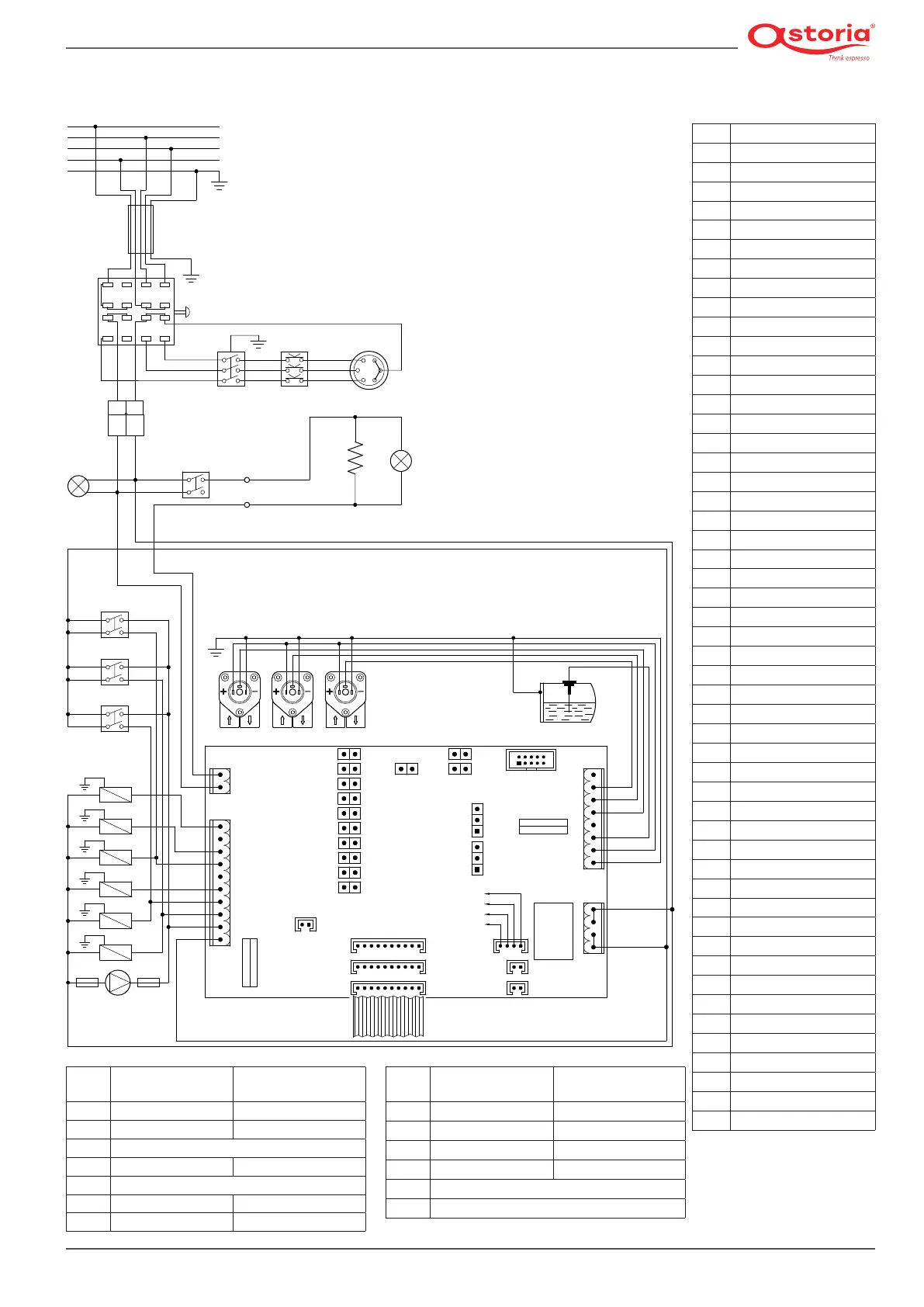
13.5.12 Wiring diagram code 18090047 - 18090048 *GICAR*
BI White
BL Blue
CAB Power cable
CAL Heating unit
CN1 Power supply connector
CN2 Low voltage connector
CN4 Serial transmission connector
CN10 PB panel connector GR1
CN11 PB panel connector GR2
CN12 PB panel connector GR3
CN14 Steam outlet connector
CN18 Connector Warmer connect.
CN19
Cup warmer heating el. connector
CO Power switch
CT Power supply connector
CV1 Flow meter GR1
CV2 Flow meter GR2
CV3 Flow meter GR3
EV1 GR1 solenoid valve
EV2 GR2 solenoid valve
EV3 GR3 solenoid valve
EVC Filling solenoid valve
EVT Tea solenoid valve
EVV Steam solenoid valve
F1 Inlet fuse (6.3 A)
F2 Motor pump fuse (500 mA)
FP1(*)
Motor pump fuse UL (OPD) fuse
FP2(*) 230 V UL (OPD) fuse
GR Grey
GV Yellow-green
IM1 GR1 manual switch
IM2 GR2 manual switch
IM3 GR3 manual switch
IST Cup warmer switch
LA Indicator light
MA Brown
MB Pushbutton panel membrane
MP Motor pump
NE Black
P5 Tea dose
P6 Not managed
P7 Serial connection
P9 Steam outlet connector
P10 Low voltage connector
P11 Power supply
PR Pressure switch
RE Heating element
RO Red
SA Safety heating element
SL Heating unit level probe
TRF1 Transformer
VE Green
CN1
CN14
SL
NE
BL
NE
MA
MA
MA
GV
RO
BL
VE
VE
VE
VE
VE
CV3CV2CV1
MB
CN10
CN11
CN12
CN19
TRF1
JP6
JP4
JP19
RO
RO
RO
RO
RO
RO
BI
RO
BL
VE
BL
VE
BL
VE
F2
JP14
JP12
CN5
CN2
F1
CN18
JP16
JP8
JP1
JP17
JP9
JP2
JP18
JP15
JP7
JP21
TXD
RXD
GND
+5V
CN4
JP3
VE
CT
SCT
IST
LA
LST
PR
SA
CO
RE
JP5
R
S
T
N
MA
BL NE GR
CAB
GV
MA
BL
IM1
IM2
IM3
CAL
EVT
EVV
EV1
EVC
EV3
EV2
MP
13 9 5
1
3
71115
16 12 8
4
2
610
14
FP1
FP2
OOO
JUMPER
INSERTED NOT INSERTED
JP1
Serial transmission enabled
Serial transmission disabled
JP2
Pre-infusion enabled Pre-infusion disabled
JP3
Programming switch connection
JP4
Filling the heating unit with the pump Filling the heating unit without the pump
JP5
Tea switch connection
JP6
Dispensing tea with the pump
Dispensing tea without the pump
JP7
Continuous function disabled
Continuous function enabled
JUMPER
INSERTED NOT INSERTED
JP8
Dose count enabled Dose count disabled
JP9
Credit/Debit enabled Credit/Debit disabled
JP15
Display function buttons enabled
Display function buttons disabled
JP16
6-button pushbutton panel enabled
4-button pushbutton panel enabled
JP17
Heating unit temp. check with external pressure switch (always on)
JP18
Heat.temp./press. management always ON (always inserted)
(
*
) Fuses for UL versions where
a plug with a capacity greater
than 30 A is installed

Table of Contents

Other manuals for Astoria 2GR

Related product manuals