EasyManua.ls Logo

Astoria 2GR - Page 76

Astoria 2GR
106 pages
Print Icon
To Next Page IconTo Next Page
To Next Page IconTo Next Page
To Previous Page IconTo Previous Page
To Previous Page IconTo Previous Page
Loading...
TECHNICIANS' manual
78 of 108
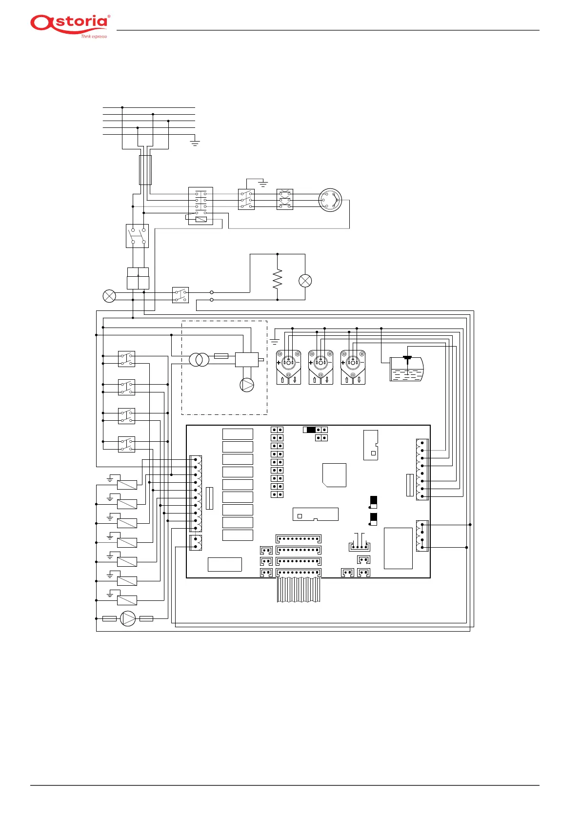
13.5.13 Wiring diagram code 18090079 - 18090080
NE
BL
NE
MA
MA
MA
GV
BI
RO
BL
VE
VE
VE
VE
VE
CN2
F2
CN5
TRF1
CN1
CN4
JP3
JP7
JP4
JP6
IC9
JP8
JP16
JP1
JP17
JP18
JP2
JP9
JP15
CN12
CN11
JP5
CN10
RL9
F1
CN14
CN3
JP10
GND
RX
+5V
TX
CN17
CN16
CN18
CN6
RL8
RL7
RL6
RL5
RL4
RL3
RL2
RL10
CN13
RL1
JP12
JP14
MB
VE
RO
RO
RO
RO
RO
RO
RO
RO
BL
VE
BL
VE
BL
VE
BL
VE
SL
CV3CV2CV1
BI
RO
RO
BI
CT
SCT
IST
LA
LST
PR
SA
RE
TLR
IG
R
S
T
N
MA
BL NE GR
CAB
MA
BL
IM1
IM2
IM3
IM4
TRPA
AP
PA
CAL
EVT
EVV
EV1
EV4
EVC
EV3
EV2
MP
FP1FP2
FPA
O
O
O
1
3
5
13
2
4
6
14
L1
L2
L3
NO
T1
T2
T3
NO
A1 A2

Table of Contents

Other manuals for Astoria 2GR

Related product manuals