EasyManua.ls Logo

Astoria 2GR - Page 83

Astoria 2GR
106 pages
Print Icon
To Next Page IconTo Next Page
To Next Page IconTo Next Page
To Previous Page IconTo Previous Page
To Previous Page IconTo Previous Page
Loading...
TECHNICIANS' manual
85 of 108
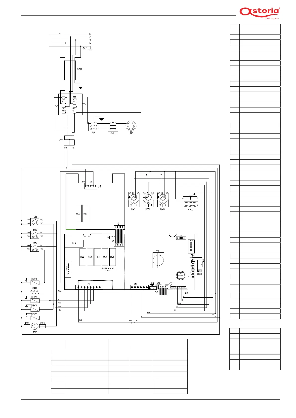
13.5.18 Wiring diagram code 18088000 - 18088001
BI White
BL Blue
CAB Power cable
CAL Heating unit
CC Power cable
CO Power switch
CP Pushbutton panel cable
CT Power supply connector
CV1 GR1 volumetric counter
CV2 GR2 volumetric counter
CV3 GR3 volumetric counter
EV1 GR1 solenoid valve
EV2 GR2 solenoid valve
EV3 GR3 solenoid valve
EVC Heating unit lling solenoid valve
F1 Motor pump fuse
F2 Cup warmer fuse
FP1(*)
Motor pump fuse UL (OPD) fuse
FP2(*)
230 V UL (OPD) fuse
GS Dark yellow
GV Yellow-green
IM1 GR1 manual switch
IM2 GR2 manual switch
IM3 GR3 manual switch
MA Brown
MP Motor pump
NE Black
NTC Warmer connect.
PR Pressure switch
RE Heating element
RL1 Motor pump relay
RL2 Heating unit solenoid valve relay
RL3 GR1 solenoid valve relay
RL4 GR2 solenoid valve relay
RL5 Cup warmer relay
RL6 Remote switch relay
RO Red
SA Safety heating element
SCT Cup warmer heating element
SL Level probe
TR1 Transformer
VE Green
VI Violet
J1 Programm. connector
J2 RTC expansion (not used)
J4 Relay expansion (3GR used)
J5 Serial connection
J6 Service outputs
J7 Heating unit NTC (not used)
J8 Cup warmer NTC (used)
J9
Automatic steam wand NTC (not
managed)
J10 Keypads
J11 Low voltage
J12 Power supply
J14 Water button (not used)
J15 Steam button (not managed)
RL1 Not managed
RL2 GR3 solenoid valve relay
RL3 GR4 solenoid valve relay
RL4 Not managed
RL5 Not managed
RL6 Not managed
J1 Connection to the control unit
J3 GR3 and GR4 outlets
Relay expansion board
(
*
) Fuses for UL versions where
a plug with
capacity greater than 30 A is installed
SW FUNCTION SWITCH ON SWITCH OFF
POSITION
PREDEFINED
SW1 Serial transmission Enabled Disabled OFF
SW2 Filling the heating unit With pump Without pump ON
SW3 Dispensing hot water With pump Without pump OFF
SW4 Pre-infusion Enabled Disabled OFF
SW5 Keypad semi-automatic button Enabled Disabled OFF
SW6 Cup warmer Enabled Disabled ON
SW7 400 V Alarm Enabled Disabled ON
SW8 Not managed OFF

Table of Contents

Other manuals for Astoria 2GR

Related product manuals