EasyManua.ls Logo

Atlas Copco GA 90

Atlas Copco GA 90
137 pages
To Next Page IconTo Next Page
To Next Page IconTo Next Page
To Previous Page IconTo Previous Page
To Previous Page IconTo Previous Page
Loading...
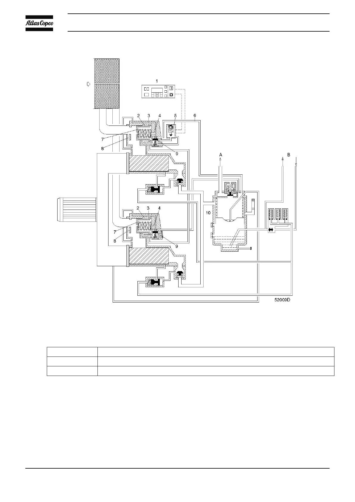
Flow diagram of GA 200 (W), GA 250 (W) and GA 315 (W) 60 Hz
Reference Designation
A To air cooler
B To/from oil cooler
Regulating system
The compressor is controlled by Elektronikon® regulator (1)
The regulator keeps the net pressure within programmable pressure limits by automatically loading and
unloading the compressor depending on the air consumption. It also protects the compressor and monitors
components subject to service.
Instruction book
20 2920 1475 06

Table of Contents

Related product manuals