EasyManua.ls Logo

Atlas Copco GA 90 - Page 66

Atlas Copco GA 90
137 pages
To Next Page IconTo Next Page
To Next Page IconTo Next Page
To Previous Page IconTo Previous Page
To Previous Page IconTo Previous Page
Loading...
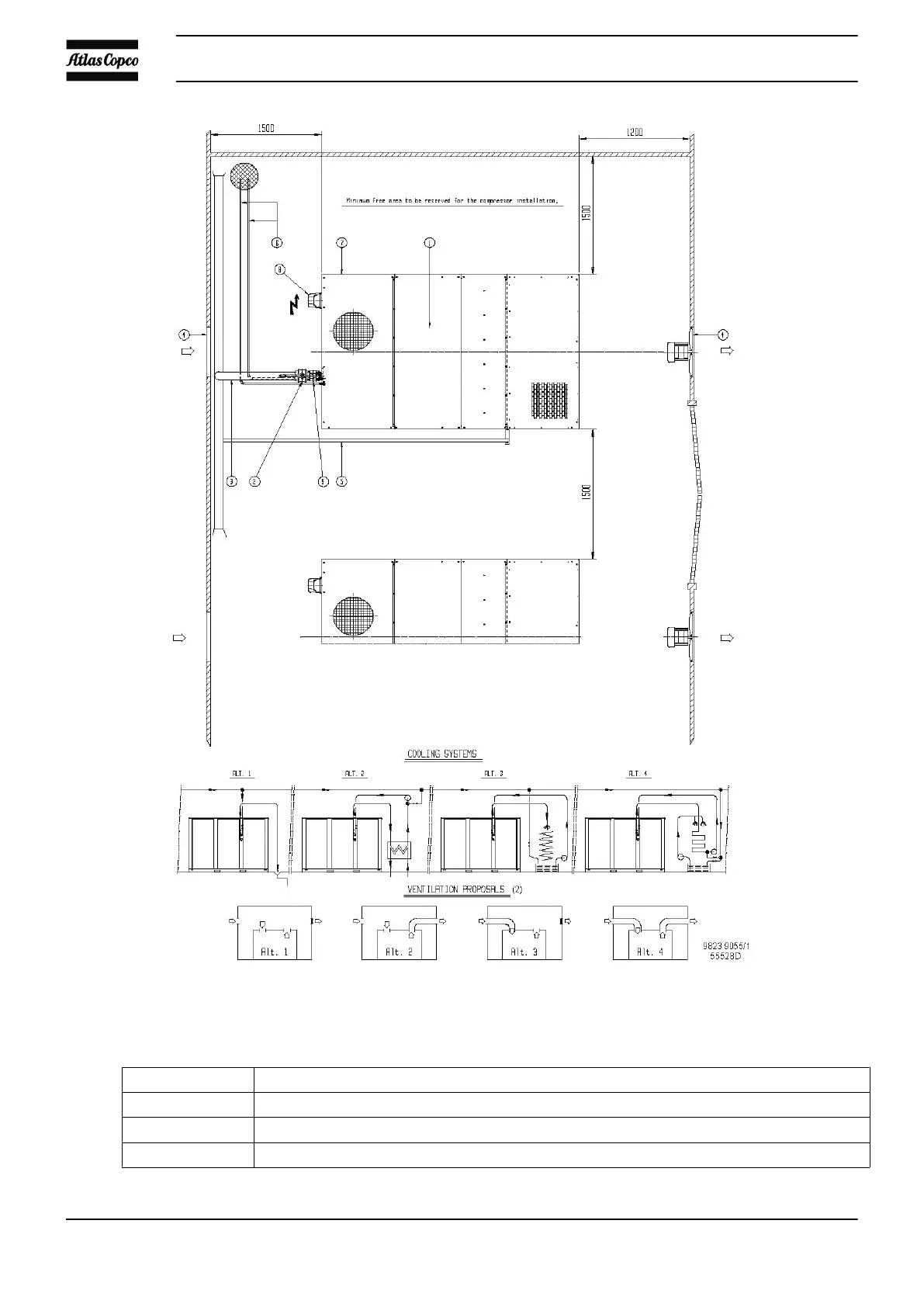
Compressor room example of GA 200, GA 250 and GA 315 60 Hz water-cooled
Text on drawing
Reference Designation
(1) Minimum free area
(2) Ventilation proposals
(3) Cooling systems
Instruction book
64 2920 1475 06

Table of Contents

Related product manuals