EasyManua.ls Logo

Automationdirect.com GS1-10P5 - Typical Connections to the GS1 Series AC Drive

Default Icon
137 pages
To Next Page IconTo Next Page
To Next Page IconTo Next Page
To Previous Page IconTo Previous Page
To Previous Page IconTo Previous Page
Loading...
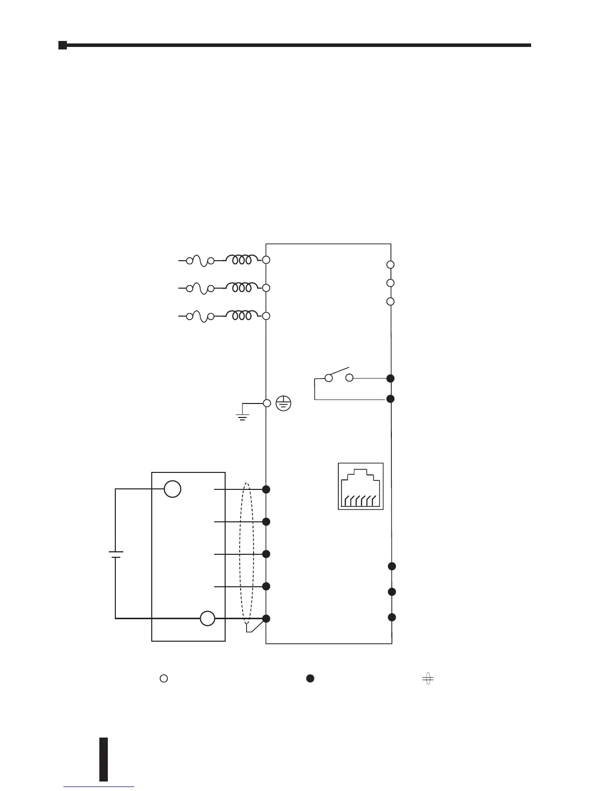
Typical Connections to the GS1 Series AC Drive
The following drawings show some typical connections between the GS1 Series
AC Drive and DirectLOGIC PLCs and modules.
DC Output Modules
Appendix B: Using GS1 AC Drives with DirectLOGIC PLCs
GS1 Series AC Drive User Manual
B–6
C
+V
+24 VDC
DC Output Module
Control circuit terminal Shielded leadsMain circuit (power) terminals
GS1-xxxx
T3
T1
T2
+10V 10mA
(max)
AI
CM
L1
L3
L2
R1O
R1
16
DI1
DI2
DI3
DI4
CM
• D0-05DD
• D0-05DD-D
• D0-06DD1
• D0-06DD1-D
• D0-10TD1
• D0-16TD1
• D2-16TD1-2
• D2-32TD1
• D4-08TD1
• D4-16TD1
• D4-32TD1
• T1K-08TD1
• T1K-16TD1

Related product manuals