EasyManua.ls Logo

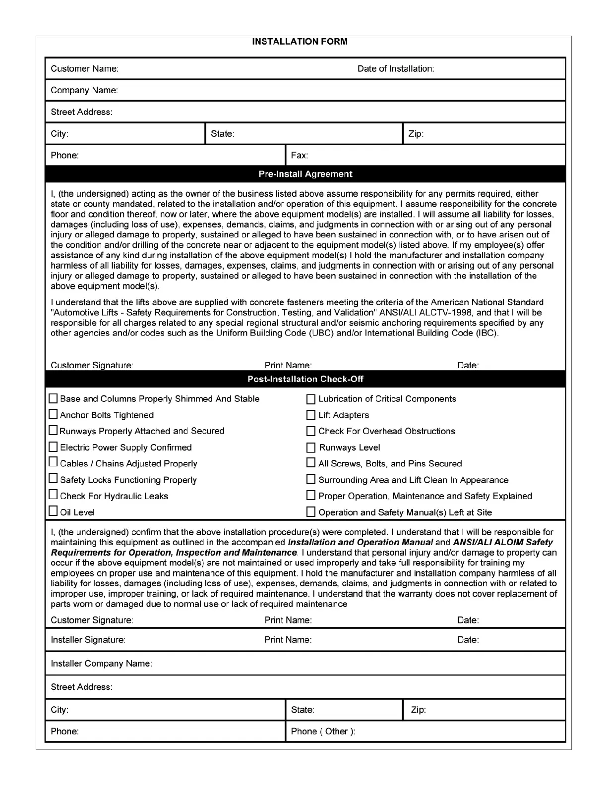
BendPak XPR-7TR - Installation Form and Agreements

BendPak XPR-7TR
48 pages
Print Icon
To Next Page IconTo Next Page
To Next Page IconTo Next Page
To Previous Page IconTo Previous Page
To Previous Page IconTo Previous Page
Loading...
47

Related product manuals