EasyManua.ls Logo

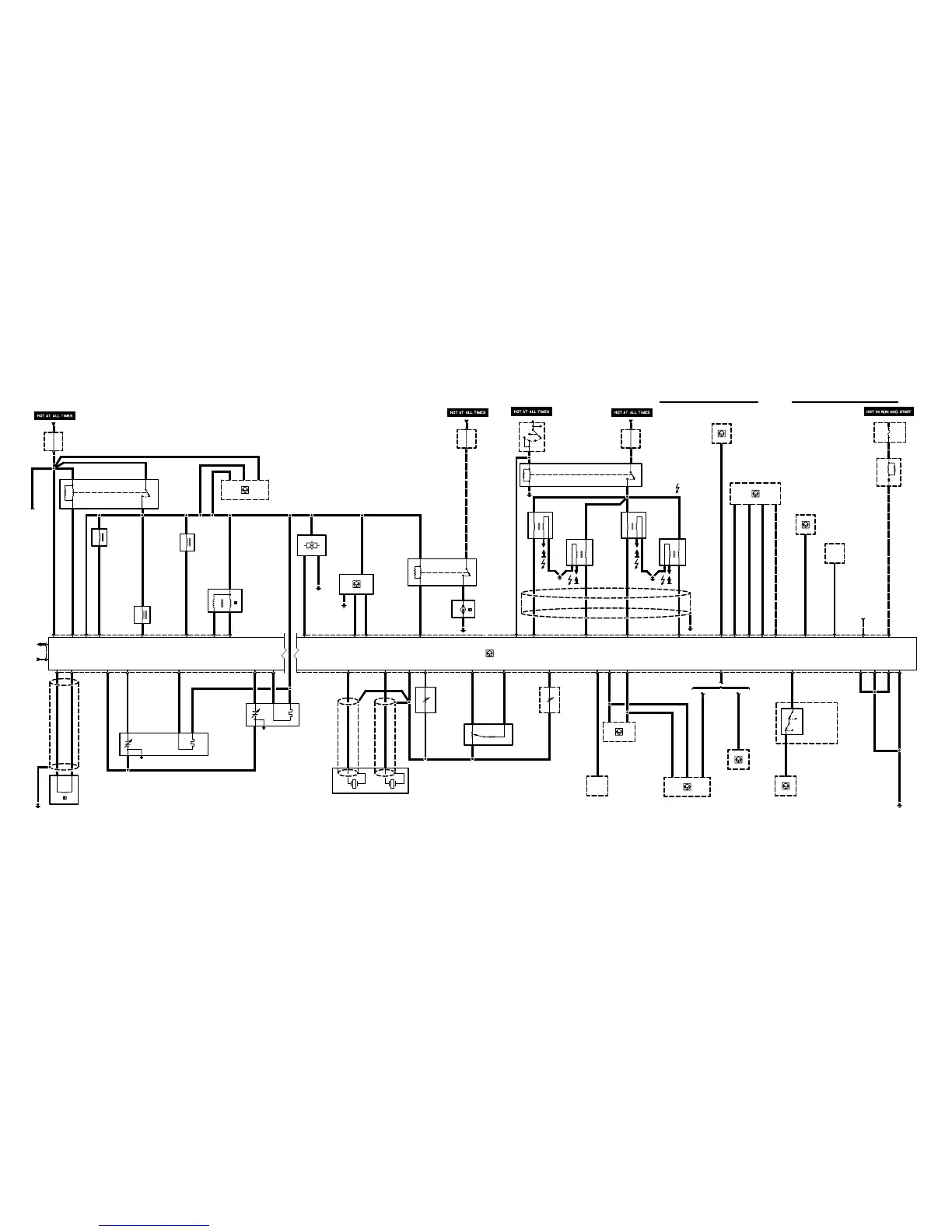
BMW E36 - ENGINE CONTROL SYSTEM (DME M5.2, 4-CYLINDER M44); POWER

BMW E36
386 pages
Print Icon
To Next Page IconTo Next Page
To Next Page IconTo Next Page
To Previous Page IconTo Previous Page
To Previous Page IconTo Previous Page
Loading...
04/99
1210.20
1998
441620 78 30 8546
1210.20-00
27
K6300
ENGINE CONTROL
MODULE RELAY
T6151
CYL. 1 IGNITION
COIL
S2
IGNITION SWITCH
1210.20-03
31
Y6101
CYL. 1 FUEL
INJECTION VALVE
Y6102
CYL. 2 FUEL
INJECTION VALVE
Y6103
CYL. 3 FUEL
INJECTION VALVE
Y6104
CYL. 4 FUEL
INJECTION VALVE
1210.20-01
26
1210.20-02
RXD
TXD
87
88
R6252
THROTTLE
POSITION SENSOR
1210.20-05
B6205
INTAKE AIR
TEMPERATURE
SENSOR
1210.20-05
B6203
CRANKSHAFT
POSITION/RPM
SENSOR
1210.20-04
B62001
OXYGEN SENSOR
(IN FRONT OF
CATALYTIC
CONVERTER)
1210.20-04
Y6120
EVAPORATIVE
EMISSION VALVE
1210.20-01
61
A8500
TRANSMISSION
CONTROL MODULE
(EGS)
1210.20-06
A6000
ENGINE CONTROL
MODULE (DME)
49 50
T6152
CYL. 2 IGNITION
COIL
1210.20-03
T6153
CYL. 3 IGNITION
COIL
1210.20-03
22 23
T6154
CYL. 4 IGNITION
COIL
1210.20-03
X6000
NS
X6000
86
28
53
X6000
54
A8500
TRANSMISSION
CONTROL MODULE
(EGS)
1210.20-00
11
1210.20-08
A115
AUTOMATIC
CLIMATE CONTROL
MODULE
1210.20-08
B8y
PRESSURE
SWITCH
1210.20-06
S36y
DOUBLE
TEMPERATURE
SWITCH
68
1210.20-05
K21
NORMAL SPEED
RELAY
57
G6430
B+ JUMP START
JUNCTION POINT
0670.2-00
58
Y6131
INTAKE AIR RES-
ONANCE CHANGE-
OVER VALVE
1210.20-01
Y6130
IDLE SPEED
CONTROL VALVE
1210.20-01
29 X60002
+
-
+
-
B6209
HALL EFFECT CAM-
SHAFT SENSOR
1210.20-04
B6217
HOT FILM AIR
MASS METER
45
1210.20-06
1721
M2
FUEL PUMP
K6301w
FUEL PUMP RELAY
1210.20-04
1210.20-04
56
K6326
UNLOADER RELAY,
TERMINAL 15
1210.20-02
1210.20-05
A836
ELECTRONIC
IMMOBILIZER
CONTROL MODULE
(EWS II)
10 83 8
A2w
INSTRUMENT
CLUSTER
42 80
F16
5A
P90
FRONT POWER
DISTRIBUTION BOX
1210.20-08
36
K19
COMPRESSOR
CONTROL RELAY
1210.20-08
19
1
B6240
KNOCK SENSOR
1210.20-05
4070 71
74
B6232
ENGINE COOLANT
TEMPERATURE
SENSOR
1210.20-05
34 55 6
1210.20-06
A202
ABS CONTROL
MODULE/HY-
DRAULIC UNIT
79
A52
SLIP CONTROL
MODULE
(ABS/ASC)
1210.20-06
32
3
G6430
B+ JUMP START
JUNCTION POINT
SPARK PLUGS
1210.20-07
1210.20-06
WITH ASC WITH ABS
4
63
G6430
B+ JUMP START
JUNCTION POINT
1210.20-05
60
DATA LINK
0670.5
1210.20-08
A115
AUTOMATIC
CLIMATE CONTROL
MODULE
69
77
B62002
OXYGEN SENSOR
(BEHIND
CATALYTIC
CONVERTER)
1210.20-04
B9508
PRESSURE
SWITCH
X6000
D100
DATA LINK
CONNECTOR
1210.20 ENGINE CONTROL SYSTEM (DME M5.2, 4CYLINDER M44)

Table of Contents

Related product manuals