EasyManua.ls Logo

BMW E36 - Cruise Control (Tempomat)

BMW E36
386 pages
Print Icon
To Next Page IconTo Next Page
To Next Page IconTo Next Page
To Previous Page IconTo Previous Page
To Previous Page IconTo Previous Page
Loading...
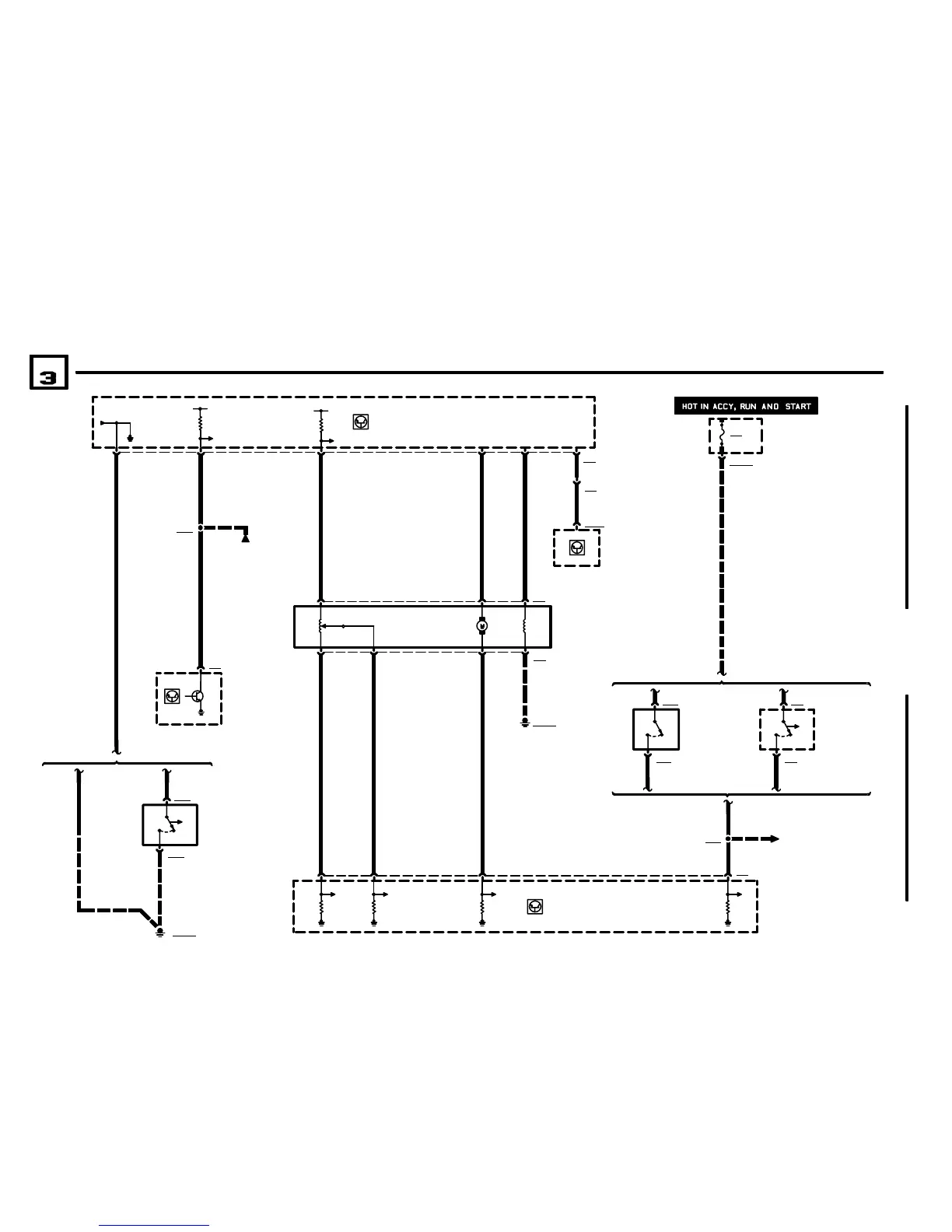
GROUND
DISTRIBUTION
0670.4
BMW
04/99
6571.0Ć
1998
01
CRUISE CONTROL (TEMPOMAT)
10
2
X17
INSTRUMENT
CLUSTER
6211.0
BRAKE LIGHTS
6325.0
.35 SW/WS
R
TACH
31
5V (15)
211
14
X188
.5 SW/WS
2
A2w
INSTRUMENT
CLUSTER
2) VEHICLE
SPEED
OUTPUT
.5 SW/BL
7
5
4
.5 GE/WS
1
6
3 X70
X70
2
.5 SW/GN .5 GE/VI
31
M25
CRUISE CONTROL
ACTUATOR
(TEMPOMAT)
A8
CRUISE CONTROL
MODULE
(TEMPOMAT)
15 X22
.5 RT/BR
.35 BL/RT
A8
CRUISE CONTROL
MODULE
(TEMPOMAT)
1.5 BL/RT
X181
X1162
1X116
P90
FRONT POWER
DISTRIBUTION BOX
32
S29
BRAKE LIGHT
SWITCH
1) NORMAL STATE
2) BRAKE PEDAL
DEPRESSED
X782
1 X78
S30
BRAKE LIGHT
SWITCH
1) BRAKE PEDAL
RELEASED
2) BRAKE PEDAL
DEPRESSED
X10018
FUSE DETAILS
0670.3
WITHOUT CCM WITH CCM
23
12
7
57 X8500
.35 GE/BR
A8500
TRANSMISSION
CONTROL MODULE
(EGS)
GROUND
DISTRIBUTION
0670.4
14 X69
.35 GE/BR
.5 SW/BR
F46
15A
31
12
31
31 31 31
12
X10010
X10010
X1211
2 X121
S32
CLUTCH SWITCH
1) NORMAL STATE
2) CLUTCH PEDAL
DEPRESSED
WITH EGS WITHOUT EGS
12
.35 BL/BR
X22
.35 BR/OR
GROUND
DISTRIBUTION
0670.4

Table of Contents

Related product manuals