EasyManua.ls Logo

BMW E36 - CRUISE CONTROL (TEMPOMAT)

BMW E36
386 pages
Print Icon
To Next Page IconTo Next Page
To Next Page IconTo Next Page
To Previous Page IconTo Previous Page
To Previous Page IconTo Previous Page
Loading...
BMW
04/99
6571.0Ć
1998
00
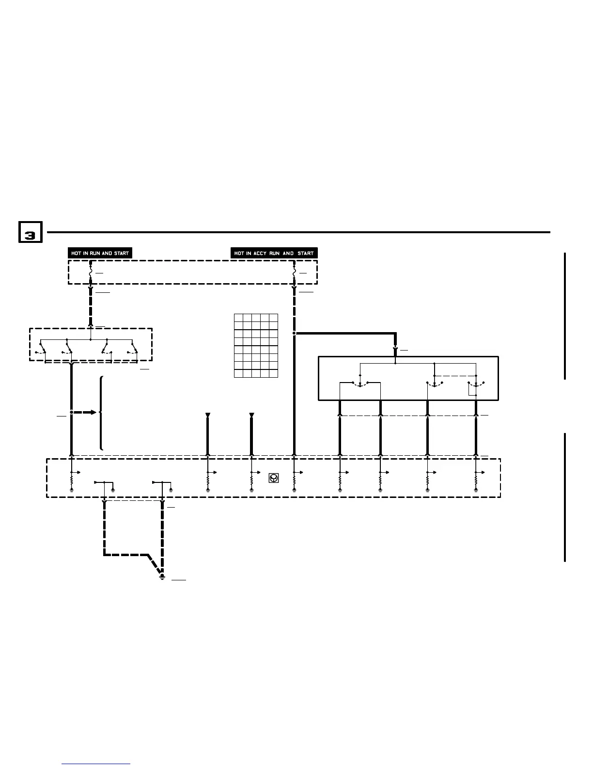
6571.0 CRUISE CONTROL (TEMPOMAT)
FUSE DETAILS
0670.3
X10017
16
5 X511
P90
FRONT POWER
DISTRIBUTION BOX
ELECTRONIC
TRANSMISSION
CONTROL
(EGS A4S 270R)
2460.2
.5 BR/SW
X1001832
.5 VI/GE
10
10 10 10
X5117
L1 L2 L3 L4
1P011
1R000
1N110
0D001
03101
12101
01100
5
S3
AUTOMATIC
TRANSMISSION
RANGE SWITCH
0) OFF (LOW)
1) ON (HIGH)
26
X191
.35 BR/SW
ELECTRONIC
TRANSMISSION
CONTROL
(EGS A5S 310Z)
2460.4
1 X72
S28
CRUISE CONTROL
SWITCH
0) NORMAL
1) OFF
2) RESUME
3) DECELERATE/
SET
4) ACCELERATE/
SET
24
3
18
2
9
4 X72
20
X22
A8
CRUISE CONTROL
MODULE
(TEMPOMAT)
.35 BL/WS .35 BL/GN .35 BL/GR
.5 VI/GE
.35 BL/SW
FUSE DETAILS
0670.3
468
5
817
DATA LINK
0670.5
INSTRUMENT
CLUSTER
6211.0
.35 WS/VI .35 SW
TD
4
3
0
L1 L2 L3 L4
1
2
0
1
2
0
F46
15A
31 31 31 31 31 31 31 31
F28
5A
GROUND
DISTRIBUTION
0670.4
13
GROUND
DISTRIBUTION
0670.4
X22
21
X10010
EGS A4S 270R
EGS A5S 310Z

Table of Contents

Related product manuals