EasyManua.ls Logo

BMW E36 - Page 149

BMW E36
386 pages
Print Icon
To Next Page IconTo Next Page
To Next Page IconTo Next Page
To Previous Page IconTo Previous Page
To Previous Page IconTo Previous Page
Loading...
04/99
3450.1b
1998
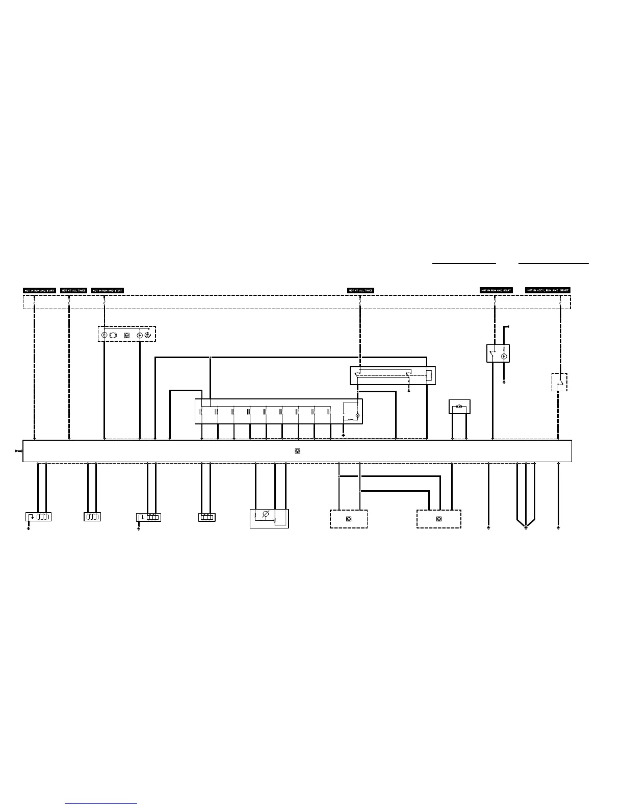
F21
5A
3450.1-06
3450.1-05
Y1
ABS HYDRAULIC
UNIT
P90
FRONT POWER
DISTRIBUTION BOX
K125
ABS PUMP MOTOR
RELAY, TIMED
A52
SLIP CONTROL
MODULE
(ABS/ASC)
17 X1170
41 X11395
TXD
36
ABS
F10
30A
F27
5A
A2w
INSTRUMENT
CLUSTER
42
2831
1
S30
BRAKE LIGHT
SWITCH
F46
15A
19
3450.1-05
3450.1-05
32 11
B2
LEFT FRONT SPEED
SENSOR ABS
3450.1-08
3413
B4
LEFT REAR SPEED
SENSOR ABS
3450.1-08
3312
B1
RIGHT FRONT SPEED
SENSOR ABS
3450.1-08
3514
B3
RIGHT REAR SPEED
SENSOR ABS
3450.1-08
7 6
A6000
ENGINE CONTROL
MODULE (DME)
3450.1-07
A8500
TRANSMISSION
CONTROL MODULE
(EGS)
3450.1-07
2 23
24
25 26 22
27 29
5
F21
5A
S6
ASC SWITCH
3450.1-07
39
LIGHT SWITCH
DETAILS
6300.0
404
58g
X1170
318is
15
2
F38
30A
4
37
X1170 X11395 X11395
22 3 X1170
M93
AUXILIARY
THROTTLE
POSITION MOTOR
(ADS)
1 3 X11395X1170
9308
R6255
ACCELERATOR
PEDAL POSITION
SENSOR (ASC)
3450.1-05
X1170
3450.1-07
SLIP CONTROL (ABS/ASC)

Table of Contents

Related product manuals