EasyManua.ls Logo

BMW Z3 E37 1998 - Page 135

BMW Z3 E37 1998
347 pages
Print Icon
To Next Page IconTo Next Page
To Next Page IconTo Next Page
To Previous Page IconTo Previous Page
To Previous Page IconTo Previous Page
Loading...
paragon.myvnc.com
04/99
3450.0
1998
Ć01
9X11
23
.5 BR/GR
7
X31
2.5 RT/BL/GE
3
11
12
10 9 8
1
2
.5 RT/BR/GE
.5 BR/BL
.5 BR/WS
.5 BR/GN/GE .5 BR/RT .5 BR/GN .5 BR/WS/GE
27
24 39 40
25 22 2X11
17 26
X170
4 X31
X170
2.5 RT/GN/GE
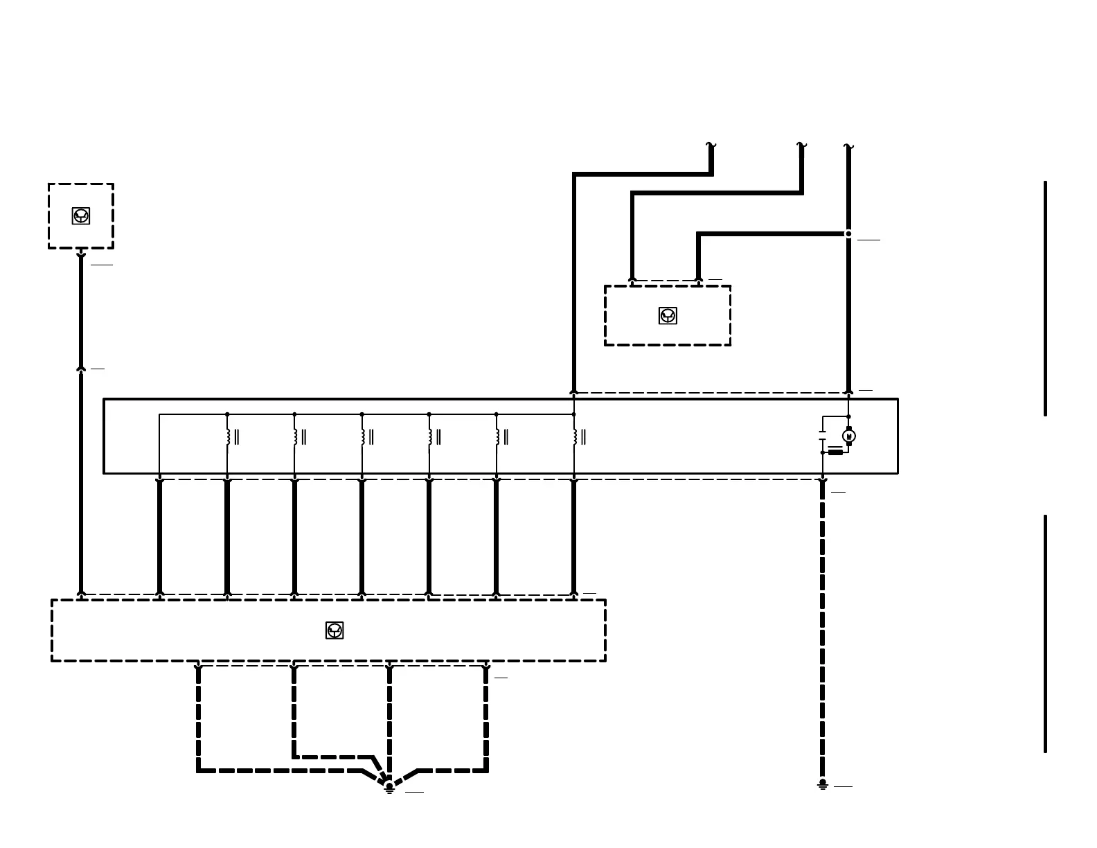
A7
SLIP CONTROL
MODULE (ABS)
Y1
ABS HYDRAULIC UNIT
6) INLET VALVE
REAR AXLE
7) OUTLET VALVE
REAR AXLE
8) RIGHT FRONT
OUTLET VALVE
9) LEFT FRONT
OUTLET VALVE
10) RIGHT FRONT
INLET VALVE
11) LEFT FRONT
INLET VALVE
13) OVER VOLTAGE
PROTECTION
14) PUMP MOTOR
A7
SLIP CONTROL
MODULE (ABS)
GROUND
DISTRIBUTION
0670.4
GROUND
DISTRIBUTION
0670.4
GROUND
DISTRIBUTION
0670.4
6789 10 11
14
13
41
X11
GROUND
DISTRIBUTION
0670.4
X1055
.75 RT/GN/GE 2.5 RT/GN/GE
5
GROUND
DISTRIBUTION
0670.4
.75 BR/RT
32
2 X20
15 X6000
.5 BR/RT
A6000
ENGINE CONTROL
MODULE (DME)

Related product manuals