EasyManua.ls Logo

BMW Z3 E37 1998 - Page 147

BMW Z3 E37 1998
347 pages
Print Icon
To Next Page IconTo Next Page
To Next Page IconTo Next Page
To Previous Page IconTo Previous Page
To Previous Page IconTo Previous Page
Loading...
paragon.myvnc.com
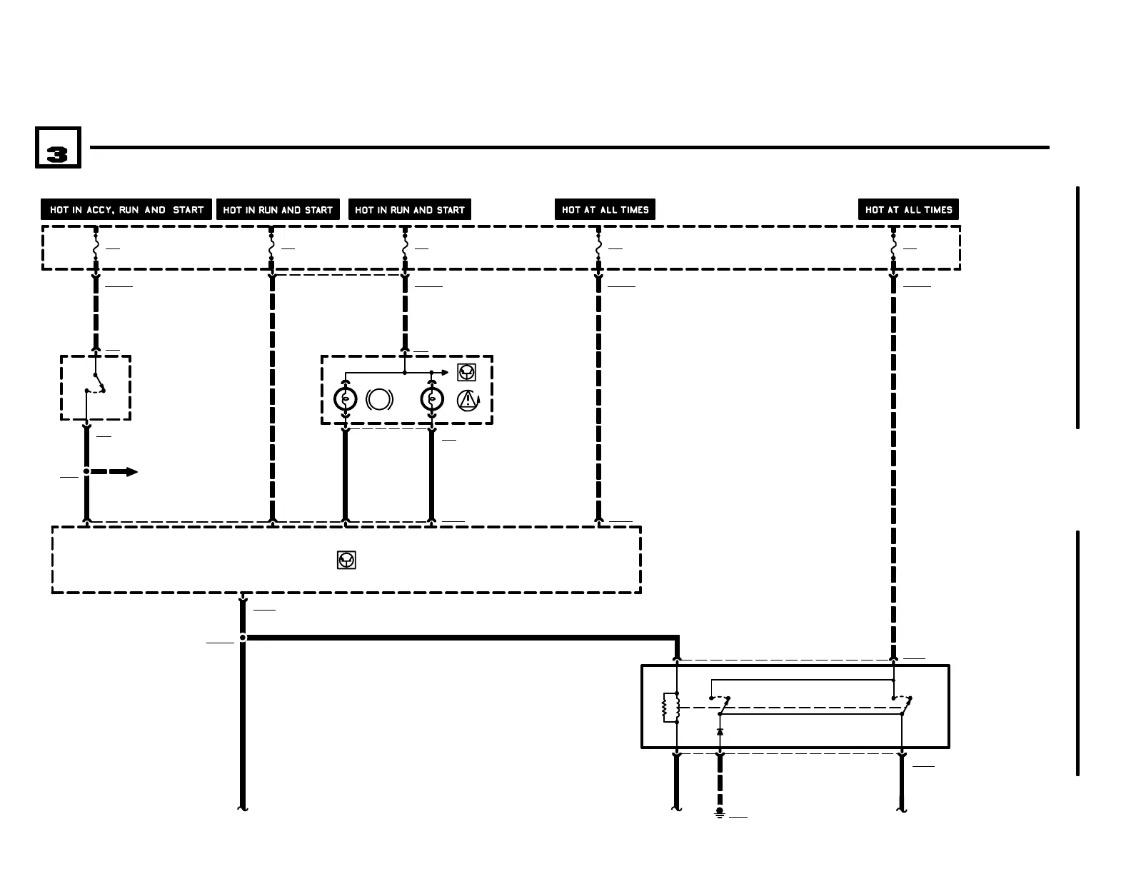
SLIP CONTROL (ABS/ASC)
4CYLINDER
BM
BMW
BMWBMW
Z3
X1652
X1161
04/99
3450.1Ć
1998
00
K75
ABS PUMP MOTOR
RELAY
ABS
32 X10018
1 X78
.5 GR/SW/GE
X181
1.5 BL/RT
2 16 X1001814 X10017 20 X10015
21
2 X78
6 9
2
4 8 X1161
23 X16
17
BRAKE LIGHTS
6325.0
4 40 4
.75 BL/RT
A52
SLIP CONTROL
MODULE
(ABS/ASC)
S30
BRAKE LIGHT
SWITCH
1) BRAKE PEDAL
RELEASED
2) BRAKE PEDAL
DEPRESSED
.5 BR/SW 2.5 RT/GN/GE
A2w
INSTRUMENT
CLUSTER
P90
FRONT POWER
DISTRIBUTION BOX
FUSE DETAILS
0670.3
FUSE DETAILS
0670.3
GROUND
DISTRIBUTION
0670.4
.5 BL/BR
12 X17
FUSE DETAILS
0670.3
FUSE DETAILS
0670.3
42
FUSE DETAILS
0670.3
.5 RT/BL
X170
21
F46
15A
F21
5A
F38
30A
F10
30A
F27
5A
31 X1170
X19003
.35 RT/BL
.35 RT/BL
X1170

Related product manuals