EasyManua.ls Logo

Bosch LSN - RF expansion module FK 100 LSN product description

Bosch LSN
32 pages
Print Icon
To Next Page IconTo Next Page
To Next Page IconTo Next Page
To Previous Page IconTo Previous Page
To Previous Page IconTo Previous Page
Loading...
PI - 32.15aProduct Documentation of the LSN Radio Fire Detection System
Seite 4 von 32
601-F.01U.002.708
A3.en / 28.12.2004
ST-FIR/ PRM1 / deh
1.2. RF expansion module FK 100 LSN product description
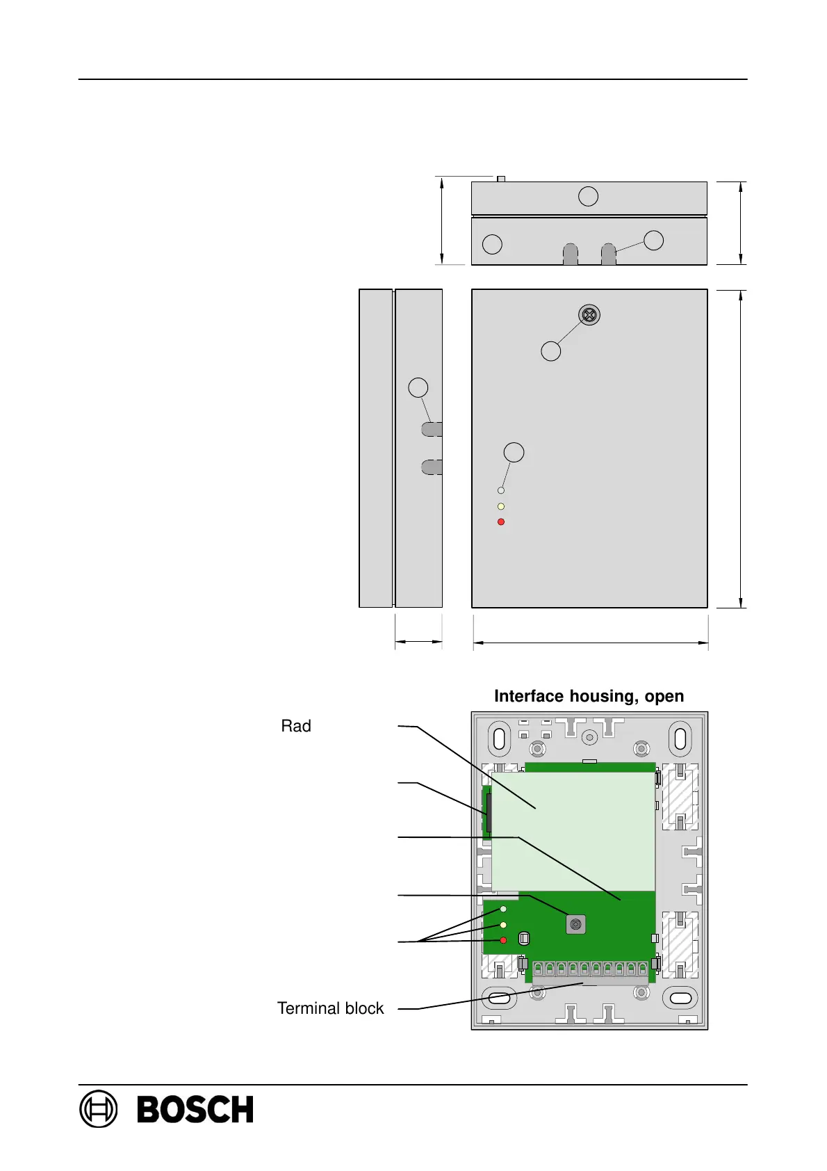
FK 100 LSN device design
ÏÏ
ÏÏ
ÏÏ
ÏÏ
ÏÏ
ÏÏ
ÏÏ
ÏÏ
ÏÏÏ
ÏÏÏ
ÏÏÏ
ÏÏÏ
ÏÏÏ
ÏÏÏ
ÏÏÏ
ÏÏÏ
Interface housing, open
Terminal block
Radio module
Interface circuit
board
Tamper contact
Operating status display
LEDs
1 Cover with exposed LEDs
2 Lower part of housing
3 Prepared inputs/outputs for
surface cable feed
4 Locking screw
5 Light conductor for
operating status display
LEDs
Reed switch
Operation
Fault
Alarm
100
35.7135
20
4
1
2
3
5
3
37.4

Related product manuals