EasyManua.ls Logo

Bosch RF Series - Vertical (VT) Cabinet Options Dimensions

Bosch RF Series
88 pages
Print Icon
To Next Page IconTo Next Page
To Next Page IconTo Next Page
To Previous Page IconTo Previous Page
To Previous Page IconTo Previous Page
Loading...
Dimensional Drawings
22.2 Vertical (VT) Cabinet Options Dimensions
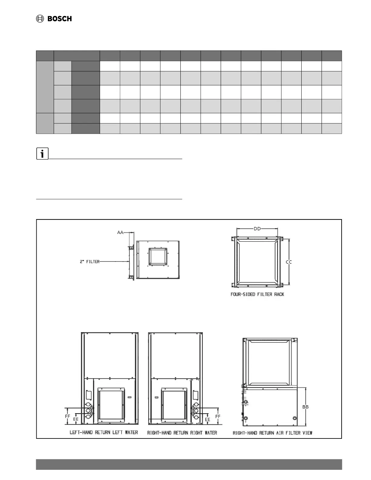
Table 24 Vertical Cabinet Options Dimensions
Model RF007 RF009 RF012 RF015 RF018 RF024 RF030 RF036 RF042 RF048 RF060 RF070
Filter Racks Options
AA
2" Filter Rack
2.25 2.25” 2.25” 2.25” 2.25” 2.25” 2.25” 2.25 2.25” 2.25” 2.25” 2.25”
BB
Filter Rack
Height
16” 16” 16” 16 17” 17” 13” 14” 14” 14” 12.75 13.75”
CC
R/A Duct Flange
Height
15” 15” 15” 15 20” 20” 24.75” 28” 28 28” 34” 34”
DD
R/A Duct Flange
Width
16.75 16.75” 16.75” 16.75” 16” 16” 16.25” 22” 22” 22” 27.25 27.25”
HRP
EE
HRP Inlet
N/A N/A N/A N/A N/A 4.75” 4.5” 4.5” 4.5 4.5 4.25” 4.25”
FF
HRP Outlet
N/A N/A N/A N/A N/A 7.25” 7” 7” 7” 7” 6.75” 6.75”
• Specifications subject to change without notice.
• All dimensions within ±0.125".
• Filter rac
k dimensions does not include 1" duct flange.
• 2" filter racks can accept either a 1" or 2" filter.
• HRP Connections are 1/2" FNPT.
Fig. 32 Vertical Cabinet Options Drawing
| 73
RF Series Heat Pumps — 8733980022 (2024/12)

Table of Contents

Related product manuals