EasyManua.ls Logo

Bosch RF Series - Page 79

Bosch RF Series
88 pages
Print Icon
To Next Page IconTo Next Page
To Next Page IconTo Next Page
To Previous Page IconTo Previous Page
To Previous Page IconTo Previous Page
Loading...
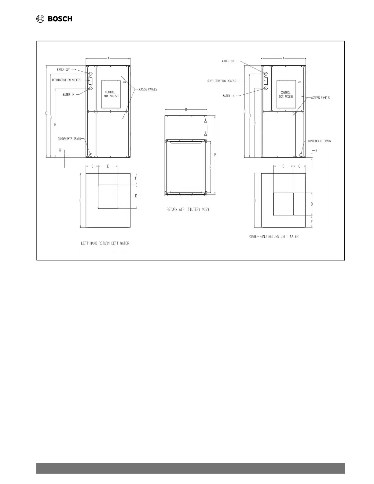
Dimensional Drawings
Fig. 34 Counter Flow Unit Dimensions Drawings
| 79
RF Series Heat Pumps 8733980022 (2024/12)

Table of Contents

Related product manuals