EasyManua.ls Logo

Bridgeport Interact 2 - Page 35

Default Icon
95 pages
Print Icon
To Next Page IconTo Next Page
To Next Page IconTo Next Page
To Previous Page IconTo Previous Page
To Previous Page IconTo Previous Page
Loading...
I
1700371
1577592
2L52rtL
2t597t7
1572493
l-
-t
lt
l1
Ir
'l-J
'lll
2t52tO7
1700369
t572788 2152078
2152077
t700369
2L52070
2152074
2t52r72
1705086
2L5986t
2t52LO8
--'ll-
-
-
il
I
il
JI
I 5405
12
1700374
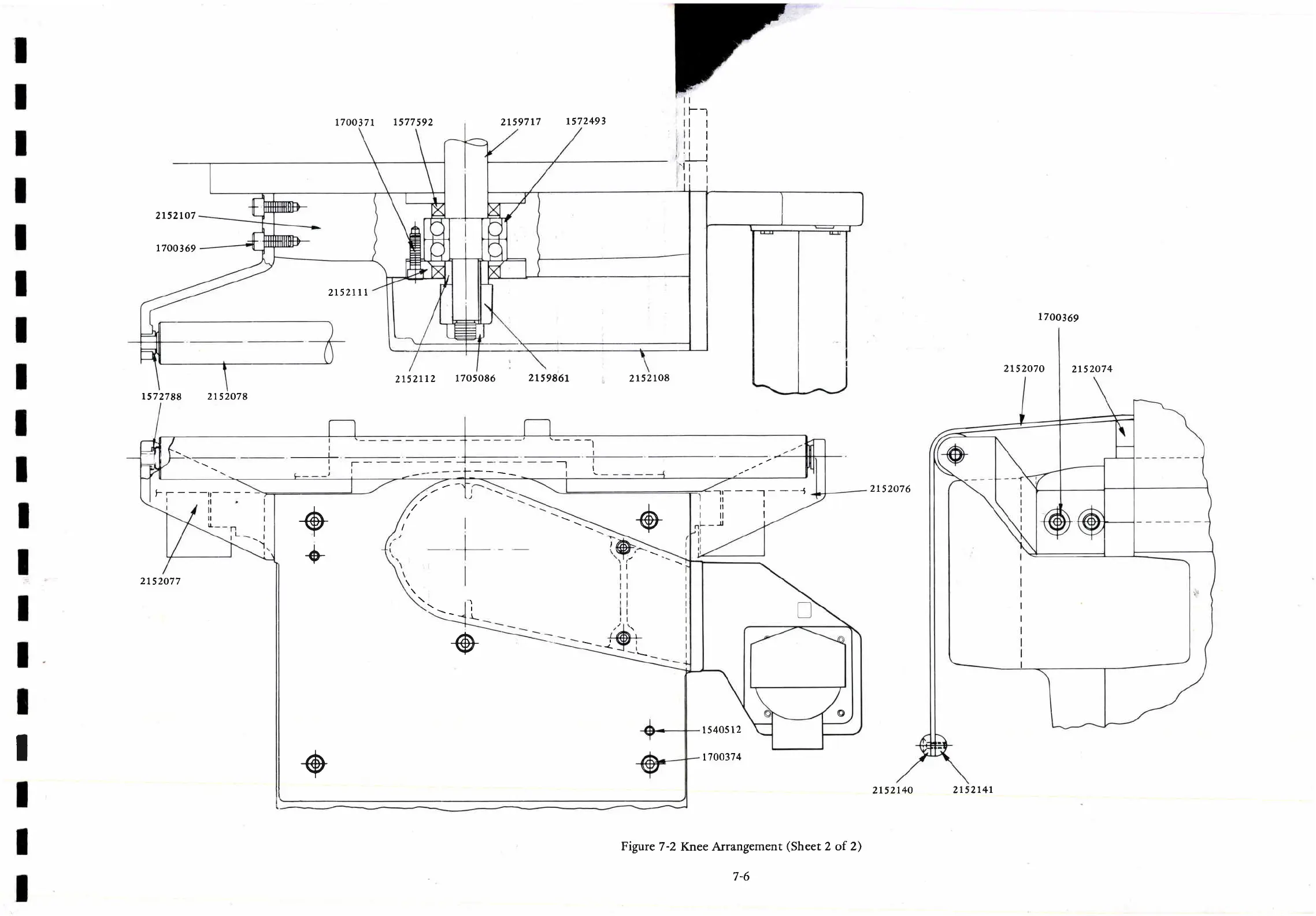
Figure
7-2 Knee Arrangement
(Sheet
2 of 2)
7-6
-
I
I
-
--1
2152076
-'1
I
----l
I
rl
lr
lt
I
f----rr-
-l
)
@
+
@
+
4-
+
l
I
\
I
I
2152140
2t5214t

Table of Contents

Related product manuals