EasyManua.ls Logo

Broaster 2400 - Smart Touch Control Panel Features; Power Switch and Hi-Limit Control; Touch Control Screen Interface

Broaster 2400
30 pages
Print Icon
To Next Page IconTo Next Page
To Next Page IconTo Next Page
To Previous Page IconTo Previous Page
To Previous Page IconTo Previous Page
Loading...
3–5
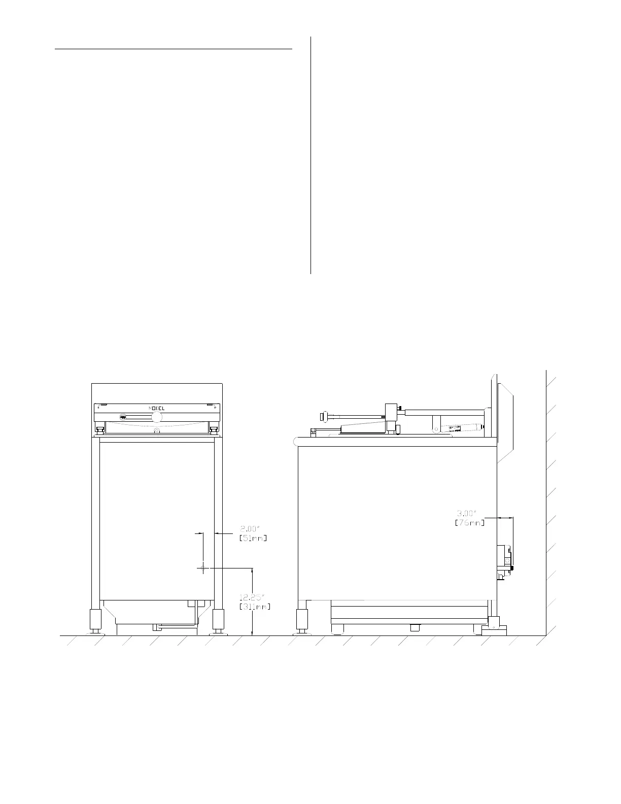
GAS PIPING
The unit is equipped with a 1/2” pipe for
gas connection. Shipped with each
unit, for 3/4” gas connection, is one
each of the following:
P/N 00743 - Bushing Hex Reducer
3/4 to 1/2
P/N 01319 - Coupling 3/4 Pipe
3/4 NPT minimum supply piping recom-
mended.
Use only black steel pipe and malleable
fittings for gas connections.
Pressure loss in the piping must not
exceed 0.3” W.C.
Be sure gas supply piping is of the
proper size for the BTU input. Take into
consideration all other gas appliances
which must operate from the same gas
supply. Be sure piping will not interfere
with drain pails or valves.
A compound resistant to the action of
liquified petroleum gas should be used
on the threads of gas supply piping
joints. Check all connections and pipes
with a soap and water solution. Bubbles
indicate a gas leak. DO NOT use an
open flame to check for gas leaks.
Unit Dimensions For Gas Hook-Up:
broaster.com Manual #15458 5/02 Rev 2/14

Other manuals for Broaster 2400

Related product manuals