EasyManua.ls Logo

Broaster 2400 - Filter Tab Interface

Broaster 2400
30 pages
Print Icon
To Next Page IconTo Next Page
To Next Page IconTo Next Page
To Previous Page IconTo Previous Page
To Previous Page IconTo Previous Page
Loading...
3–8
ELECTRICAL HOOK-UP
Disconnect main power
supply and turn unit OFF
before installing power supply to the unit.
High voltage may be encountered. Only
persons trained and equipped for checking
high voltage shall perform electrical con-
nections.
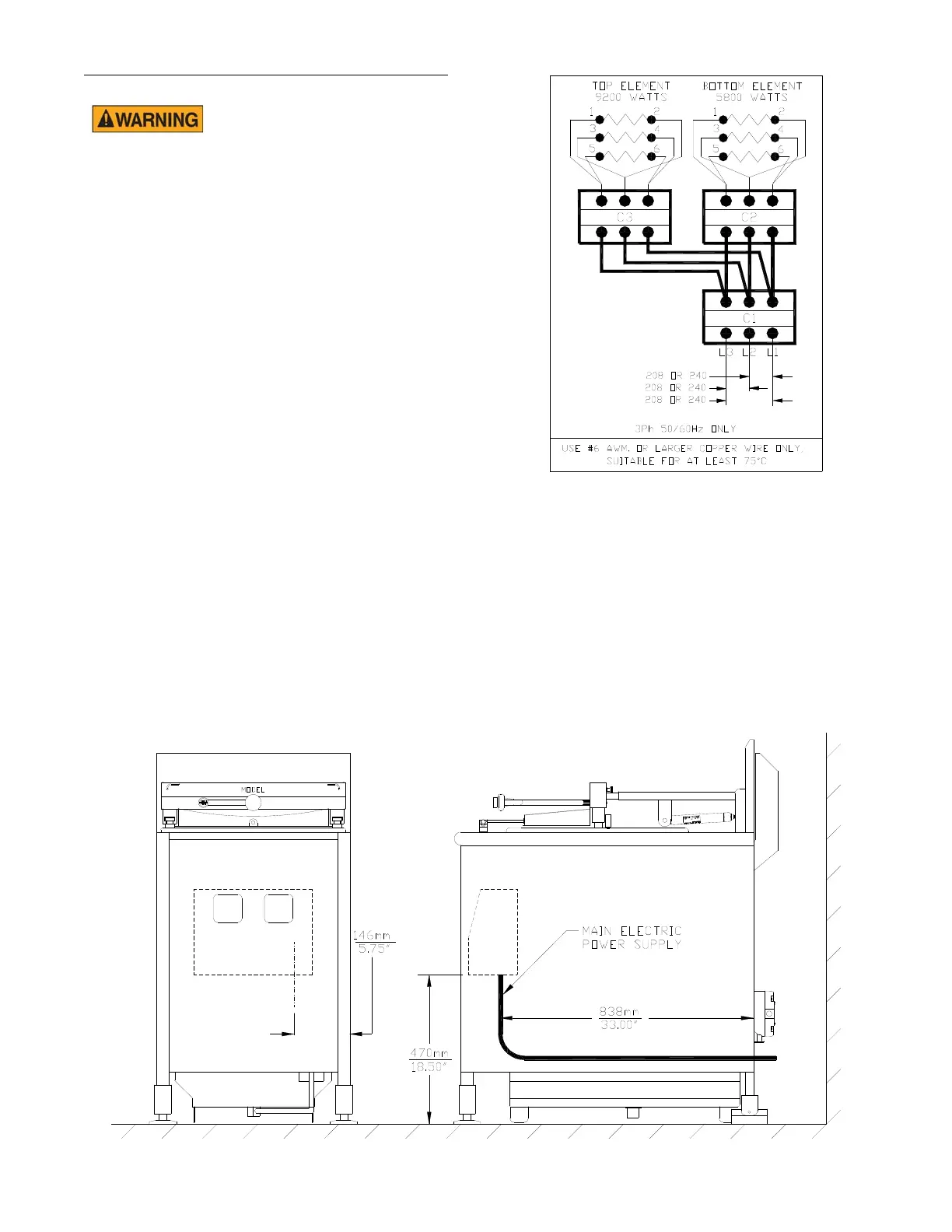
Access For Hook-Up:
1. Disconnect main power supply.
2. Remove condensate pan and two
screws from bottom of front panel.
Pull out and down on bottom to
remove.
Phase Wiring:
Phase wiring diagram is located inside the
front panel.
Electric units are shipped from the factory
wired for 3 phase. In this case, applied
voltage must be connected to L1, L2 and
L3 of contactor C1 and a ground wire to the
GND connector.
Unit Dimensions For Electrical Hook-Up:
Note: Check all contactor screw connec-
tions to be sure they are fully tightened for
proper electrical continuity.
broaster.com Manual #15458 5/02 Rev 2/14

Other manuals for Broaster 2400

Related product manuals