EasyManua.ls Logo

Broderson IC-35-2F - Dimensions and Orientation

Broderson IC-35-2F
71 pages
Print Icon
To Next Page IconTo Next Page
To Next Page IconTo Next Page
To Previous Page IconTo Previous Page
To Previous Page IconTo Previous Page
Loading...
1-2
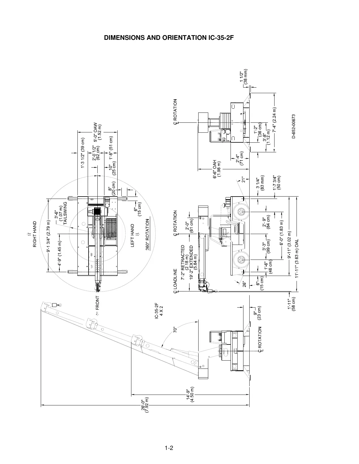
DIMENSIONS AND ORIENTATION IC-35-2F
Courtesy of Crane.Market

Related product manuals