EasyManua.ls Logo

BYD ECB16 - Page 45

BYD ECB16
116 pages
Print Icon
To Next Page IconTo Next Page
To Next Page IconTo Next Page
To Previous Page IconTo Previous Page
To Previous Page IconTo Previous Page
Loading...
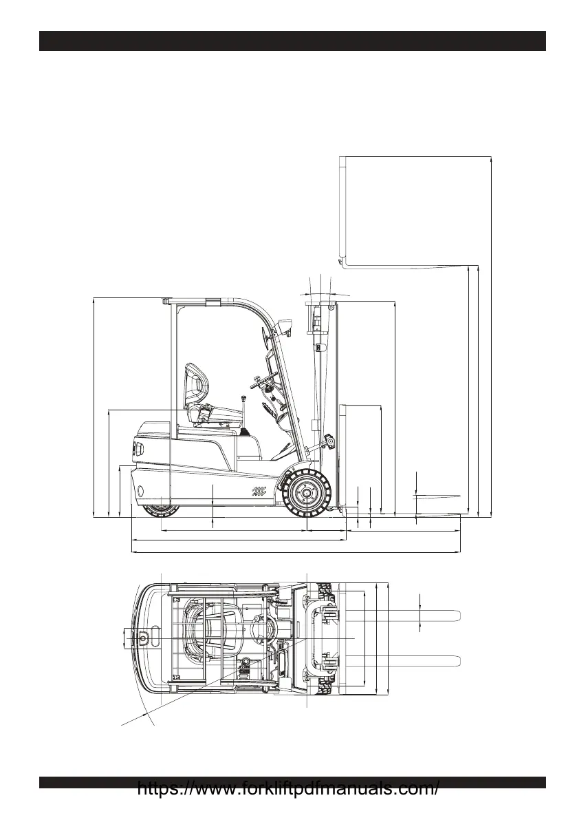
ECB16 ECB18
35 OM-ECB162015006-EN-US
α
β
y
x
m1
l
l2
l1
s
h8
h1
h2
h3
h23
h4
h10
h7
h6
m2
Wa
b11
b10
b3
b1
e
ECB18B,ECB18C
https://www.forkliftpdfmanuals.com/

Table of Contents

Related product manuals