EasyManua.ls Logo

BYD ECB16 - Specifications; Technical Drawing

BYD ECB16
116 pages
Print Icon
To Next Page IconTo Next Page
To Next Page IconTo Next Page
To Previous Page IconTo Previous Page
To Previous Page IconTo Previous Page
Loading...
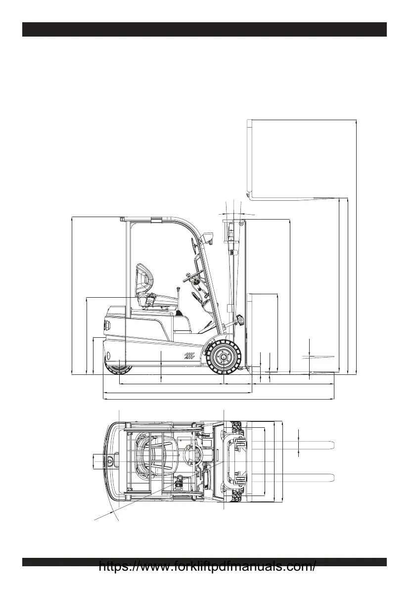
TRUCK VIEW AND TECHNICAL SPECIFICATIONS
OPERATOR MANUAL 34
Specifications
Technical Drawing
y
x l
l2
l1
h1
h8
h2
m1
m2
h3
h23
s
h4
h10
h7
h6
α
β
Wa
b11
b10
b3
b1
e
ECB16B,ECB16C
https://www.forkliftpdfmanuals.com/

Table of Contents

Related product manuals