EasyManua.ls Logo

Cabela's CB24ESC1 - Electrical Wire Diagram

Cabela's CB24ESC1
60 pages
Print Icon
To Next Page IconTo Next Page
To Next Page IconTo Next Page
To Previous Page IconTo Previous Page
To Previous Page IconTo Previous Page
Loading...
ENGLISH
23
  
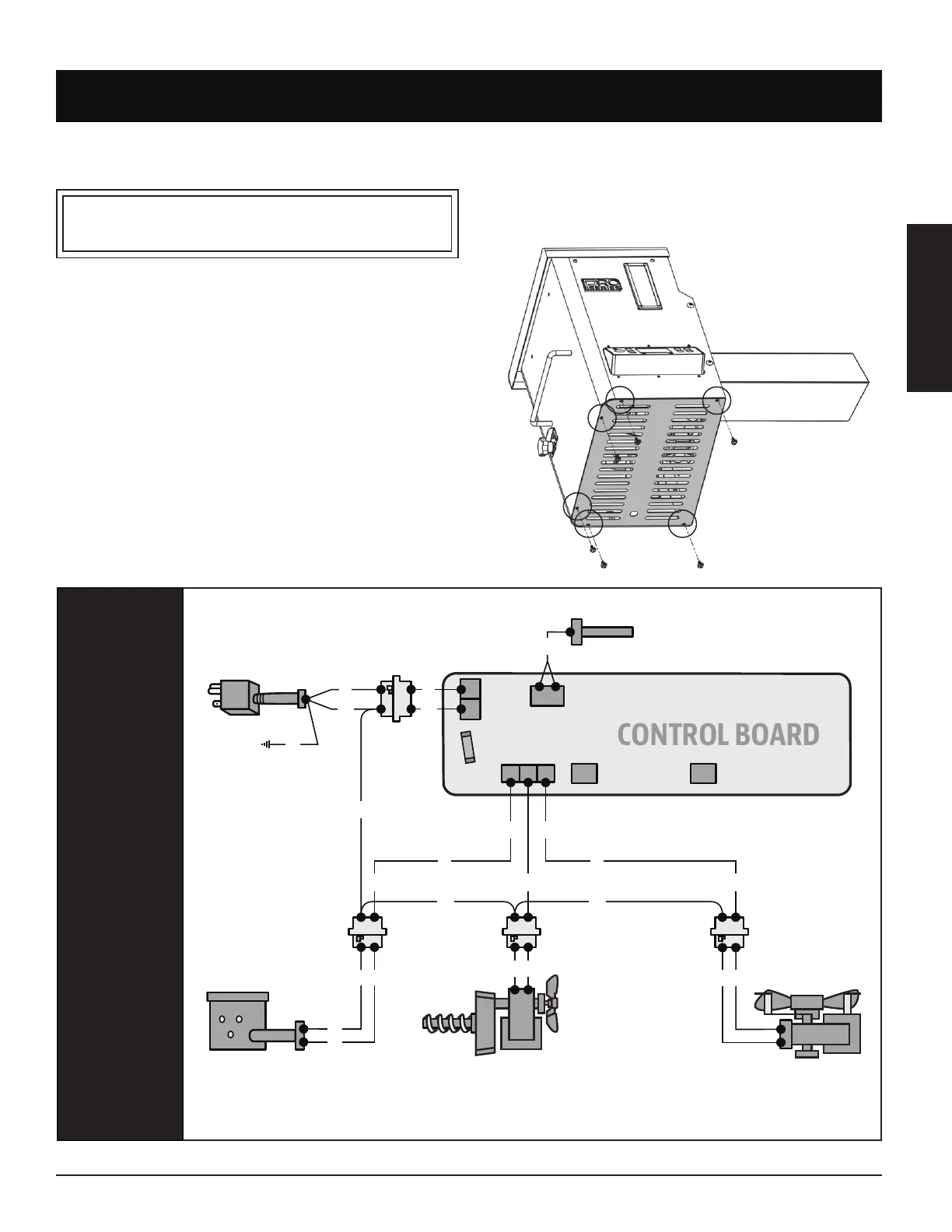
The Digital Control Board system is an intricate and valuable piece of technology. For protection from power surges and electrical
shorts, consult the wire diagram below to ensure your power source is sufficient for the operation of the unit.
ELECTRIC REQUIREMENTS
120V, 3.1AMP, 60HZ, 250W, 3-PRONG GROUNDED PLUG
: Electrical components, passed by product safety testing and
certification services, comply with a testing tolerance of ± 5-10 percent.
FUEL INPUT
RATING:
1.12 KG/H
(2.48 LB/H)
ELECTRICAL
RATING:
250W, 3.1A, 120V
INDEX
W : WHITE
Y : YELLOW
P : PURPLE
R : RED
K : BLACK
G : GREEN
P
P
R
Y
Y
YP
K
K
W
G
W
W
W
R R
WW
W
W
YY
K
W
IGNITER ASSEMBLY /
HD CARTRIDGE HEATER
200W, 120V, 2.6 AMP
0.375” X 5.000”
BURN POT
DRAFT FAN
120V, 50/60HZ,
0.1 AMP, 1 PHASE
GROUNDED
POWER CORD
VW-1, 105°C/221°F,
18-3 STANDARD CSA
AUGER MOTOR
& FEED SYSTEM
120V, 50/60HZ,
0.22 AMP, 2 RPM MOTOR
GROUND
GRILL
PROBE
TEMPERATURE PROBE
SPADE CONNECTORS
FAST-BLOW FUSE
5 AMP
CONTROL BOARD
HOPPER ACCESS PANEL
LOCATE AND REMOVE THE
SIX SCREWS ON UNDERSIDE
OF HOPPER TO ACCESS
ELECTRICAL COMPONENTS

Table of Contents

Related product manuals