EasyManua.ls Logo

Calorex Pro-Pac PPT45EHC - Page 19

Calorex Pro-Pac PPT45EHC
104 pages
Print Icon
To Next Page IconTo Next Page
To Next Page IconTo Next Page
To Previous Page IconTo Previous Page
To Previous Page IconTo Previous Page
Loading...
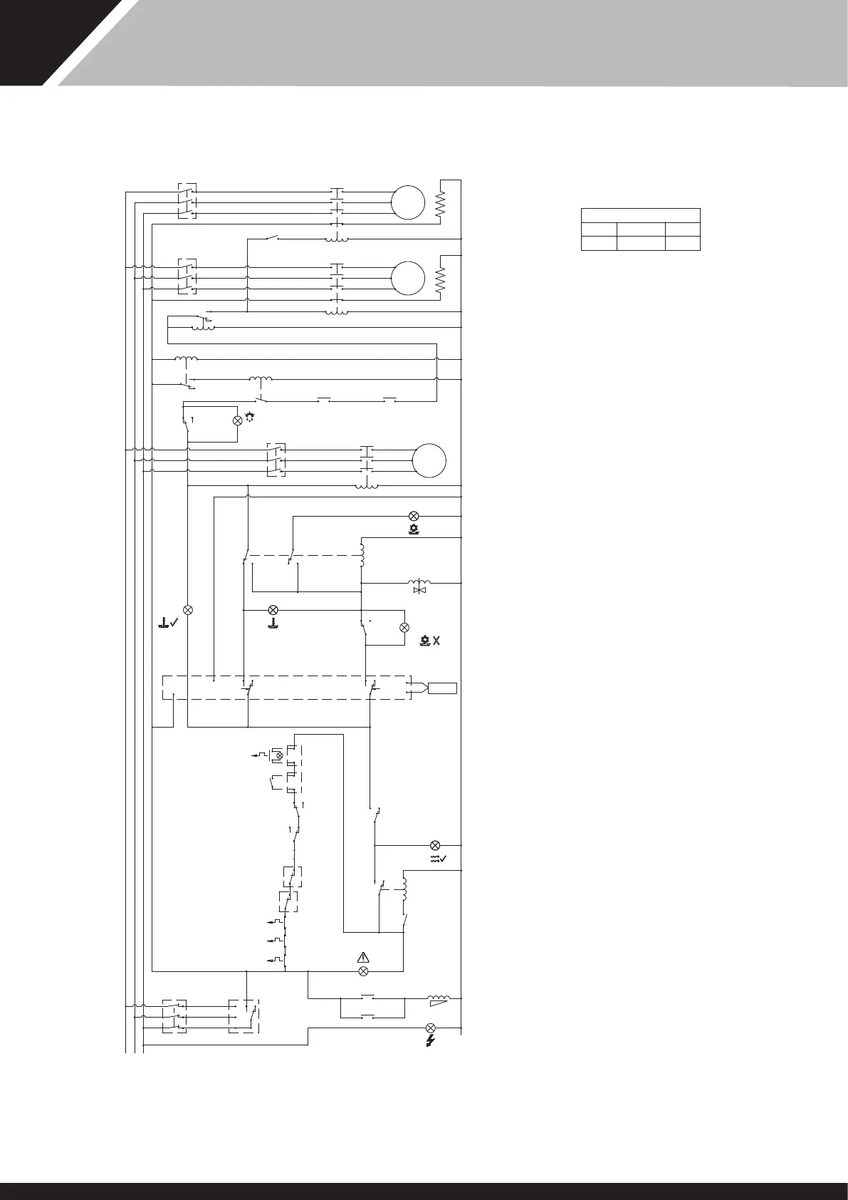
CONTROL
2.5A
MCB SETTINGS
COMPRESSOR FAN
2.8A23.8A
MCB CONTACTS / MCB ALARM CONTACTS / MCB AUX CONTACTS
SHOWN WITH CIRCUIT BREAKER
MANUALLY SWITCHED TO THE ON CONDITION.
WATER FLOW SWITCH CONTACTS SHOWN WITH WATER FLOW AT
MAXIMUM RATE.
ALL OTHER CONTACTS SHOWN IN DE-ENERGISED STATE BUT WITH
REFRIGERATION CIRCUIT FULLY CHARGED.
WHERE CONTACTS ARE MARKED (N/O) OR (N/C) ON CIRCUIT DIAGRAM
ABOVE CONDITIONS APPLY
(COM) C
(N/C) L
H (N/O)
10 (SECS)
COMP 2
CIRCUIT BREAKER
TRIP / OFF =
BREAK CONTACT
5
3
1
6 (N/C)
4 (N/C)
2 (N/C)
COMP 1
CIRCUIT BREAKER
TRIP / OFF = BREAK CONTACT
5
3
1
6 (N/C)
4 (N/C)
2 (N/C)
(BREAKS TO 'H' ON
TEMP FALLING)
DEFROST STAT
TRIP / OFF =
BREAK CONTACT
FAN CIRCUIT BREAKER
5
3
1
6 (N/C)
4 (N/C)
2 (N/C)
FAN MCB AUX BLK : ALARM
TRIP = BREAK CONTACT
COMPRESSOR 1
MCB AUX BLK : ALARM
TRIP = BREAK CONTACT
COMPRESSOR 2
MCB AUX BLK : ALARM
TRIP = BREAK CONTACT
6 (N/C)
4 (N/C)
2 (N/C)
CONTROL CIRCUIT
BREAKER
5
3
1
TRIP / OFF =
BREAK CONTACT
L3 L2 L1
PHASE ROTATION RELAY
L3
L2
L1
14 (N/O)
MAINS LIGHT
NEUTRAL
12 (N/C)
11 (COM)
5
3
1
6 (N/O)
4 (N/O)
2 (N/O)
FAN
96
95 (N/C)
95
96 (N/C)
(N/C)
C (COM)
H (N/C)(N/O) L
C (COM)
H (N/O)
(N/C) L
FAULT LIGHT
COMPRESSOR 2 MOTOR
PROTECTOR
HP SWITCH
(BREAKS TO 'L' ON
PRESSURE RISING)
LP SWITCH
(BREAKS TO 'H' ON
PRESSURE FALLING)
STARTER OR
EXTERNAL FLOW
SWITCH
SOFT START
THERMAL O/LOAD &
FAULT LAMP IF
FITTED
WATER FLOW
SWITCH (N/O)
A
B
RELAY (R3)
FLOW OK LIGHT
(COM) 1
3 (N/C)
[STANDBY]
2 (N/O)
[RUN]
STANDBY SWITCH
(COM) 6
4 (N/O)
MAKES 4 TO 6 ON TEMP FALLING
11
10
SENSOR
DIGITAL STAT (2 STAGE)
5
3
1
6 (N/O)
4 (N/O)
2 (N/O)
COMP
2
(N/O) 11 14 (COM)
DELAY TIMER T3
21 22 (N/C)
A1
A2
CONTACTOR
(COMP 2)
(W)
(V)
(U)
(N/O)
5 (N/C)
4 (N/O)
1 (N/C)
(COM) 7
RELAY (R2)
(COM) 15
18 (N/O)
16 (N/C)
DELAY TIMER T1 (12 HOUR)
A1 A2
(COM) 7
8 (N/O)
9 (N/C)
2 (N)
C (COM)
H (N/O)
(N/C) L
TEMP OK
LIGHT
OUT 1 OUT 2
CHILL LIMIT
LIGHT
A
B
RELAY (R1)
CONTACTOR (FAN)
A2A1
A1
A2
(N/C) 1
7 (COM)
(N/O) 4
(N/C) 3
9 (COM)
(N/O) 6
CHILL LIGHT
REVERSING VALVE
HEAT LIGHT
CHILL LIMIT
SWITCH
(BREAKS TO 'H' ON
TEMP FALLING)
MAKES 8 TO 7 ON TEMP RISING
DEFROST LIGHT
1 (L)
INTERLOCK
TERMINALS
5
3
1
6 (N/O)
4 (N/O)
2 (N/O)
COMP
1
21 22 (N/C)
CONTACTOR
(COMP 1)
(W)
(V)
(U)
A1
A2
18 (N/O)
(COM) 15
A2A1
DELAY TIMER T2
(6 MINS)
54 53 (N/O) 54 53 (N/O)
COMP 1 MCB AUX COMP 2 MCB AUX
16 (N/C)
63 64 (N/0)
LIQUID LINE
SHUT OFF
VALVE
COMP 1 CONT AUX
63 64 (N/0)
COMP 2 CONT AUX
HEATER HEATER
(N/C)
COMPRESSOR 1 MOTOR
PROTECTOR
95
96 (N/C)
(NC)
TK
TK
FAN THERMAL
CUT OUT
PP(T)70BHC THREE PHASE (400V 3N~ 50Hz)
19
SD566250 ISSUE 35

Related product manuals