EasyManua.ls Logo

Calorex Pro-Pac PPT45EHC - Plans Dinstallation

Calorex Pro-Pac PPT45EHC
104 pages
Print Icon
To Next Page IconTo Next Page
To Next Page IconTo Next Page
To Previous Page IconTo Previous Page
To Previous Page IconTo Previous Page
Loading...
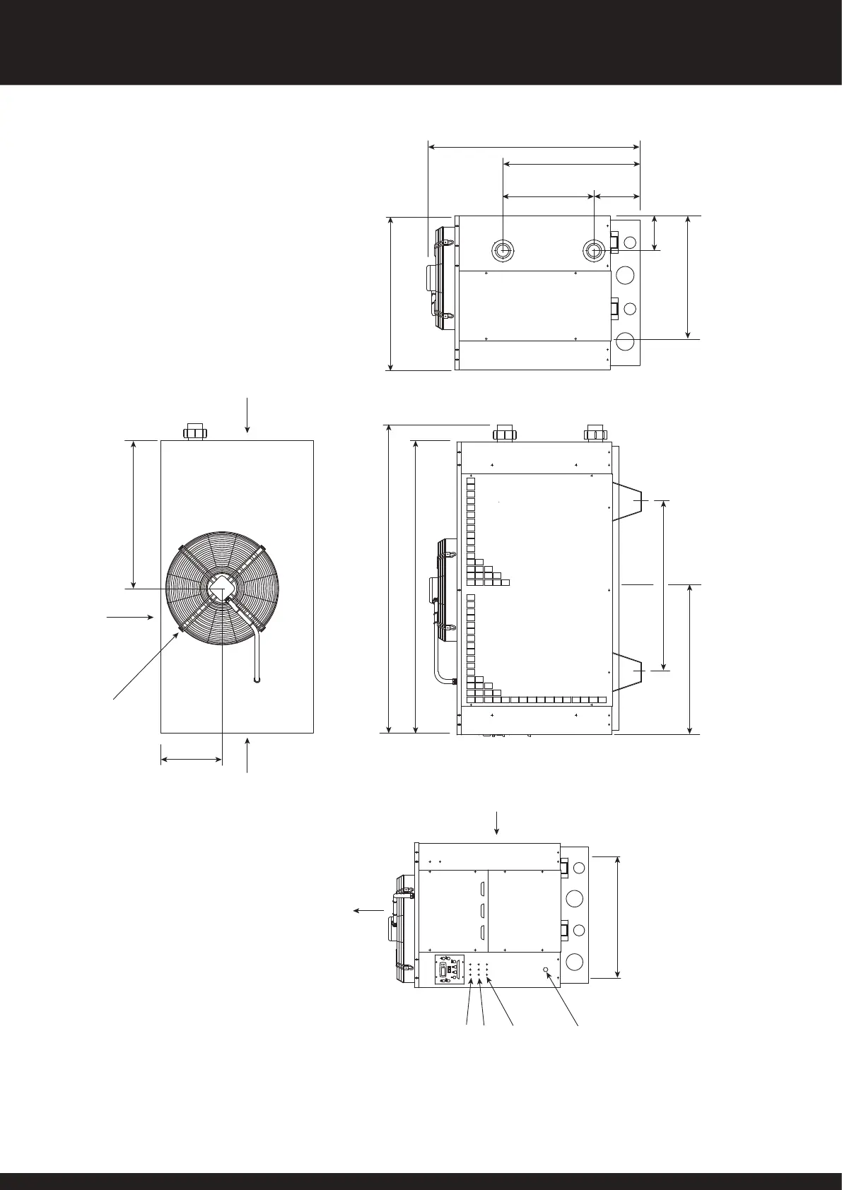
PLANS D’INSTALLATION
Pro-Pac PPT30
DIMENSIONS EN mm
EDITION 1
LAISSER 500mm D'ESPACE
POUR ACCEDER AUX
PANNEAUX DE SERVICE
DIAMETRE DU
VENTILATEUR 560
PANNEAU DE
SERVICE
PANNEAU DE
SERVICE
PANNEAU DE
SERVICE
CONSOLE
PRESSOSTAT HP
ENTREE
D'AIR
SORTIE D'AIR
ALIMENTATION
PRESSOSTAT BP
PRESSOSTAT BP
(LIMITE DE
REFROIDISSEMENT)
*683
*POINTS DE RACCORDEMENT POUR FIXER LA MACHINE AU SOL
PANNEAU
ELECTRIQUE
DE
SERVICE
IO
PANNEAU
DE
SERVICE
SORTIE
D'EAU
ENTREE
D'EAU
752
316
1585
1486
*880
780
1080
232
692
460
176
814
CONDENSAT SORTANT DE LA BASE
CONDENSAT SORTANT DE LA BASE
617
PANNEAU
DE SERVICE
34
SD566250 ISSUE 35
SYSTEME PRO-PAC MANUEL D’INSTALLATION

Related product manuals